Котел Neva LUX 8224 - инструкция пользователя по применению, эксплуатации и установке на русском языке. Мы надеемся, она поможет вам решить возникшие у вас вопросы при эксплуатации техники.
Если остались вопросы, задайте их в комментариях после инструкции.
"Загружаем инструкцию", означает, что нужно подождать пока файл загрузится и можно будет его читать онлайн. Некоторые инструкции очень большие и время их появления зависит от вашей скорости интернета.

11.
35 .
90
°
0,5
.
11.1.
,
.
,
4 (
.
. 4).
3
°
.
11.2.
,
0
°
+40
°
98 %.
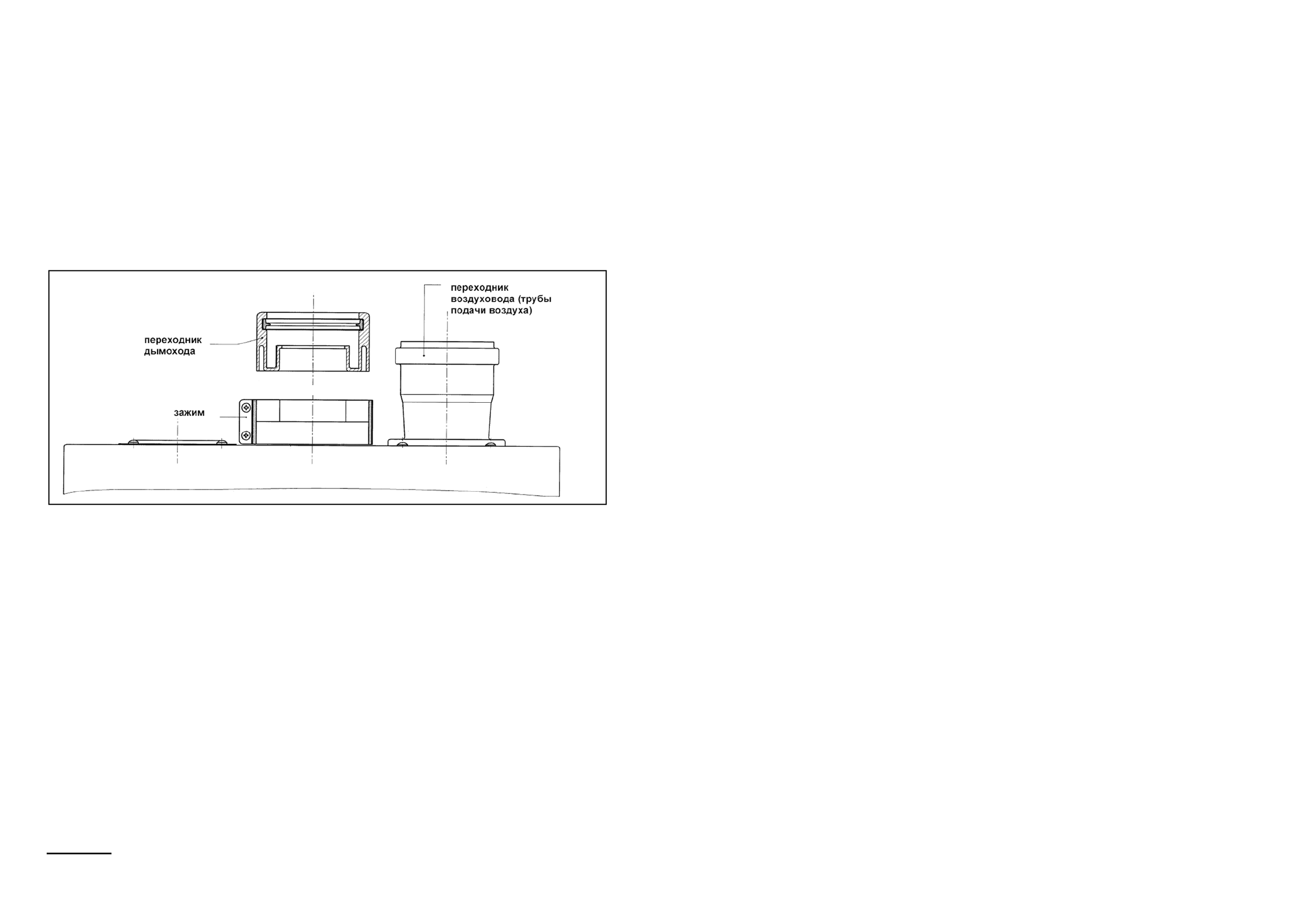
(
. 5)
(KHG 714061510,
).
.
.
.
,
,
.
.
11.3.
12
,
9.014 .
11.4.
.
11.5.
.
,
.
12.
NEVALUX-8224 (
4931-025-00153413-2006)
_________________________
.
______________________________
.
/
__________________
. 5.
13.
,
,
.
5.
Ч
5.1.
. 6.
13.1.
-
(
)
,
,
,
«
».
5.2.
220 /50
.
.
5.3.
.
13.2.
1 (
)
(
);
-
,
.
5.4.
(
.
. 1).
13.3.
;
13.4.
,
;
5.5.
.
13.5
,
:
«
,
,
.
,
»;
,
,
.
13.6
,
45 (
)
.
( . .
);
:
,
,
,
.
12
21