Котел Navien 535RPD/RTD/RPS/RTS/RTG - инструкция пользователя по применению, эксплуатации и установке на русском языке. Мы надеемся, она поможет вам решить возникшие у вас вопросы при эксплуатации техники.
Если остались вопросы, задайте их в комментариях после инструкции.
"Загружаем инструкцию", означает, что нужно подождать пока файл загрузится и можно будет его читать онлайн. Некоторые инструкции очень большие и время их появления зависит от вашей скорости интернета.

36
ü
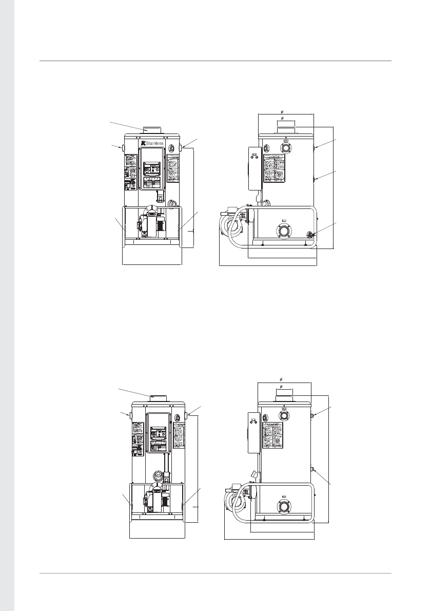
В котлах для отопления(RPS) отсутствуют входы и выходы для горячей воды.
Название Модели : KDB-735 RTD, RTS, RTG
Название Модели : KDB-735 RPD, RPS
В котлах для отопления(RTS) и котлах горячего водоснабжения(RTG) отсутствуют входы и
выходы для горячей воды.
В котлах горячего водоснабжения(RTG) вход для воды отопления используйте как вход для
горячей воды, а выход для воды отопления – как выход для горячей воды.
ü
ü
Водосливное
отверстие
(40A)
Выход для горячей
воды (20A)
Вход для горячей
воды (20A)
Предохранительный
клапан ( только для
нагрева воды)
547
837
551
125
949
1240
468
148
Выход отопления
(40A)
Вход отопления
(40A)
Выпускная труба
(дымоход)
Выход камеры
(40A)
Выход отопления
(40A)
Вход отопления
(40A)
Водосливное
отверстие
(40A)
Выход для горячей
воды (20A)
Вход для горячей
воды (20A)
Выпускная труба
(дымоход)
547
838
552
125
1104
1410
468
148
Выход камеры
(40A)