Котел Navien 535GPD/GTD/GPS/GTS/GTG - инструкция пользователя по применению, эксплуатации и установке на русском языке. Мы надеемся, она поможет вам решить возникшие у вас вопросы при эксплуатации техники.
Если остались вопросы, задайте их в комментариях после инструкции.
"Загружаем инструкцию", означает, что нужно подождать пока файл загрузится и можно будет его читать онлайн. Некоторые инструкции очень большие и время их появления зависит от вашей скорости интернета.

35
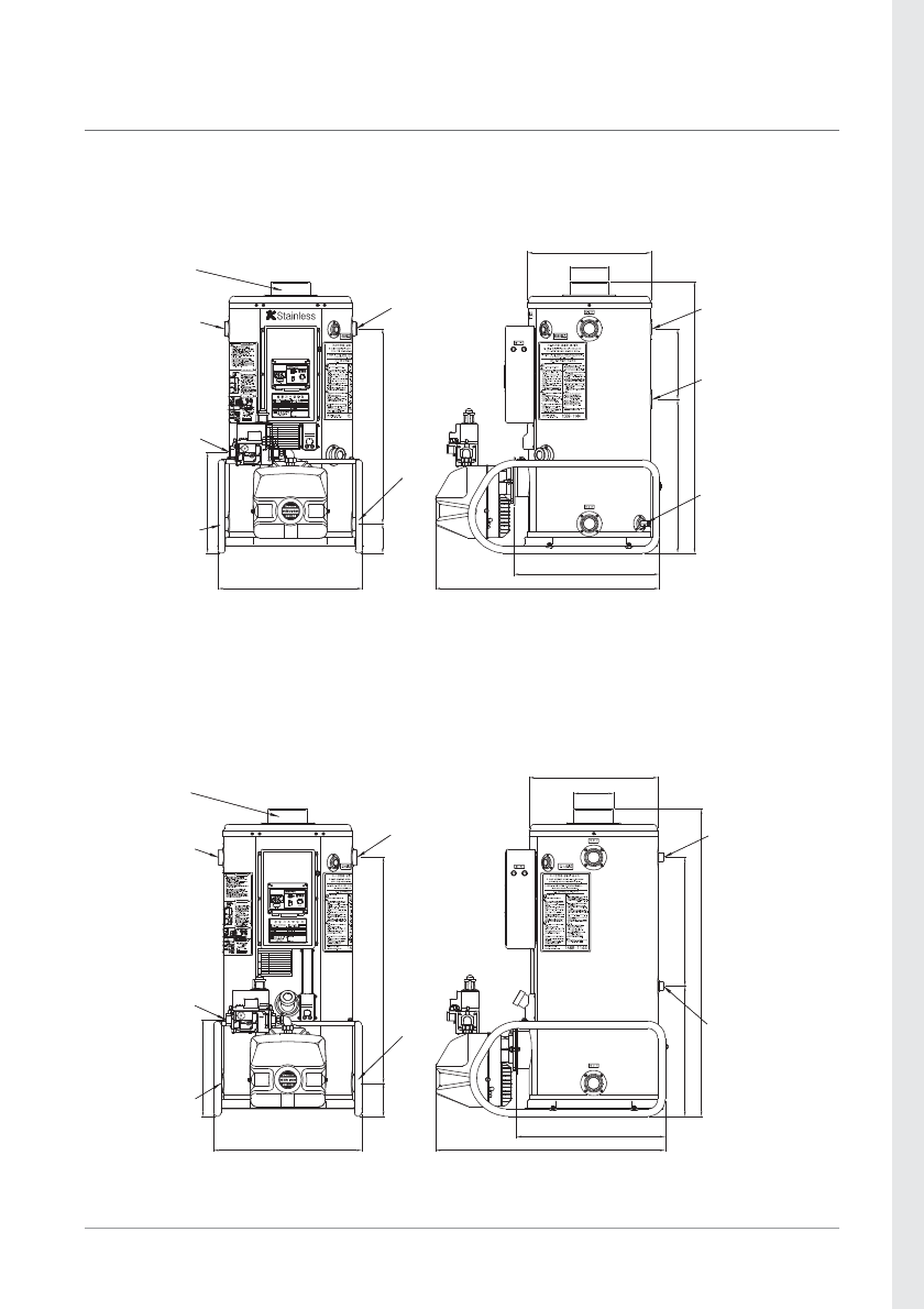
Внешний вид котла
Название Модели : KDB-535 GTD, GTS, GTG
ü
В котлах для отопления(GTS, GTG) отсутствуют входы и выходы для горячей воды.
Название Модели : KDB-535 GPD, GPS
ü
В котлах для отопления(GPS) отсутствуют входы и выходы для горячей воды.
547
848
551
ø468
ø148
383
112
1032
269
583
741
Выпускная труба
(
д
ымохо
д
)
Выхо
д
отопления
(40А)
Выхо
д
д
ля горячей во
д
ы
(нагрева во
д
ы)(20A)
Вхо
д
д
ля холо
д
ной во
д
ы
(нагрева во
д
ы)(20A)
Пре
д
охранительный клапан
( только
д
ля нагрева во
д
ы)
Выхо
д
отопления
(40A)
Вхо
д
отопления
(40A)
Вхо
д
газа(15A)
Вхо
д
газа
(40A)
547
850
552
ø468
ø148
361
125
1148
481
486
842
Вып
у
с
к
ная тр
у
ба
(
д
ымо
х
о
д
)
По
д
ача отопления
(40A)
Вы
х
о
д
д
ля горячей во
д
ы
(нагрева во
д
ы)(20A)
В
х
о
д
д
ля
х
оло
д
ной во
д
ы
(нагрева во
д
ы)(20A)
По
д
ача отопления
(40A)
Обрат
к
а отопления
(40A)
Обрат
к
а
отопления
(40A)
В
х
о
д
газа(15A)
Содержание
- 3 ǿǼDzdzǾǴǮǻǶdz; В целях улучшения качества товара содержание данного
- 4 Инструкция по технике безопасности; использованы знаки; обозначают следующее:
- 6 ПРЕДУПРЕЖДЕНИЕ
- 8 ВНИМАНИЕ
- 10 Название и устройство; Котел
- 13 Горелка; (KDB-535GPD, GPS)
- 14 Устройства защиты; защиты при возобновлении подачи электричества.
- 15 Перед началом эксплуатации; Проверьте тип используемого газа.
- 16 Перед началом эксплуатации обязательно следуйте следующим
- 17 Инструкции по правильной эксплуатации; Обеспечьте хорошее проветривание!
- 29 Ежедневный техосмотр/Способ очистки; Ежедневный техосмотр; ОПАСНО; Убедитесь в отсутствии вблизи котла или
- 31 Предупреждение газовых аварий; Проветрите помещение.
- 32 службу, обязательно ознакомьтесь с нижеследующей информацией.
- 35 Внешний вид котла
- 37 Значения в « [ ]» относятся к моделям 2035 GPD, GPS
- 38 Безопасный и правильный способ установки; Обязательно убедитесь перед установкой; обязательно передано владельцу.
- 39 Рекомендации; Недостаточное содержание кислорода может
- 40 соответствии с рисунком.
- 41 Монтаж электропроводки
- 42 При заземлении к молниеотводу в котле могут; Инструкция по правильному монтажу; землю изоляционную трубу толщиной не менее 4 мм.; насоса, подсоединенный к блоку управления.
- 43 Монтаж газовых труб
- 44 Заперщаестя использовать; Руководство по эксплуатации.
- 46 монтаж труб отопления и подачи горячей воды
- 47 Меры предосторожности во время монтажа трубопровода; установите клапан ограничения давления.
- 48 Монтаж труб с открытой системой циркуляции; соответствующей емкости.
- 49 Сетчатый фильтр; Устройство; Предотвращение скопления ржавчины в трубах:
- 51 Монтаж впускной/дымоотводящей трубы
- 52 Монтаж трубы принудительного отвода дыма(FE)
- 53 Монтаж дымохода; дымоотводящей трубы должно быть не менее 300 мм.
- 54 Стандартная схема трубопроводов; Котел для отопления и горячей воды –
- 57 Правила ввода в эксплуатацию; Проверка перед вводом в эксплуатацию; Проверьте правильность установки котла.
- 58 Ввод в эксплуатацию
- 60 Технические характеристики; ) Котел из нержавеющей стали
- 61 ) Котел из нержавеющей стали
- 62 ) Котел из нержавеющей стали