Котел Navien 1535GPD/GTD/GPS/GTS/GTG - инструкция пользователя по применению, эксплуатации и установке на русском языке. Мы надеемся, она поможет вам решить возникшие у вас вопросы при эксплуатации техники.
Если остались вопросы, задайте их в комментариях после инструкции.
"Загружаем инструкцию", означает, что нужно подождать пока файл загрузится и можно будет его читать онлайн. Некоторые инструкции очень большие и время их появления зависит от вашей скорости интернета.

11
Название Модели : KDB-735 GTD, GST, GTG
Название Модели : KDB-735 GPD, GPS
ü
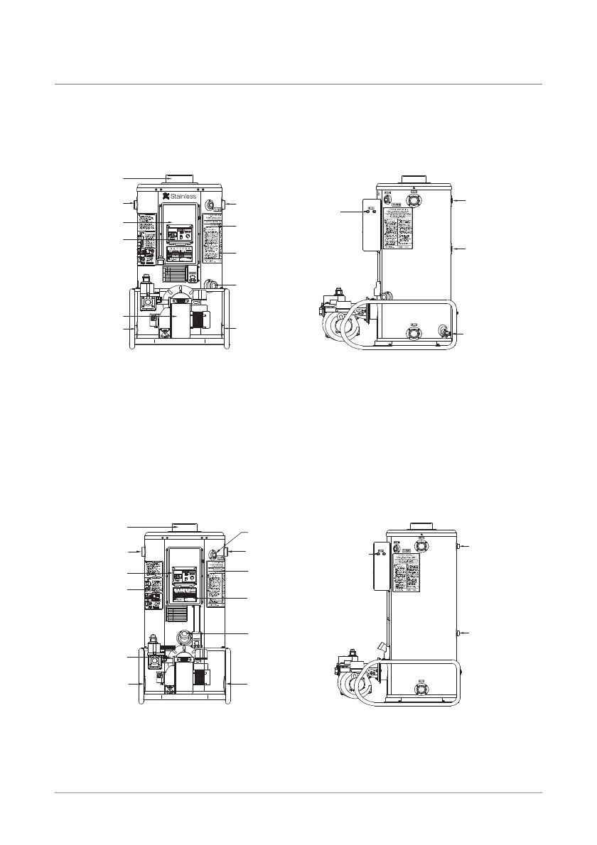
В котлах специального назначения (GTS, GTG) на задней стороне нет входа / выхода горячей воды.
ü
В котлах специального назначения (GPS) нет входа / выхода горячей воды.
Выпускная труба
(
д
ымохо
д
)
Плавкий
пре
д
охранитель
Выхо
д
д
ля горячей во
д
ы
(нагрева во
д
ы)
Вхо
д
д
ля холо
д
ной во
д
ы
Смотровое окно
д
ля проверки пламени
Обратка отопления
Табличка
технических
д
анных
табличка о мерах
пре
д
осторожности при
транспортировке
По
д
ача отопления
Контроллер
Горелка
табличка со
схемой установки
Обратка отопления
Пре
д
охранительный клапан
( только
д
ля нагрева во
д
ы)
По
д
ача отопления
Плав
к
ий
пре
д
о
х
ранитель
Вы
х
о
д
д
ля горячей во
д
ы
(нагрева во
д
ы)
В
х
о
д
д
ля
х
оло
д
ной во
д
ы
Вып
у
с
к
ная тр
у
ба
(
д
ымо
х
о
д
)
Пре
д
о
х
ранитель
перегрева
Смотровое о
к
но
д
ля провер
к
и пламени
Сливное отверстие
Таблич
к
а
те
х
ничес
к
и
х
д
анны
х
таблич
к
а о мера
х
пре
д
осторожности при
транспортиров
к
е
Вы
х
о
д
отопления
Контроллер
Горел
к
а
таблич
к
а со
с
х
емой
у
станов
к
и
В
х
о
д
отопления
Вы
х
о
д
к
амеры
Содержание
- 3 ǿǼDzdzǾǴǮǻǶdz; В целях улучшения качества товара содержание данного
- 4 Инструкция по технике безопасности; использованы знаки; обозначают следующее:
- 6 ПРЕДУПРЕЖДЕНИЕ
- 8 ВНИМАНИЕ
- 10 Название и устройство; Котел
- 13 Горелка; (KDB-535GPD, GPS)
- 14 Устройства защиты; защиты при возобновлении подачи электричества.
- 15 Перед началом эксплуатации; Проверьте тип используемого газа.
- 16 Перед началом эксплуатации обязательно следуйте следующим
- 17 Инструкции по правильной эксплуатации; Обеспечьте хорошее проветривание!
- 29 Ежедневный техосмотр/Способ очистки; Ежедневный техосмотр; ОПАСНО; Убедитесь в отсутствии вблизи котла или
- 31 Предупреждение газовых аварий; Проветрите помещение.
- 32 службу, обязательно ознакомьтесь с нижеследующей информацией.
- 35 Внешний вид котла
- 37 Значения в « [ ]» относятся к моделям 2035 GPD, GPS
- 38 Безопасный и правильный способ установки; Обязательно убедитесь перед установкой; обязательно передано владельцу.
- 39 Рекомендации; Недостаточное содержание кислорода может
- 40 соответствии с рисунком.
- 41 Монтаж электропроводки
- 42 При заземлении к молниеотводу в котле могут; Инструкция по правильному монтажу; землю изоляционную трубу толщиной не менее 4 мм.; насоса, подсоединенный к блоку управления.
- 43 Монтаж газовых труб
- 44 Заперщаестя использовать; Руководство по эксплуатации.
- 46 монтаж труб отопления и подачи горячей воды
- 47 Меры предосторожности во время монтажа трубопровода; установите клапан ограничения давления.
- 48 Монтаж труб с открытой системой циркуляции; соответствующей емкости.
- 49 Сетчатый фильтр; Устройство; Предотвращение скопления ржавчины в трубах:
- 51 Монтаж впускной/дымоотводящей трубы
- 52 Монтаж трубы принудительного отвода дыма(FE)
- 53 Монтаж дымохода; дымоотводящей трубы должно быть не менее 300 мм.
- 54 Стандартная схема трубопроводов; Котел для отопления и горячей воды –
- 57 Правила ввода в эксплуатацию; Проверка перед вводом в эксплуатацию; Проверьте правильность установки котла.
- 58 Ввод в эксплуатацию
- 60 Технические характеристики; ) Котел из нержавеющей стали
- 61 ) Котел из нержавеющей стали
- 62 ) Котел из нержавеющей стали