Котел lemax АОГВ-15,5 Газовик - инструкция пользователя по применению, эксплуатации и установке на русском языке. Мы надеемся, она поможет вам решить возникшие у вас вопросы при эксплуатации техники.
Если остались вопросы, задайте их в комментариях после инструкции.
"Загружаем инструкцию", означает, что нужно подождать пока файл загрузится и можно будет его читать онлайн. Некоторые инструкции очень большие и время их появления зависит от вашей скорости интернета.

12
АОГВ В. 1.03
13
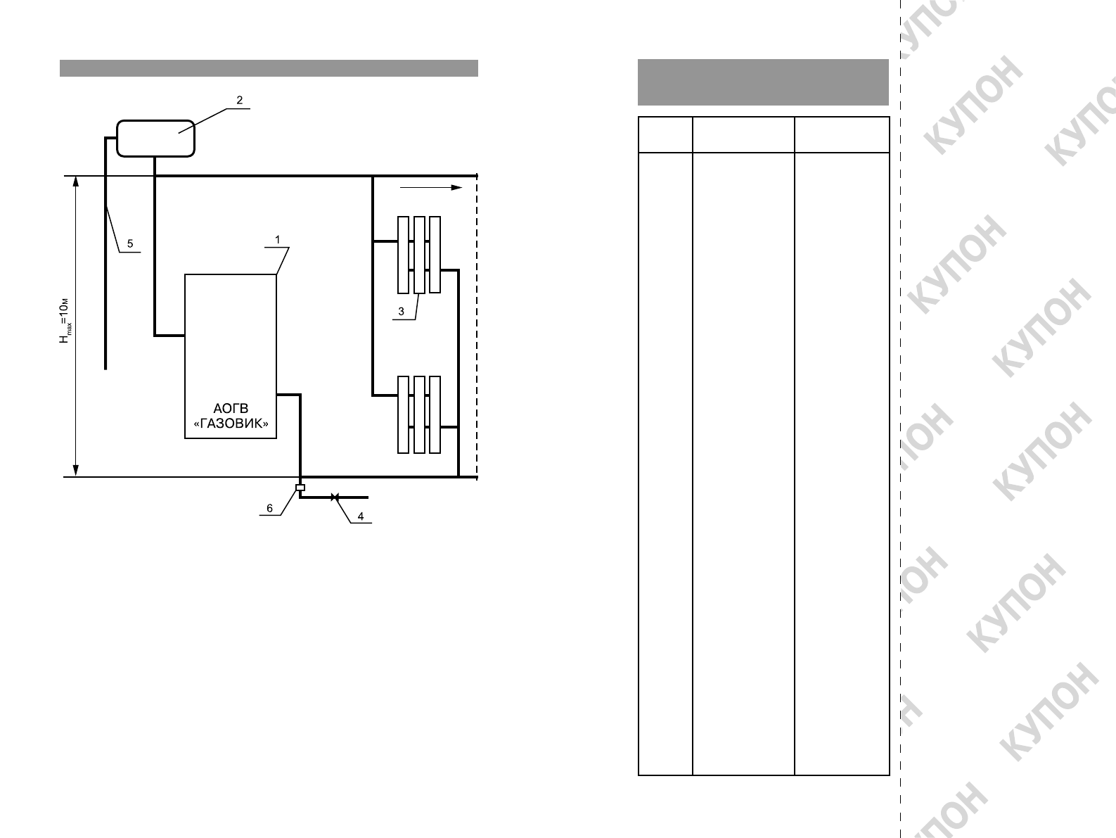
СХемА мОнтАжА СИСтемы ОтОпленИЯ
Рис 2.
1. Аппарат.
2. Расширительный бачок.
3. Радиатор отопления.
4. кран для слива и заполнения
отопительной системы.
5. Сигнальная труба.
6. Сбросной предохранительный клапан.
Дата
наименование
организации
подпись,
штамп
ОтметКИ О пРОВеДенИИ ежеГОДнОГО
теХнИЧеСКОГО И пРОФИлАКтИЧеСКОГО
ОБСлУжИВАнИЯ