Котел Thermex Tesla 12-24 Wi-Fi 24 кВт - инструкция пользователя по применению, эксплуатации и установке на русском языке. Мы надеемся, она поможет вам решить возникшие у вас вопросы при эксплуатации техники.
Если остались вопросы, задайте их в комментариях после инструкции.
"Загружаем инструкцию", означает, что нужно подождать пока файл загрузится и можно будет его читать онлайн. Некоторые инструкции очень большие и время их появления зависит от вашей скорости интернета.

7
14.
Датчик температуры на выходе системы ГВС
15.
Датчик протока системы ГВС
16.
Вход линии системы ГВС
17.
Выход линии системы ГВС
18.
Расширительный бак
19.
Термопредохранитель системы отопления
20.
Теплообменник системы отопления
21.
Датчик протока системы отопления
22.
Датчик температуры на входе в системе отопления
23.
Датчик температуры на выходе в системе отопления
25. Циркуляционный насос
26. Обратная линия системы отопления
27. Узел подпитки
28. Подающая линия системы отопления
ы
RU
Содержание
- 2 УКАЗАНИЕ МЕР БЕЗОПАСНОСТИ; Держать вблизи прибора легко воспламеняемые материалы; RU
- 4 мм
- 8 Дни недели – Понедельник ~ Воскресенье
- 15 Настройки работы через систему кодирования
- 17 Режим работы 1
- 21 Прибор должен быть установлен вертикально без наклона.; Установка прибора
- 23 разъемом; Соедините линию подачи ГВС с разъемом 3.
- 25 А) Снимите лицевую панель
- 27 ыв
- 31 Рис. 12. Кривая характеристик давления насоса
- 36 ПОИСК И УСТРАНЕНИЕ НЕИСПРАВНОСТЕЙ
- 40 (установка и подключение ЭВН, гарантийный и
- 42 (Штамп с полным наименованием организации и номером лицензии)
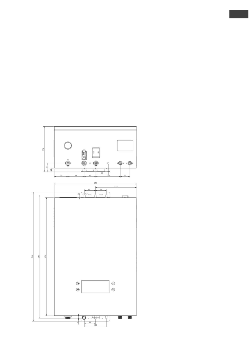
Характеристики
Остались вопросы?Не нашли свой ответ в руководстве или возникли другие проблемы? Задайте свой вопрос в форме ниже с подробным описанием вашей ситуации, чтобы другие люди и специалисты смогли дать на него ответ. Если вы знаете как решить проблему другого человека, пожалуйста, подскажите ему :)













