Котел Лемакс PRIME-V10 - инструкция пользователя по применению, эксплуатации и установке на русском языке. Мы надеемся, она поможет вам решить возникшие у вас вопросы при эксплуатации техники.
Если остались вопросы, задайте их в комментариях после инструкции.
"Загружаем инструкцию", означает, что нужно подождать пока файл загрузится и можно будет его читать онлайн. Некоторые инструкции очень большие и время их появления зависит от вашей скорости интернета.

8
Prime-V v2.6
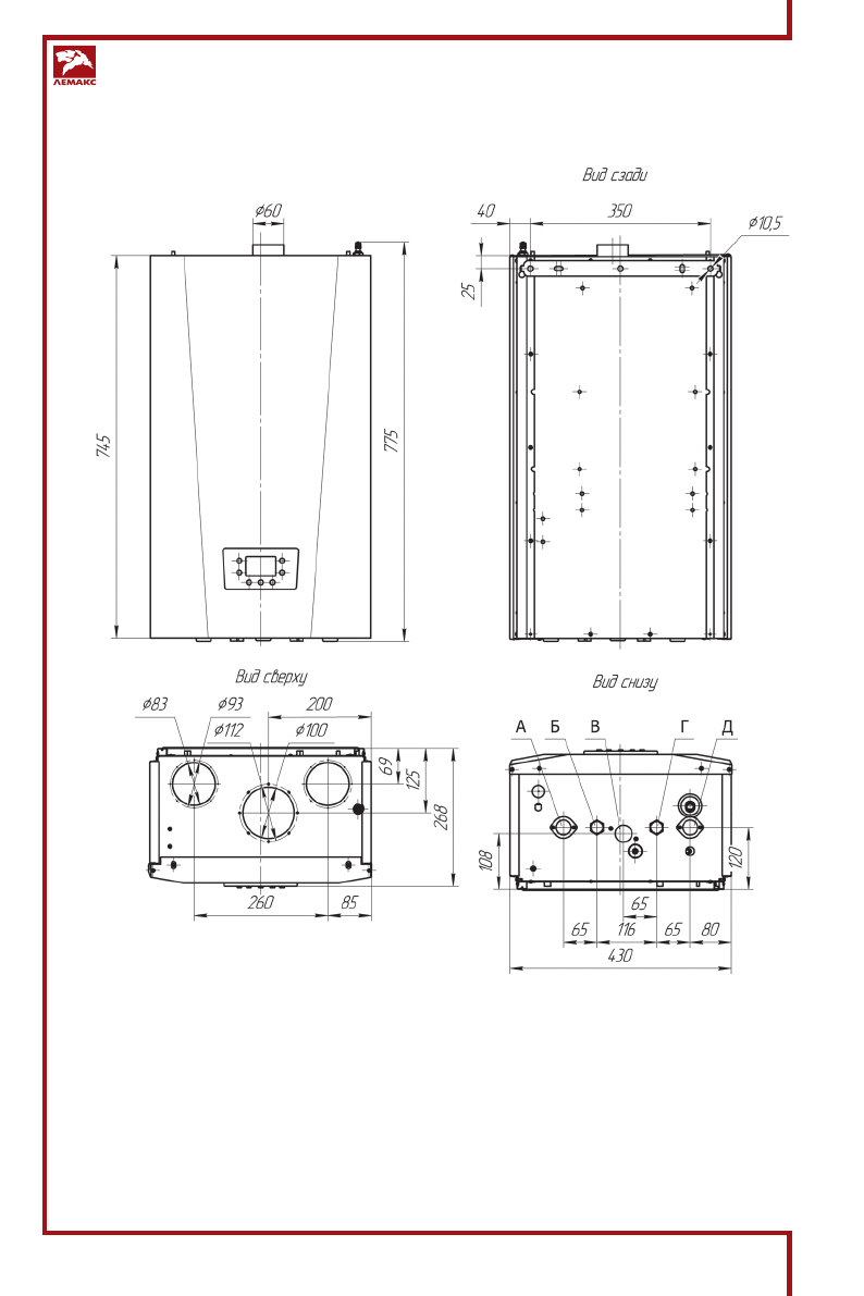
Рис 2.1. Габаритные и присоединительные размеры
котлов PRIME-V10...24
3.3. Габаритные и присоединительные размеры
А
– выход контура отопления – G 3/4;
Б
– выход ГВС – G 1/2;
В
– вход газа – G 3/4;
Г
– вход ГВС – G 1/2;
Д
– вход контура отопления – G 3/4.
Содержание
- 3 СОДЕРЖАНИЕ
- 4 ОБЩИЕ ПОЛОЖЕНИЯ
- 6 ТЕХНИЧЕСКОЕ ОПИСАНИЕ
- 9 Рис 2.2. Габаритные и присоединительные размеры
- 10 Крепление котла на несущей поверхности; ветствии с проектом газификации; УВЕДОМЛЕНИЕ
- 11 После монтажа проверьте герметичность соединений.
- 13 скачков напряжения в сети. Заземление обязательно.
- 16 ПОДГОТОВКА К ПЕРВОМУ ПУСКУ; ВА ЖНАЯ ИНФОРМАЦИЯ; Необходимо убедиться в следующем:
- 17 ПУСК КОТЛА; Для правильного зажигания горелки нужно:
- 18 Описание экранных символов:; Нажимая кнопку «; OFF; – Выбрать меню «sel1/INFO» кнопкой «
- 20 НАСТРОЙКА ПАРАМЕТРОВ КОТЛА
- 23 ПОДКЛЮЧЕНИЕ ДОПОЛНИТЕЛЬНЫХ УСТРОЙСТВ; следовать порядку, указанному на рисунке 10.; Подсоединение комнатного термостата; муфту 5 в корпусе и подключите его к клеммам 1 и 2 (рисунок 11); Подсоединение датчика наружной температуры; муфту 5 в корпусе и подсоедините его к клеммам 3 и 4 (рисунок 11)
- 24 Рис. 11. Подключение дополнительных устройств; ходную муфту 5 в корпусе и подключите его к клеммам 1 и 2 (рисунок 12)
- 25 ЭЛЕКТРООБОРУДОВАНИЕ
- 26 СООБЩЕНИЯ ОБ ОШИБКАХ
- 28 НАСТРОЙКА ГАЗОВОГО КЛАПАНА; нии настройки установите его обратно.; Настройка давления газа при максимальной мощности; – Включите котёл в режим «Отопление» и зажмите одновременно кнопки
- 29 Настройка давления газа при минимальной мощности; ошибки Е76, включится режим малого пламени; Порядок доступа к меню настроек описан в разделе 7.; УКАЗАНИЯ ПО УХОДУ
- 30 ГАРАНТИЙНЫЕ ОБЯЗАТЕЛЬСТВА; эксплуатационных характеристик.
- 31 ре перед подключением к электрической сети.
- 32 СВЕДЕНИЯ ОБ УТИЛИЗАЦИИ
- 33 КОНТРОЛЬНЫЙ ТАЛОН НА УСТАНОВКУ КОТЛА; Кем произведены (на месте
- 34 ОТМЕТКИ О ПРОВЕДЕНИИ ЕЖЕГОДНОГО ТЕХНИЧЕСКОГО ОБСЛУЖИВАНИЯ
- 35 Представитель
- 40 ОСОБЫЕ ОТМЕТКИ