Котел Лемакс PRESTIGE-10 - инструкция пользователя по применению, эксплуатации и установке на русском языке. Мы надеемся, она поможет вам решить возникшие у вас вопросы при эксплуатации техники.
Если остались вопросы, задайте их в комментариях после инструкции.
"Загружаем инструкцию", означает, что нужно подождать пока файл загрузится и можно будет его читать онлайн. Некоторые инструкции очень большие и время их появления зависит от вашей скорости интернета.
Загружаем инструкцию

15
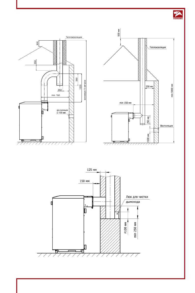
Рис. 4.
Рис. 5.
Рис. 5.1.
СХЕМА МОНТАЖА ДЫМОХОДА КОТЛА
Содержание
- 3 СОДЕРЖАНИЕ
- 4 ОБЩИЕ УКАЗАНИЯ; С татистика отказов показы-; КОМПЛЕКТНОСТЬ; серии Prestige; предназначены для отопления и горя-
- 10 ТРЕБОВАНИЯ БЕЗОПАСНОСТИ; Категорически; запрещается самовольно устанавливать котел и запускать его в ра-
- 11 УСТРОЙСТВО КОТЛА; Котёл Prestige
- 12 МОНТАЖ, ПОДГОТОВКА К РАБОТЕ; Точное; тяги зажигать газогорелочное устройство запрещается.
- 13 ПРИМЕРНАЯ СХЕМА ОТКРЫТОЙ СИСТЕМЫ ОТОПЛЕНИЯ; предохранительный клапан.
- 16 ПОРЯДОК РАБОТЫ
- 17 ПРАВИЛА ЭКСПЛУАТАЦИИ, ТЕХНИЧЕСКОЕ ОБСЛУЖИВАНИЕ
- 18 ГАРАНТИЙНЫЕ ОБЯЗАТЕЛЬСТВА; тационных характеристик.
- 20 ВОЗМОЖНЫЕ НЕИСПРАВНОСТИ И МЕТОДЫ ИХ УСТРАНЕНИЯ; Наименование; СВИДЕТЕЛЬСТВО О ПРИЕМКЕ
- 21 И ПРОФИЛАКТИЧЕСКОГО ОБСЛУЖИВАНИЯ; Дата; При ежегодном техническом обслуживании котла необходимо:; Проверить состояние дымохода и силу тяги в нем
- 22 КОНТРОЛЬНЫЙ ТАЛОН НА МОНТА Ж
- 24 СЕРВИСНЫЕ ЦЕНТРЫ