Котел Kospel EKCO L1z 8 - инструкция пользователя по применению, эксплуатации и установке на русском языке. Мы надеемся, она поможет вам решить возникшие у вас вопросы при эксплуатации техники.
Если остались вопросы, задайте их в комментариях после инструкции.
"Загружаем инструкцию", означает, что нужно подождать пока файл загрузится и можно будет его читать онлайн. Некоторые инструкции очень большие и время их появления зависит от вашей скорости интернета.

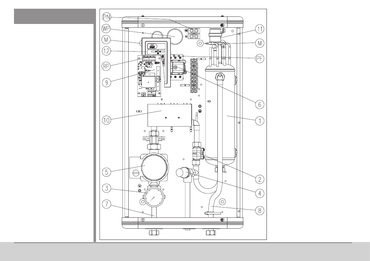
6
Конструкция электрического
котла EKCO.L1 складывается из
основных элементов:
- нагревательный узел [1], в
котором ТЭНы обогревают
циркулирующий теплоноси-
тель
- панель управления [12], ко-
торый контролирует работу
котла
- циркуляционный насос [5],
который обеспечивает цир-
к ул я ц и ю те п л о н о с и тел я
через котел
В котле использованы защит-
ные системы, предохраняющие
его от аварий:
- ограничитель температуры
[6], отключает электропи-
тание от котла при взросте
температуры свыше 100°C
(75°C для версии котлов
для теплых полов), после
срабатывания выключателя
эксплуатация котла невоз-
можна,
- датчик протока [2], следит за
величиной протока, требуе-
мой для нормальной работы
котла,
- клапан безопасности [4],
срабатывает при превыше-
нии допустимого давления
в отопительной проводке.
Рис.1 Конструкция трехфазно-
го котла EKCO.L1
1 - нагревательный узел
2 - датчик протока
3 - манометр
4 - клапан безопасности
5 - циркуляционный насос
6 - ограничитель температу-
ры
7 - патрубок входа
8 - патрубок выхода
9 - плата ZIO
10 - узел мощности
11 - автоматический воздухо-
отводчик
12 - пульт управления
PF - место подключения фазных
проводов
PN - м е с т о п о д к л юч е н и я з а -
щитного и нейтрального
проводов
WP - место введения проводов в
котел
M - отверстия для крепления
котла
RP - место подключения комнат-
ного регулятора.
1
Конструкция
6
Руководство для монтажника