Котел Kospel EKCO L1z 12 - инструкция пользователя по применению, эксплуатации и установке на русском языке. Мы надеемся, она поможет вам решить возникшие у вас вопросы при эксплуатации техники.
Если остались вопросы, задайте их в комментариях после инструкции.
"Загружаем инструкцию", означает, что нужно подождать пока файл загрузится и можно будет его читать онлайн. Некоторые инструкции очень большие и время их появления зависит от вашей скорости интернета.

7
RUS-016A/f.298
2
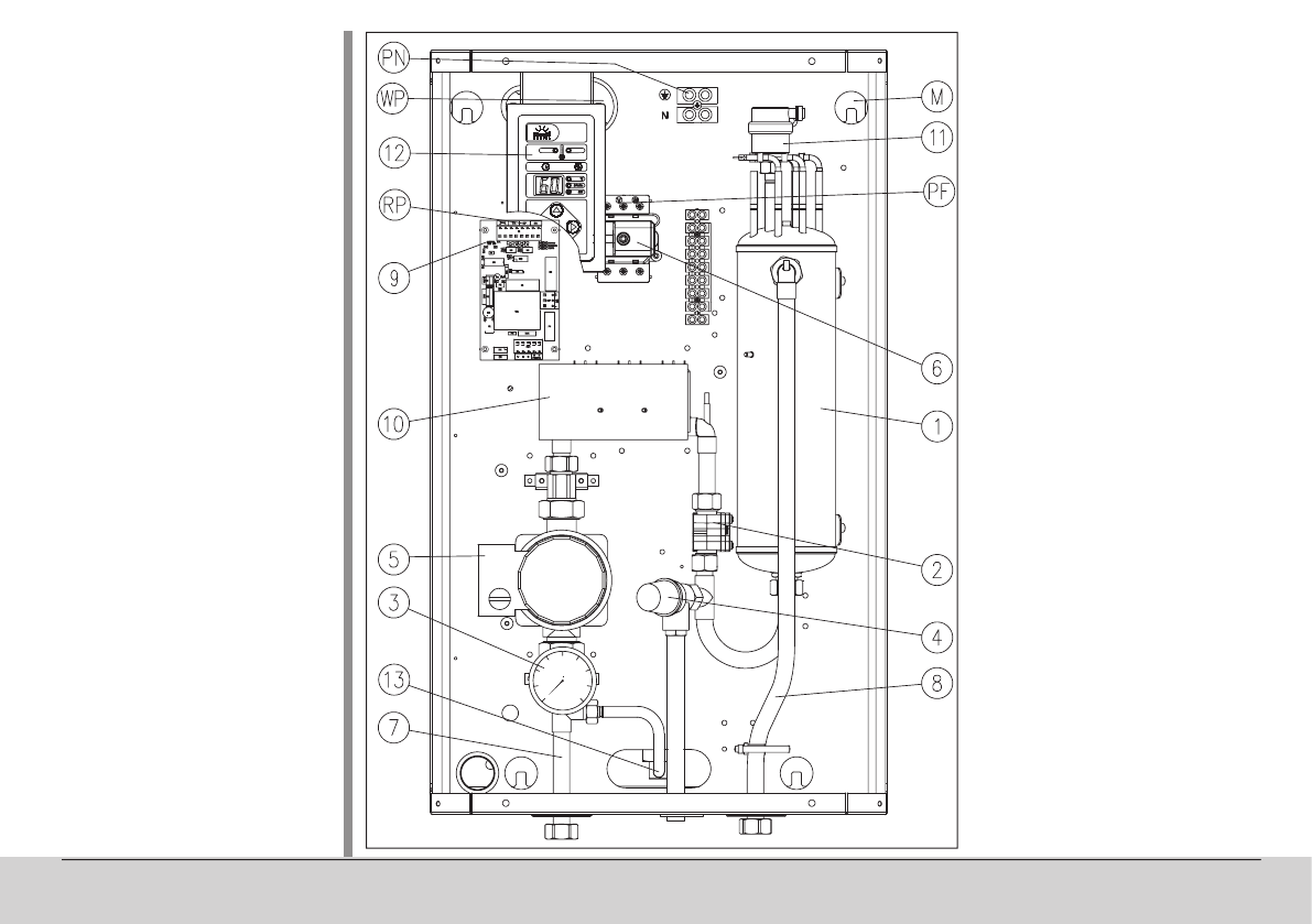
Рис.2 Конструкция трехфазно-
го котла EKCO.L1N
1 - нагревательный узел
2 - датчик протока
3 - манометр
4 - клапан безопасности
5 - циркуляционный насос
6 - ограничитель темпера-
туры
7 - патрубок входа
8 - патрубок выхода
9 - плата ZIO
10 - узел мощности
11 - автоматический воздухо-
отводчик
12 - пульт управления
13 - патру бки подключения
расширительного бака
14 - расширительный бак
PF - место подключения фазных
проводов
PN - м ес то п о д к л юч е н и я за -
щитного и нейтрального
проводов
WP - место введения проводов в
котел
M - отверстия для крепления
котла
RP - место подключения ком-
натного регулятора.
7
RUS-016A/f.298
Руководство для монтажника
