Котел Kospel 36 кВт - инструкция пользователя по применению, эксплуатации и установке на русском языке. Мы надеемся, она поможет вам решить возникшие у вас вопросы при эксплуатации техники.
Если остались вопросы, задайте их в комментариях после инструкции.
"Загружаем инструкцию", означает, что нужно подождать пока файл загрузится и можно будет его читать онлайн. Некоторые инструкции очень большие и время их появления зависит от вашей скорости интернета.

6
1
Конструкция
6
Руководство для монтажника
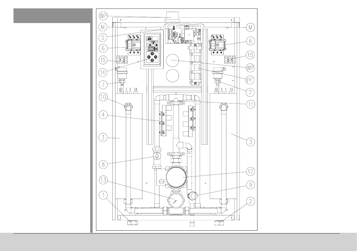
Рис.1 Конструкция трехфаз-
ного котла EKCO.T
[1] - патрубок входа
[2] - патрубок выхода
[3] - нагревательный узел
[4] - узел мощности
[5] - плата ZIO
[6] - ограничитель температуры
[7] - автоматический воздухоот-
водчик
[8] - датчик протока
[9] - клапан безопасности
[10] - датчик температуры на вы-
ходе
[11] - датчик температуры на входе
[12] - циркуляционный насос
[13] - манометр
[14] - пульт управления
[15] - планка подключений
PF - место подключения фазных
проводов
WP - место введения проводов в
котел
M - отверстия для крепления
котла
Конструкция электрического
котла EKCO.T складывается из
основных элементов:
- нагревательный узел [3], в
котором ТЭНы обогревают
циркулирующий теплоноси-
тель
- панель управления [14], ко-
торый контролирует работу
котла
- циркуляционный насос [12],
который обеспечивает цир-
к ул я ц и ю те п л о н о с и тел я
через котел.
В котле использованы защит-
ные системы, предохраняющие
его от аварий:
- ограничитель температуры
[6], отключает электропи-
тание от котла при взросте
температуры свыше 100°C,
после срабатывания вы-
к лючателя эк сплуатация
котла невозможна, следует
обратиться в сервисный
пункт
- датчик протока [8], следит за
величиной протока, требуе-
мой для нормальной работы
котла,
- клапан безопасности [9],
срабатывает при превыше-
нии допустимого давления
(3 бар) в отопительной си-
стеме.
Характеристики
Остались вопросы?Не нашли свой ответ в руководстве или возникли другие проблемы? Задайте свой вопрос в форме ниже с подробным описанием вашей ситуации, чтобы другие люди и специалисты смогли дать на него ответ. Если вы знаете как решить проблему другого человека, пожалуйста, подскажите ему :)

