Котел ИНТОИС Оптима Н 4 кВт 183 - инструкция пользователя по применению, эксплуатации и установке на русском языке. Мы надеемся, она поможет вам решить возникшие у вас вопросы при эксплуатации техники.
Если остались вопросы, задайте их в комментариях после инструкции.
"Загружаем инструкцию", означает, что нужно подождать пока файл загрузится и можно будет его читать онлайн. Некоторые инструкции очень большие и время их появления зависит от вашей скорости интернета.
Загружаем инструкцию

Корпус котла мощностью 72-108 квт:
15
Руководство пользователя
АЭК «INTOIS OPTIMA», «INTOIS OPTIMA H»
Содержание
- 2 Внимание; Перед пуском Автоматического Электрического; Данная процедура необходима для устранения люфта ТЭН, могущего
- 3 СОДЕРЖАНИЕ; Руководство пользователя
- 4 ВВЕДЕНИЕ
- 5 Адрес изготовителя:
- 6 «Интоис Оптима» и «Интоис Оптима Н»(со встроенным
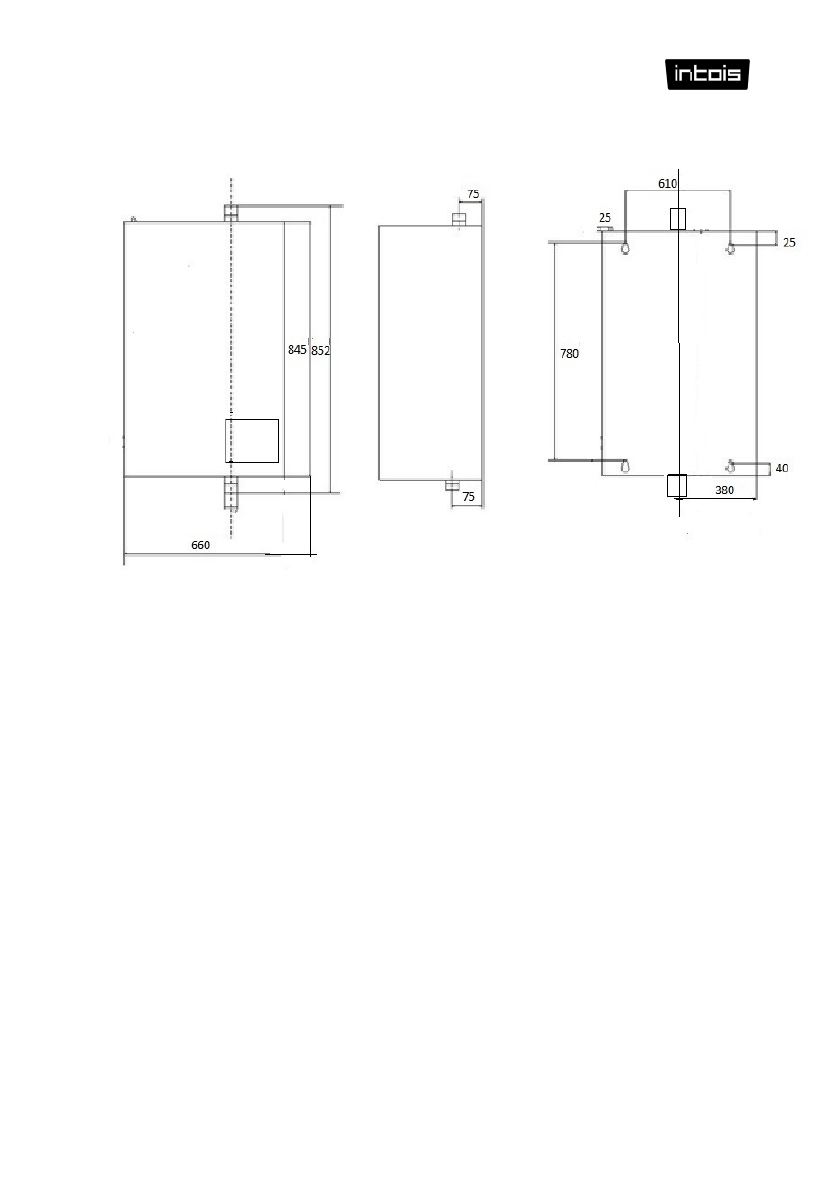
- 7 «Интоис Оптима» мощностью 21-95кВт и
- 9 «Интоис Оптима» мощностью 72-108кВт
- 11 ТРЕБОВАНИЯ БЕЗОПАСНОСТИ; Требования по установке и эксплуатации; Монтаж АЭК в отопительную систему и подключение к электросети; Ремонт и техническое обслуживание АЭК производится только при; Без заземления АЭК НЕ ВКЛЮЧАТЬ!
- 12 Требования к системе отопления; Для подключения АЭК к электрической сети необходимо
- 16 «Интоис Оптима» 3-95 кВт; Направление движения
- 17 «Интоис Оптима Н» с циркуляционным насосом
- 19 Клеммная колодка платы контроллера
- 20 Установка и порядок подключения АЭК
- 21 питающий провод насоса; Наличие Дифавтомата с стационарной проводке обязательно.; Датчик температуры помещения крепится на стене, в защищённом от; Применение других проводов, а также их удлинение не
- 22 Требования к теплоносителю; Опрессовку АЭК проводить при давлении не выше 6Атм., либо при; Запрещается производить включение АЭК если изложенные; В случае использования несоответствующего теплоносителя или; должна быть в открытом состоянии.; КАСКАДНОЕ ПОДКЛЮЧЕНИЕ АЭК
- 23 Каскадный метод подключения применяется для отопления больших
- 24 Когда котел установлен нажмите кнопку; Блок компьютерного управления; «Работа»
- 25 «Котел выключен»; Программирование «Интоис Оптима» и «Интоис; «Ввод»; Режимы работы котла; Режим «Климат» (на дисплее котла обозначается буквой «К»); Программы работы котла; «Постоянная»
- 26 «Календарная»; Постоянная программа.; В вод
- 29 Для сохранения заданных настроек, нажмите кнопку «Ввод».; Недельная программа
- 31 Календарный график; ) В пункте меню «Выбор режима» выберите программу «Календарный
- 32 Режим – «Бойлер» или «Климат»; Дополнительные настройки; Пролистывая кнопками «Вверх-вниз» выберите пункт меню
- 33 Установка даты и время
- 34 Если оборван или отсоединен от котла датчик температуры; Управление котлом через SMS (отдельная опция); Установка GSM модуля:
- 36 УПРАВЛЕНИЕ КОТЛОМ ЧЕРЕЗ GSM; телефон соответствующее уведомление:
- 39 На плате расположены клеммы для пожарной и охранной; КОМПЛЕКТ ПОСТАВКИ GSM:; GSM; ПРАВИЛА ЭКСПЛУАТАЦИИ И ТЕХНИЧЕСКОЕ; программы работы электрического котла.
- 41 Схема платы контроллера; Разьем для GSM
- 42 ГАРАНТИЙНЫЕ ОБЯЗАТЕЛЬСТВА
- 44 ПЕЧАТЬ
- 45 ГАРАНТИЙНЫЙ ТАЛОН; АЭК не подлежит бесплатному ремонту в следующих случаях:
- 47 Талон на установку; АЭК «Интоис Оптима» и «Интоис Оптима Н» мощностью установленным; М.П.













