Котел Fondital RODI Dual 250 - инструкция пользователя по применению, эксплуатации и установке на русском языке. Мы надеемся, она поможет вам решить возникшие у вас вопросы при эксплуатации техники.
Если остались вопросы, задайте их в комментариях после инструкции.
"Загружаем инструкцию", означает, что нужно подождать пока файл загрузится и можно будет его читать онлайн. Некоторые инструкции очень большие и время их появления зависит от вашей скорости интернета.

10
Ø
c
Ø
c
ØØ b
Мoд. 1400÷3500
МОДЕЛЬ
H
H1
H2
H6
H10
L
L2
P
P2
P3
P4
P5
P6
Øb
Øc
N1
N2
N3
N4
N5
N6
N8
мм
мм
мм
мм
мм
мм
мм
мм
мм
мм
мм
мм
мм
мм
мм
DN/in DN/in DN/in DN/in DN/in
in
in
RODI DUAL 1400
1746 1630
880
880
150
1470 1270 2886 2300
831 1300 755
350-400
320
400
150
150
1”
1”1/4
1”1/2
1/2” 1/2”
RODI DUAL 1600
1746 1630
880
880
150
1470 1270 2886 2300
831 1300 755
350-400
320
400
150
150
1”
1”1/4
1”1/2
1/2” 1/2”
RODI DUAL 1800
1746 1630
880
880
150
1470 1270 3096 2510
771 1850 475
450-500
320
400
150
150
1”
1”1/4
1”1/2
1/2” 1/2”
RODI DUAL 2000
1876 1760
945
945
150
1600 1400 3220 2510
903 1550 767
450-500
360
500
200
200
1”
1”1/4
2”
1/2” 1/2”
RODI DUAL 2400
1876 1760
945
945
150
1600 1400 3480 2770
903 1950 627
450-500
360
500
200
200
1”
1”1/4
2”
1/2” 1/2”
RODI DUAL 3000
2146 2030 1080 1080
150
1870 1670 3480 2770
903 2050 527
450-500
400
550
200
200
1”
1”1/4
2”
1/2” 1/2”
RODI DUAL 3500
2146 2030 1080 1080
150
1870 1670 3935 3225
903 2050 982
450-500
400
550
200
200
1”
1”1/4
2”
1/2” 1/2”
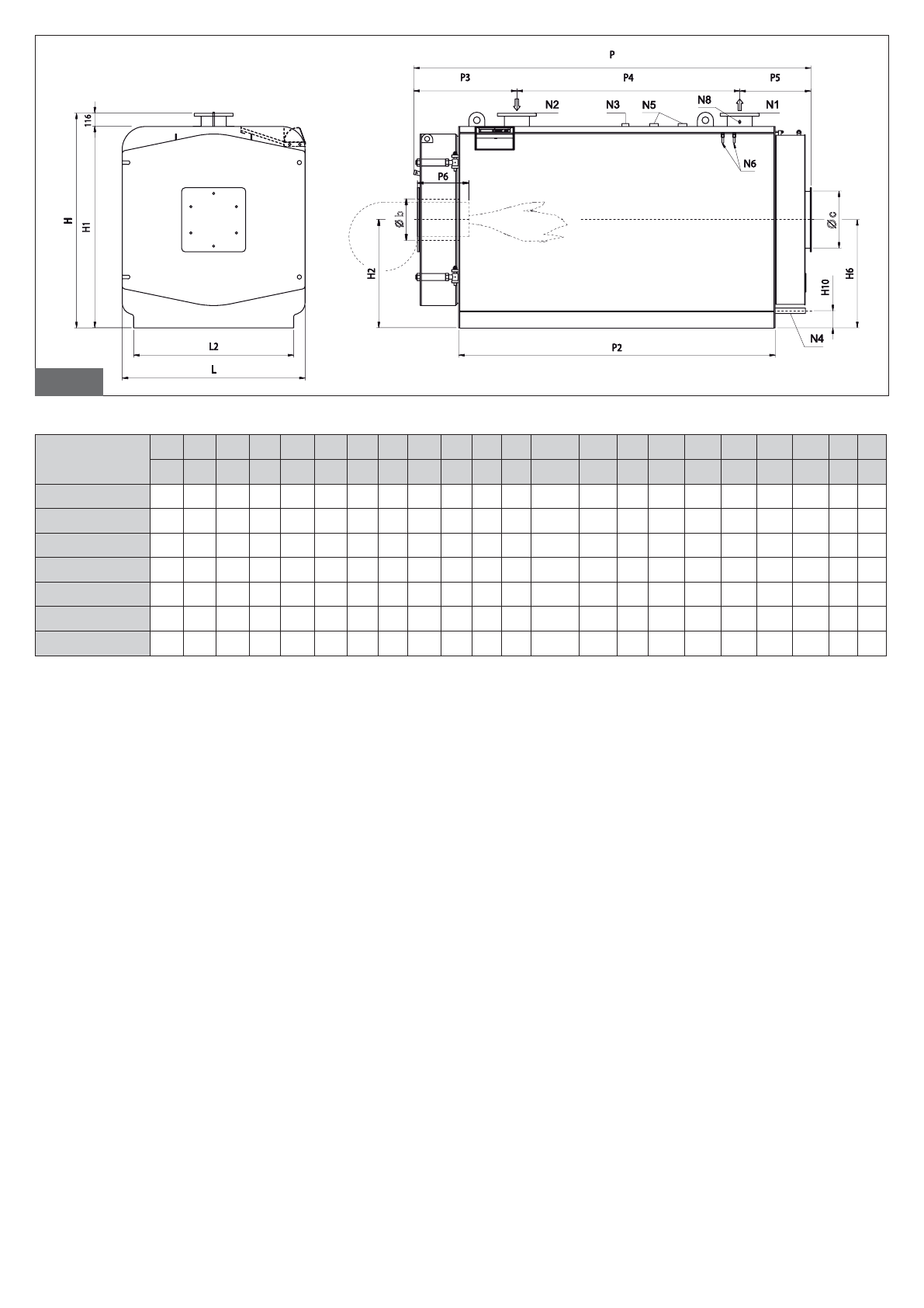
N1
Подача на контур отопления
N2
Возврат из контура отопления
N3
Подключение приборов
N4
Подключение заполнения/сливa системы
N5
Подключение предохранительного клапана/oв
N6
Колодцы для бульбобразных измеряющих устройств
N8
Колодец контроля
рис. 3

