Котел FLAMES КОД-63 - инструкция пользователя по применению, эксплуатации и установке на русском языке. Мы надеемся, она поможет вам решить возникшие у вас вопросы при эксплуатации техники.
Если остались вопросы, задайте их в комментариях после инструкции.
"Загружаем инструкцию", означает, что нужно подождать пока файл загрузится и можно будет его читать онлайн. Некоторые инструкции очень большие и время их появления зависит от вашей скорости интернета.

- 12 -
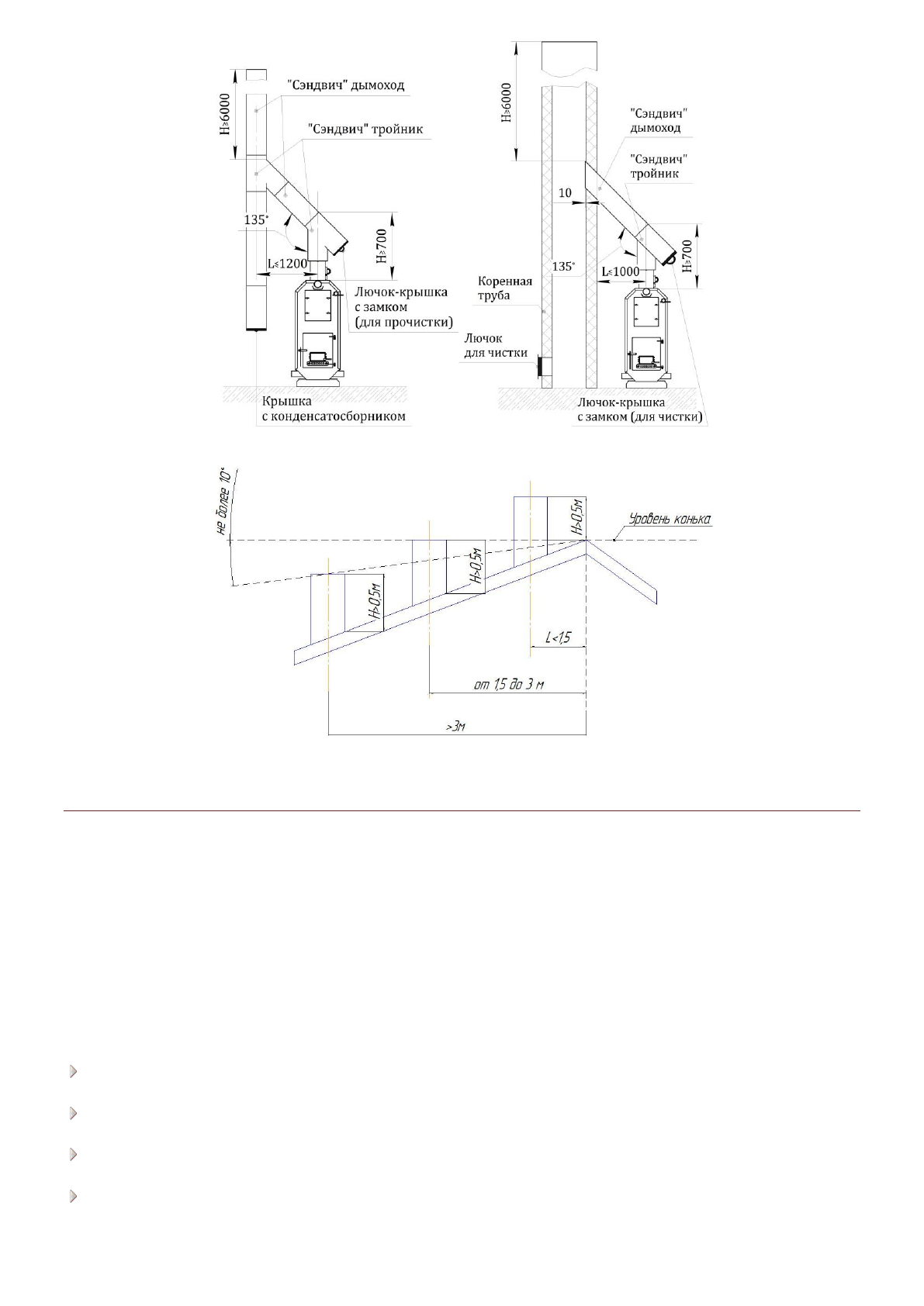
Рисунок
9
и
10
–
Подключение котла к дымовой трубе, соответственно
вариант 1
и 2
Рисунок
11
–
Варианты расположения трубы на скате
5.4
ПОДКЛЮЧЕНИЕ К СИСТЕМЕ ОТ ОПЛЕНИЯ
5.4.1
Проект теплоснабжения дома,
монтаж системы отопления и первый пуск котла
должны выполнить квалифицированные специалисты
-
теплотехники
.
5.4.2
Требования к теплоносителю
(вода
):
В качестве источника водоснабжения для автономных котельных следует
использовать хозяйственно
-
питьевой водопровод централизованного водоснабжения
.
Если
такой возможности нет
,
необходимо сделать анализ воды.
Теплоноситель должен соответствовать
следующим требованиям:
жесткость общая……………………………………………………………………...не более
9 мг
-
экв/л
содержание растворенного кислорода……………………………………
не более
3мг/л
содержание солей железа…………………………………………………………не более 0,3 мг/л
значение
pH
………………………………………………………………………………
7,0-9,0
Содержание
- 2 Flames; Разработчик и производитель:
- 4 открытого типа; О П И С А Н И Е К О Н С Т Р У К Ц И И
- 7 Т Е Х Н И Ч Е С К И Е Х А Р А К Т Е Р И С Т И К И; Таблица 1
- 8 Комплектация
- 9 ТРЕБОВАНИЕ К КОТЕЛЬНОЙ
- 10 ПОДКЛЮЧЕНИЕ КОТЛА К ДЫМОВОЙ ТРУБЕ
- 11 AISI
- 12 ПОДКЛЮЧЕНИЕ К СИСТЕМЕ ОТ ОПЛЕНИЯ; pH
- 16 П Р И М Е Н Е Н И Е А Н Т И Ф Р И З О В В С И С Т Е М Е О Т О П Л Е Н И Я
- 18 Т О П К А К О Т Л А; ПОДГОТОВКА КОТЛА; Регулирование в ручном режиме
- 19 З А П У С К К О Т Л А И О С Н О В Н Ы Е Р Е Ж И М Ы Г О Р Е Н И Я; РЕЖИМ ВНЕШНЕГО ГОРЕНИЯ (ЭКОНОМИЧНЫЙ , ДЛИТЕЛЬНЫЙ; Укладку
- 22 Г А Р А Н Т И Й Н Ы Е О Б Я З А Т Е Л Ь С Т В А
- 23 Условия прекра щения действия гарантийных обязательств
- 25 СВИДЕТЕЛЬСТВО О ПРИЕМКЕ; ГАРАНТИЙНЫЙ ТАЛОН
- 28 Реквизиты организации, выполнившей гарантийный ремонт