Котел FLAMES КОД-12 - инструкция пользователя по применению, эксплуатации и установке на русском языке. Мы надеемся, она поможет вам решить возникшие у вас вопросы при эксплуатации техники.
Если остались вопросы, задайте их в комментариях после инструкции.
"Загружаем инструкцию", означает, что нужно подождать пока файл загрузится и можно будет его читать онлайн. Некоторые инструкции очень большие и время их появления зависит от вашей скорости интернета.

- 12 -
Наиболее оптимальным решением для монтажа дымохода
–
применение
двухконтурного
утепленного дымохода «сэндвич». Внутренняя труба должна быть
выполнена из коррозионно
-
жаростойкой нержавеющей стали
AISI
304 толщиной
не менее
1,0
мм, наружная труба –
так
же из нержавеющей стали
.
Пространство между трубами
заполнено базальтовым уплотнителем
.
Применение дымоходов
«сэндвич»
позволяет
располагать трубу как внутри
,
так и снаружи здания. Так как котел работает с высоким КПД
,
печные газы на выходе из котла имеют относительно низкую температуру.
Применение
утепленных дымоходов не позволяет трубе остыть
,
сводя образование
конденсата к
минимуму
.
Монтаж дымохода «сэндвич»
следует начинать
снизу
по направлению котла
вверх.
Внутренняя труба последующего элемента всегда входит внутрь трубы предыдущего
,
чтобы конденсат и осадки не попадали на утеплитель
.
Наружная труба
,
в свою очередь
,
устанавливается на предыдущую.
Покупайте «сэндвич»
дымоходы
только
в
специализированных магазинах
,
внимательно ознакомьтесь с документацией
на изделие
и
обратитесь за консультацией к продавцу
.
Любой теплогенерирующий агрегат
–
это
пожароопасное устройство, поручите монтаж дымохода квалифицированным специалистам
,
несущим ответственность за качество выполненных работ
.
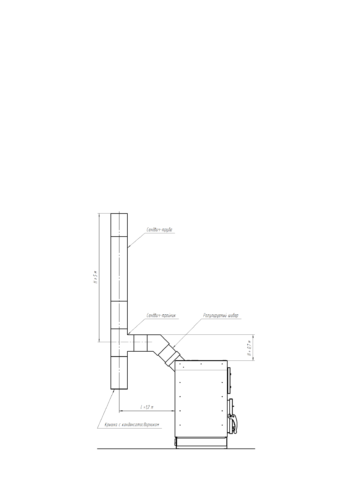
5.3.9
Варианты подключения
котла
к дымовой трубе показаны на рисунках
5.1-3.
5.3.10
Параметры дымохода указаны в таблице
1.
5.3.11
Варианты расположения трубы на скате крыши показаны на рисунке
6.
Рисунок
5.2
–
Подключение котла к дымовой трубе
Содержание
- 2 Flames; Разработчик и производитель:
- 6 Т Е Х Н И Ч Е С К И Е Х А Р А К Т Е Р И С Т И К И; Тепловая производительность
- 9 ТРЕБОВАНИЕ К КОТЕЛЬНОЙ
- 10 ПОДКЛЮЧЕНИЕ КОТЛА К ДЫМОВОЙ ТРУБЕ
- 12 AISI; Рисунок
- 14 ПОДКЛЮЧЕНИЕ К СИСТЕМЕ ОТОПЛЕНИЯ; pH; СХЕМЫ ПОДКЛЮЧЕНИЯ КОТЛА К СИСТЕМЕ ОТОПЛЕНИЯ
- 17 П Р И М Е Н Е Н И Е А Н Т И Ф Р И З О В В С И С Т Е М Е О Т О П Л Е Н И Я
- 18 Т О П К А К О Т Л А; ПОДГОТОВКА КОТЛА
- 19 РЕЖИМЫ УПРАВЛЕНИЯ КОТЛОМ; Регулирование в ручном режиме; З А П У С К К О Т Л А И О С Н О В Н Ы Е Р Е Ж И М Ы Г О Р Е Н И Я
- 20 РЕЖИМ ВНЕШНЕГО ГОРЕНИЯ (ЭКОНОМИЧНЫЙ , ДЛИТЕЛЬНЫЙ; Укладку; РЕЖИМ ГОРЕНИЯ В ОБЪЕМЕ ( ПОВЫШЕННОЙ МОЩНОСТИ)
- 21 Ч И С Т К А К О Т Л А И Е Г О Т Е Х Н И Ч Е С К О Е О Б С Л У Ж И В А Н И Е
- 22 М Е Р Ы Б Е З О П А С Н О С Т И
- 23 Г А Р А Н Т И Й Н Ы Е О Б Я З А Т Е Л Ь С Т В А
- 24 Условия прекра щения действия гарантийных обязательств
- 27 ГАРАНТИЙНЫЙ ТАЛОН
- 30 Реквизиты организации, выполнившей гарантийный ремонт
- 31 ДЛЯ ЗАМЕТОК