Котел Ferroli Pegasus D 45 K 130 - инструкция пользователя по применению, эксплуатации и установке на русском языке. Мы надеемся, она поможет вам решить возникшие у вас вопросы при эксплуатации техники.
Если остались вопросы, задайте их в комментариях после инструкции.
"Загружаем инструкцию", означает, что нужно подождать пока файл загрузится и можно будет его читать онлайн. Некоторые инструкции очень большие и время их появления зависит от вашей скорости интернета.

PEGASUS D K 130
151
RU
cod. 3540I560 - 03/2008 (Rev. 00)
4.4 "
. 27
32
#);5%+`#11=Q 1'** *#*!$9= !<%$1#+
42
'!-#; !$9<$)'!5)= "(= " *#*!$9$
44
'"=Q ;%'<'1
72
91'!1=Q !$)9*!'!
81
%$;!)( )J#'
82
%$(+2#Q X%$;!)(
126
$)9*!'! !$9<$)'!5)= (=9"=\ '"
130
#);5%+`#11=Q 1'** >Q%$)'
138
'!-#; 1')5J1Q !$9<$)'!5)=
139
(#1#`' *)$(=
246
'!-#; ('"%$1#+
278
"Q1Q ('!-#; (<)$(\)'1#!$%&1=Q +
!$9<$)'!5)= "(= " *#*!$9$ !<%$1#+)
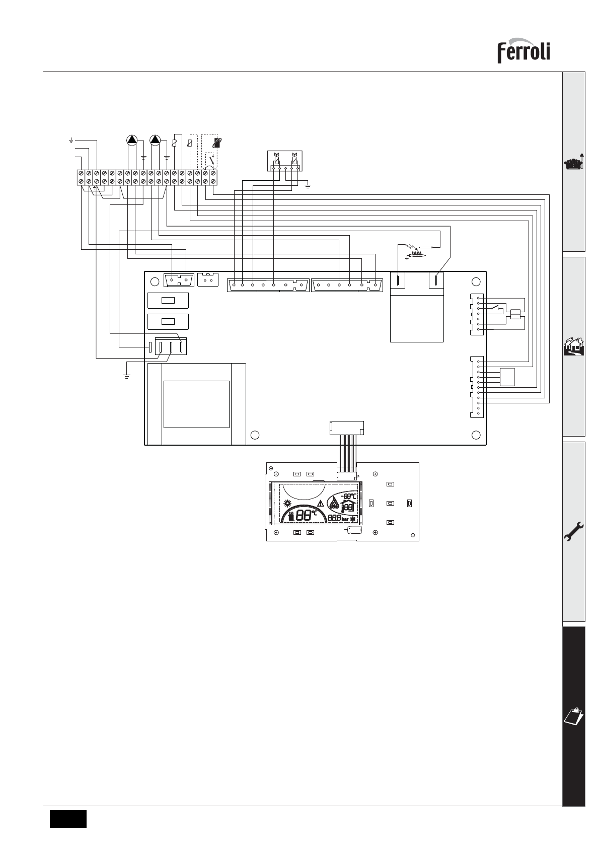
DSP05
7
6
5
4
3
2
1
11
10
9
8
7
6
5
4
3
2
1
T1
T2
X7
7
6
5
4
3
2
1
6
5
4
3
2
1
X5
F1
F2
X1
X2
X4
X3
X6
X8
X10
2
1
T°
T°
278
GND
+5V
OUT
246
L
N
230V
50Hz
138
139
72
L
N
4
5
6
7
8 9 10 11 12 13 14 15 16 17 18
126
DBM07
44
32
130
42
82
81