Котел Ferroli Pegasus D 32 - инструкция пользователя по применению, эксплуатации и установке на русском языке. Мы надеемся, она поможет вам решить возникшие у вас вопросы при эксплуатации техники.
Если остались вопросы, задайте их в комментариях после инструкции.
"Загружаем инструкцию", означает, что нужно подождать пока файл загрузится и можно будет его читать онлайн. Некоторые инструкции очень большие и время их появления зависит от вашей скорости интернета.

PEGASUS D
43
RU
cod. 3540U170 - 09/2009 (Rev. 00)
5.4
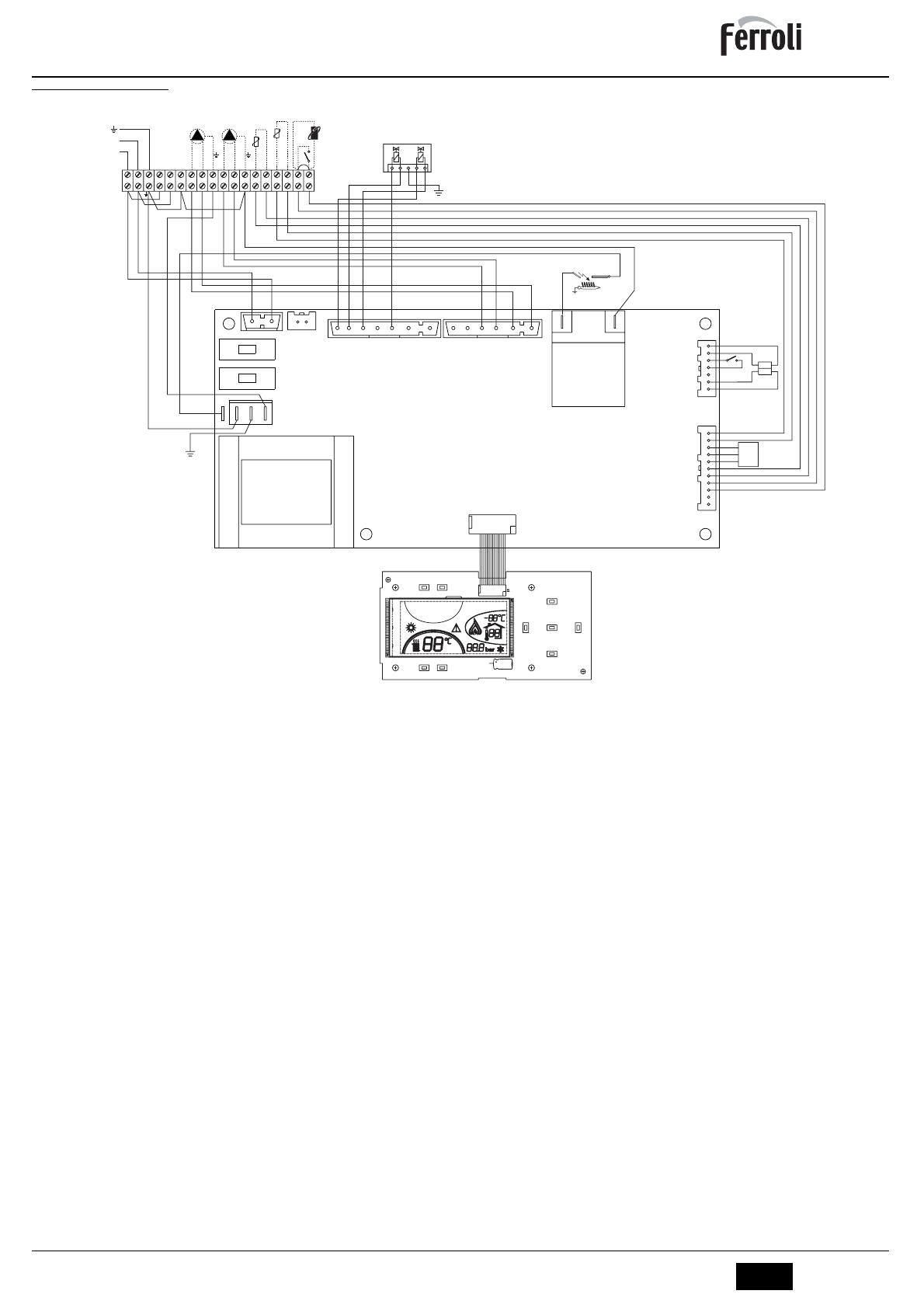
ɗɥɟɤɬɪɢɱɟɫɤɚɹ ɫɯɟɦɚ
ɪɢɫ
. 25 -
ɗɥɟɤɬɪɢɱɟɫɤɚɹ ɫɯɟɦɚ
32
ɐɢɪɤɭɥɹɰɢɨɧɧɵɣ ɧɚɫɨɫ
(
ɨɩɰɢɹ
)
42
Ⱦɚɬɱɢɤ ɬɟɦɩɟɪɚɬɭɪɵ ɜɨɞɵ ɜ ɫɢɫɬɟɦɚ Ƚȼɋ
(
ɨɩɰɢɹ
)
44
Ƚɚɡɨɜɵɣ ɤɥɚɩɚɧ
72
Ʉɨɦɧɚɬɧɵɣ ɬɟɪɦɨɫɬɚɬ
(
ɢɫɤɥɸɱɟɧ ɢɡ ɩɨɫɬɚɜɤɢ
)
81
ɗɥɟɬɪɨɞ ɪɨɡɠɢɝɚ
82
ɋɥɟɞɹɳɢɣ ɷɥɟɤɬɪɨɞ
126
Ɍɟɪɦɨɫɬɚɬ ɬɟɦɩɟɪɚɬɭɪɵ ɞɵɦɨɜɵɯ ɝɚɡɨɜ
130
ɐɢɪɤɭɥɹɰɢɨɧɧɵɣ ɧɚɫɨɫ ɫɢɫɬɟɦɵ Ƚȼɋ
(
ɨɩɰɢɹ
)
138
Ⱦɚɬɱɢɤ ɧɚɪɭɠɧɨɣ ɬɟɦɩɟɪɚɬɭɪɵ
(
ɢɫɤɥɸɱɟɧ ɢɡ ɩɨɫɬɚɜɤɢ
)
139
ȿɞɢɧɢɰɚ ɩɨɦɟɳɟɧɢɹ
(
ɢɫɤɥɸɱɟɧɚ ɢɡ ɩɨɫɬɚɜɤɢ
)
246
Ⱦɚɬɱɢɤ ɞɚɜɥɟɧɢɹ
278
Ʉɨɦɛɢɧɢɪɨɜɚɧɧɵɣ ɞɚɬɱɢɤ
(
Ɂɚɳɢɬɚ
+
Ɉɬɨɩɥɟɧɢɟ
)
DSP05
7
6
5
4
3
2
1
11
10
9
8
7
6
5
4
3
2
1
T1
T2
X7
7
6
5
4
3
2
1
6
5
4
3
2
1
X5
F1
F2
X1
X2
X4
X3
X6
X8
X10
2
1
T°
T°
278
GND
+5V
OUT
246
L
N
230V
50Hz
138
139
72
L
N
4
5
6
7
8
9
10
11
12
13
14
15
16
17
18
126
44
82
81
32
130
42
DBM07A

 
  
  
  
  
  
  
  
  
  
  
  
  
  
  
  
  
  
  
  
  
  
 