Котел Ferroli Pegasus D 30 K 130 - инструкция пользователя по применению, эксплуатации и установке на русском языке. Мы надеемся, она поможет вам решить возникшие у вас вопросы при эксплуатации техники.
Если остались вопросы, задайте их в комментариях после инструкции.
"Загружаем инструкцию", означает, что нужно подождать пока файл загрузится и можно будет его читать онлайн. Некоторые инструкции очень большие и время их появления зависит от вашей скорости интернета.

PEGASUS D K 130
148
RU
cod. 3540I560 - 03/2008 (Rev. 00)
4.
4.1 #!", "
. 25
7
("( '' 1/2”
10
=\(1Q Y!5`$) ;1!5)' !<%$1#+ 3/4”
11
>)'!1=Q !)5><)"( *#*!$9= !<%$1#+ 3/4”
14
)$(\)'1#!$%&1=Q ;%'<'1 *#*!$9= !<%$1#+
32
#);5%+`#11=Q 1'** *#*!$9= !<%$1#+
36
"!9'!#-$*;#Q "(5\!"(-#;
40
'*Y#)#!$%&1=Q >'; *#*!$9=
44
'"=Q ;%'<'1
56
'*Y#)#!$%&1=Q **5(
74
)'1 (%+ '%#";# "(= " *#*!$95
97
'1#$"=Q '1(
130
#);5%+`#11=Q 1'** >Q%$)'
143
$)9*!'! )$5%#)";# !$9<$)'!5)= "(= "
>Q%$)$
178
'%%1 !$)99$!)' >Q%$)'
179
>)'!1=Q ;%'<'1
180
Q%$)
192
1!5) )$`#);5%+`##
197
5-1Q "(5\!"(-#;
209
('62#Q !)5><)"( >Q%$)'
210
>)'!1=Q !)5><)"( >Q%$)'
233
%#"1Q ;)'1 >Q%$)'
246
'!-#; ('"%$1#+
255
%#"1Q ;1!5) "(+1Q *#*!$9= ;!%'
273
#%!1'+ )$%;'
275
%#"1Q ;)'1 *#*!$9= !<%$1#+
293
w%'1$` (%+ ;)=Y;# *9!)" ;1' >Q%$)'
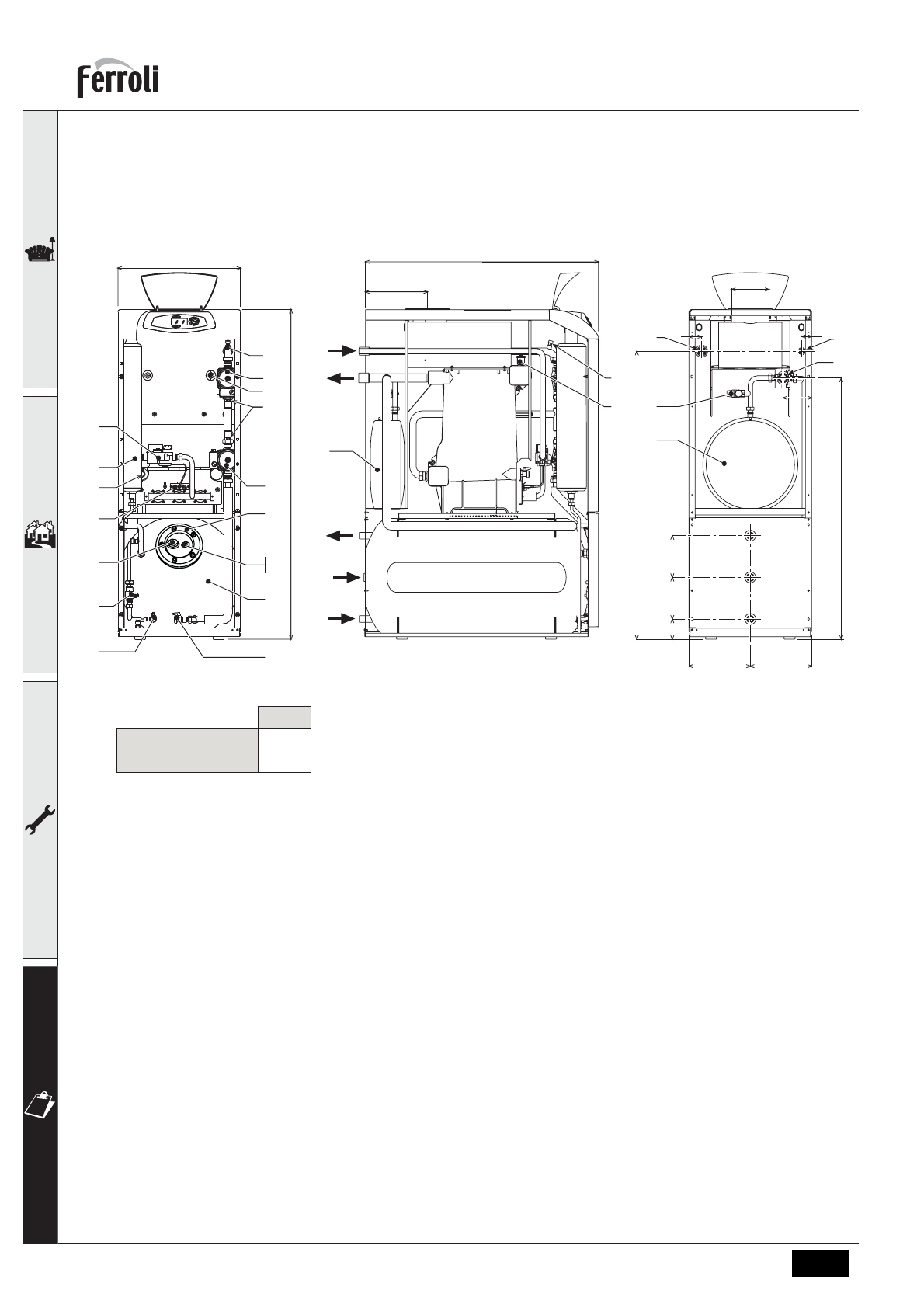
Pegasus D 30 K
Pegasus D 40 K
A
116
73
950
A
øi 150
40
52
250
250
82
170
170
1174
1065
A
11
10
209
192
210
500
1345
32
130
180
275
233
74
143
178
97
40
44
56
11
7
10
14
56
209
192
210
273
197
197
246
36
293
179
255