Котел Ferroli PEGASUS 97 2S с атмосферной горелкой - инструкция пользователя по применению, эксплуатации и установке на русском языке. Мы надеемся, она поможет вам решить возникшие у вас вопросы при эксплуатации техники.
Если остались вопросы, задайте их в комментариях после инструкции.
"Загружаем инструкцию", означает, что нужно подождать пока файл загрузится и можно будет его читать онлайн. Некоторые инструкции очень большие и время их появления зависит от вашей скорости интернета.

RU
4.4
ɇɟɢɫɩɪɚɜɧɨɫɬɢ ɢ ɫɩɨɫɨɛ ɭɫɬɪɚɧɟɧɢɹ
A
ȼɨ ɢɡɛɟɠɚɧɢɟ ɥɢɲɧɢɯ ɪɚɫɯɨɞɨɜ
,
ɩɟɪɟɞ ɬɟɦ
,
ɤɚɤ ɨɛɪɚɳɚɬɶɫɹ ɜ ɫɟɪɜɢɫɧɵɣ
ɰɟɧɬɪ
,
ɭɛɟɞɢɬɟɫɶ
,
ɱɬɨ ɩɪɢɱɢɧɨɣ ɧɟɢɫɩɪɚɜɧɨɫɬɢ ɧɟ ɹɜɥɹɟɬɫɹ ɨɬɫɭɬɫɬɜɢɟ
ɝɚɡɚ ɢɥɢ ɷɥɟɤɬɪɨɩɢɬɚɧɢɹ
.
5.
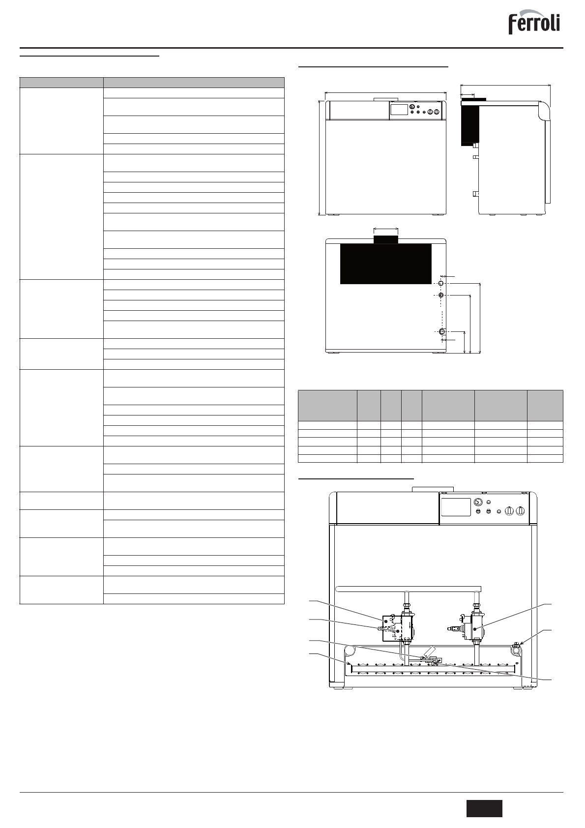
ɏȺɊȺɄɌȿɊɂɋɌɂɄɂ ɂ ɌȿɏɇɂɱȿɋɄɂȿ ȾȺɇɇɕȿ
5.1
Ƚɚɛɚɪɢɬɧɵɟ ɪɚɡɦɟɪɵ ɢ ɩɪɢɫɨɟɞɢɧɟɧɢɹ
ɪɢɫ
. 13 -
Ƚɚɛɚɪɢɬɧɵɟ ɪɚɡɦɟɪɵ ɢ ɩɪɢɫɨɟɞɢɧɟɧɢɹ
Ɍɚɛɥɢɰɚ
. 1
5.2
Ɉɛɳɢɣ ɜɢɞ ɢ ɨɫɧɨɜɧɵɟ ɭɡɥɵ
ɪɢɫ
. 14 -
Ɉɛɳɢɣ ɜɢɞ ɢ ɨɫɧɨɜɧɵɟ ɭɡɥɵ
Ʌɟɝɟɧɞɚ
1
ɉɢɥɨɬɧɚɹ ɝɨɪɟɥɤɚ
2
Ƚɚɡɨɜɵɣ ɤɥɚɩɚɧ ɞɥɹ ɜɫɟɯ ɦɨɞɟɥɟɣ
3
ɗɥɟɤɬɪɨɧɧɵɣ ɛɥɨɤ ɤɨɧɬɪɨɥɹ ɩɥɚɦɟɧɢ
12
2-
ɣ ɝɚɡɨɜɵɣ ɤɥɚɩɚɧ
(
ɬɨɥɶɤɨ ɞɥɹ ɦɨɞɟɥɟɣ
107 2S
ɢ
97 2S)
13
ɋɥɢɜɧɨɣ ɤɪɚɧ ɤɨɬɥɚ
14
Ȼɥɨɤ ɝɨɪɟɥɨɤ
15
Ɍɨɱɤɚ ɨɬɛɨɪɚ ɞɚɜɥɟɧɢɹ ɝɨɪɟɥɨɤ
ɇɟɢɫɩɪɚɜɧɨɫɬɶ
ɉɪɢɱɢɧɚ
/
ɋɩɨɫɨɛ ɭɫɬɪɚɧɟɧɢɹ
ɉɨɫɥɟ ɜɵɩɨɥɧɟɧɢɹ ɧɟɤɨɬɨɪɵɯ
ɩɨɩɵɬɨɤ ɪɨɡɠɢɝɚ ɷɥɟɤɬɪɨɧɧɵɣ
ɛɥɨɤ ɭɩɪɚɜɥɟɧɢɹ ɜɵɡɵɜɚɟɬ
ɛɥɨɤɢɪɨɜɤɭ ɤɨɬɥɚ
.
ɋ ɩɨɦɨɳɶɸ ɫɠɚɬɨɝɨ ɜɨɡɞɯɩ ɱɢɫɬɢɬɟ ɮɨɪɫɭɧɤɢ
>
ɩɢɥɨɬɧɨɣ ɝɨɪɟɥɤɢ
.
ɉɪɨɜɟɪɶɬɟ ɪɟɝɭɥɹɪɧɨɫɬɶ ɩɨɫɬɭɩɥɟɧɢɹ ɝɚɡɚ ɜ ɤɨɬɟɥ
,
ɢ ɭɛɟɞɢɬɟɫɶ ɱɬɨ ɜɨɡɞɭɯ
ɛɵɥ ɭɞɚɥɟɧ ɢɡ ɬɪɭɛ
.
ɉɪɨɜɟɪɶɬɟ ɩɪɚɜɢɥɶɧɨɫɬɶ ɩɨɡɢɰɢɨɧɢɪɨɜɚɧɢɹ ɷɥɟɤɬɪɨɞɨɜ ɢ ɨɬɫɭɬɫɬɜɢɟ ɧɚ
ɧɢɯ ɨɬɥɨɠɟɧɢɣ
(
ɫɦ
.
ɪɢɫ
. 11 ).
ɍɛɟɞɢɬɟɫɶ
,
ɱɬɨ ɤɨɬɟɥ ɩɨɞɤɥɸɱɟɧ ɤ ɧɚɞɟɠɧɨɣ ɫɢɫɬɟɦɟ ɡɚɡɟɦɥɟɧɢɹ
.
ɉɪɨɜɟɪɶɬɟ ɷɥɟɤɬɪɢɱɟɫɤɢɟ ɫɨɟɞɢɧɟɧɢɹ ɷɥɟɤɬɪɨɞɨɜ ɪɨɡɠɢɝɚ ɢ ɢɨɧɢɡɚɰɢɢ
.
Ɉɬɫɭɬɫɬɜɢɟ ɢɫɤɪɵ ɦɟɠɞɭ
ɷɥɟɤɬɪɨɞɚɦɢ ɩɪɢ ɪɨɡɠɢɝɟ
.
ɉɪɨɜɟɪɶɬɟ ɩɪɚɜɢɥɶɧɨɫɬɶ ɩɨɡɢɰɢɨɧɢɪɨɜɚɧɢɹ ɷɥɟɤɬɪɨɞɨɜ ɢ ɨɬɫɭɬɫɬɜɢɟ ɧɚ
ɧɢɯ ɨɬɥɨɠɟɧɢɣ
(
ɫɦ
.
ɪɢɫ
. 11 ).
ɇɟɩɪɚɜɢɥɶɧɚɹ ɧɚɫɬɪɨɣɤɚ ɪɟɝɭɥɢɪɨɜɨɱɧɨɝɨ ɬɟɪɦɨɫɬɚɬɚ
.
ɉɪɨɜɟɪɶɬɟ ɫɢɫɬɟɦɭ ɷɥɟɤɬɪɨɩɢɬɚɧɢɹ
.
ɉɪɨɜɟɪɶɬɟ ɷɥɟɤɬɪɢɱɟɫɤɢɟ ɫɨɟɞɢɧɟɧɢɹ ɷɥɟɤɬɪɨɞɨɜ ɪɨɡɠɢɝɚ ɢ ɢɨɧɢɡɚɰɢɢ
.
ɉɪɨɜɟɪɶɬɟ ɫɨɟɞɢɧɟɧɢɹ ɫ ɷɥɟɤɬɪɨɧɧɵɦ ɛɥɨɤɨɦ ɤɨɧɬɪɨɥɹ ɩɥɚɦɟɧɢ
.
ɉɪɨɜɟɪɶɬɟ
,
ɱɬɨɛɵ ɩɪɨɜɨɞɚ ɎȺɁɕ ɢ ɇȿɃɌɊȺɅɂ ɧɟ ɛɵɥɢ ɩɟɪɟɩɭɬɚɧɵ
,
ɢ
ɭɛɟɞɢɬɟɫɶ ɜ ɧɚɞɟɠɧɨɫɬɢ ɤɨɧɬɚɤɬɨɜ ɡɚɡɟɦɥɟɧɢɹ
.
ɉɪɨɜɟɪɶɬɟ ɞɚɜɥɟɧɢɟ ɝɚɡɚ ɧɚ ɜɯɨɞɟ ɢ ɧɚɥɢɱɢɟ ɪɚɡɨɦɤɧɭɬɵɯ ɪɟɥɟ
ɞɚɜɥɟɧɢɹ
.
ɉɪɢɜɟɞɢɬɟ ɩɪɟɞɨɯɪɚɧɢɬɟɥɶɧɵɣ ɬɟɪɦɨɫɬɚɬ ɜ ɪɚɛɨɱɟɟ ɫɨɫɬɨɹɧɢɟ
.
ɉɪɢɜɟɞɢɬɟ ɬɟɪɦɨɫɬɚɬ ɞɵɦɨɜɵɯ ɝɚɡɨɜ ɜ ɪɚɛɨɱɟɟ ɫɨɫɬɨɹɧɢɟ
.
ɍɛɟɞɢɬɟɫɶ
,
ɱɬɨ ɤɨɧɬɚɤɬ ɤɨɦɧɚɬɧɨɝɨ ɬɟɪɦɨɫɬɚɬɚ ɡɚɤɪɵɬ
.
Ƚɨɪɟɥɤɚ ɝɨɪɢɬ ɩɥɨɯɨ
:
ɫɥɢɲɤɨɦ
ɛɨɥɶɲɨɟ ɩɥɚɦɹ
,
ɫɥɢɲɤɨɦ
ɦɚɥɟɧɶɤɨɟ ɩɥɚɦɹ
,
ɠɟɥɬɨɟ ɩɥɚɦɹ
Ɂɚɫɨɪɟɧɢɟ ɮɢɥɶɬɪɚ ɝɚɡɨɜɨɝɨ ɤɥɚɩɚɧɚ
.
ɉɪɨɜɟɪɶɬɟ ɞɚɜɥɟɧɢɟ ɩɨɞɚɱɢ ɝɚɡɚ
.
Ɂɚɫɨɪɟɧɢɟ ɮɨɪɫɭɧɨɤ
.
ɉɪɨɜɟɪɶɬɟ ɫɨɫɬɨɹɧɢɟ ɱɢɫɬɨɬɵ ɤɨɬɥɚ
ɉɪɨɜɟɪɶɬɟ
,
ɨɛɟɫɩɟɱɢɜɚɟɬ ɥɢ ɜɟɧɬɢɥɹɰɢɹ ɩɨɦɟɳɟɧɢɹ
,
ɜ ɤɨɬɨɪɨɦ
ɧɚɯɨɞɢɬɫɹ ɤɨɬɟɥ
,
ɧɨɪɦɚɥɶɧɵɟ ɭɫɥɨɜɢɹ ɝɨɪɟɧɢɹ
.
Ɂɚɩɚɯ ɧɟɝɨɪɹɳɟɝɨ ɝɚɡɚ
ɉɪɨɜɟɪɶɬɟ ɫɨɫɬɨɹɧɢɟ ɱɢɫɬɨɬɵ ɤɨɬɥɚ
.
Ɉɛɫɥɟɞɭɣɬɟ ɞɵɦɨɯɨɞ
.
ɍɛɟɞɢɬɟɫɶ
,
ɱɬɨ ɪɚɫɯɨɞ ɝɚɡɚ ɧɟ ɫɥɢɲɤɨɦ ɛɨɥɶɲɨɣ
.
Ʉɨɬɟɥ ɪɚɛɨɬɚɟɬ ɧɨɪɦɚɥɶɧɨ
,
ɧɨ
ɬɟɦɩɟɪɚɬɭɪɚ ɧɟ ɩɨɜɵɲɚɟɬɫɹ
ɉɪɨɜɟɪɶɬɟ ɮɭɧɤɰɢɨɧɢɪɨɜɚɧɢɟ
2-
ɫɬɭɩɟɧɱɚɬɨɝɨ ɪɟɝɭɥɢɪɨɜɨɱɧɨɝɨ
ɬɟɪɦɨɫɬɚɬɚ
.
ɉɪɨɜɟɪɶɬɟ ɧɚɥɢɱɢɟ ɩɢɬɚɧɢɹ ɩɪɢɜɨɞɚ
2-
ɨɣ ɫɬɭɩɟɧɢ ɝɚɡɨɜɨɝɨ ɤɥɚɩɚɧɚ
(
ɦɚɤɫɢɦɚɥɶɧɚɹ ɦɨɳɧɨɫɬɶ
).
ɉɪɨɜɟɪɶɬɟ
,
ɱɬɨ ɪɚɫɯɨɞ ɝɚɡɚ ɧɟ ɧɢɠɟ ɧɨɦɢɧɚɥɚ
.
ɉɪɨɜɟɪɶɬɟ ɫɨɫɬɨɹɧɢɟ ɱɢɫɬɨɬɵ ɤɨɬɥɚ
.
ɉɪɨɜɟɪɶɬɟ ɦɨɳɧɨɫɬɶ ɤɨɬɥɚ ɧɚ ɫɨɨɬɜɟɬɫɬɜɢɟ ɫ ɫɢɫɬɟɦɨɣ ɨɬɨɩɥɟɧɢɹ
.
ɍɛɟɞɢɬɟɫɶ
,
ɱɬɨ ɧɚɫɨɫ ɫɢɫɬɟɦɵ ɨɬɨɩɥɟɧɢɹ ɧɟ ɛɥɨɤɢɪɨɜɚɧ
.
ȼɵɫɨɤɚɹ ɢɥɢ ɧɢɡɤɚɹ
ɬɟɦɩɟɪɚɬɭɪɚ ɜɨɞɵ ɜ ɫɢɫɬɟɦɟ
ɨɬɨɩɥɟɧɢɹ
ɉɪɨɜɟɪɶɬɟ ɮɭɧɤɰɢɨɧɢɪɨɜɚɧɢɟ
2-
ɫɬɭɩɟɧɱɚɬɨɝɨ ɪɟɝɭɥɢɪɨɜɨɱɧɨɝɨ
ɬɟɪɦɨɫɬɚɬɚ
.
ɍɛɟɞɢɬɟɫɶ
,
ɱɬɨ ɧɚɫɨɫ ɫɢɫɬɟɦɵ ɨɬɨɩɥɟɧɢɹ ɧɟ ɛɥɨɤɢɪɨɜɚɧ
ɉɪɨɜɟɪɶɬɟ ɯɚɪɚɤɬɟɪɢɫɬɢɤɢ ɰɢɪɤɭɥɹɰɢɨɧɧɨɝɨ ɧɚɫɨɫɚ ɧɚ ɫɨɨɬɜɟɬɫɬɜɢɟ ɫ
ɪɚɡɦɟɪɚɦɢ ɫɢɫɬɟɦɵ ɨɬɨɩɥɟɧɢɹ
.
ȼɡɪɵɜ ɝɨɪɟɥɤɢ
.
Ɂɚɩɚɡɞɵɜɚɧɢɟ
ɩɪɢ ɪɨɡɠɢɝɟ
ɍɛɟɞɢɬɟɫɶ ɜ ɧɚɥɢɱɢɢ ɞɨɫɬɚɬɨɱɧɨɝɨ ɞɚɜɥɟɧɢɹ ɝɚɡɚ ɢ ɩɪɨɜɟɪɶɬɟ
,
ɱɬɨɛɵ
ɤɨɪɩɭɫ ɤɨɬɥɚ ɧɟ ɛɵɥ ɡɚɫɨɪɟɧ
.
Ɋɟɝɭɥɢɪɨɜɨɱɧɵɣ ɬɟɪɦɨɫɬɚɬ
ɜɤɥɸɱɚɟɬɫɹ ɩɪɢ ɫɥɢɲɤɨɦ
ɛɨɥɶɲɨɦ ɩɟɪɟɩɚɞɟ ɬɟɦɩɟɪɚɬɭɪɵ
ɍɛɟɞɢɬɟɫɶ
,
ɱɬɨ ɤɨɥɛɚ ɩɪɚɜɢɥɶɧɨ ɭɫɬɚɧɨɜɥɟɧɚ ɜ ɫɨɨɬɜɟɬɫɬɜɭɸɳɟɦ ɤɨɠɭɯɟ
.
ɉɪɨɜɟɪɶɬɟ ɮɭɧɤɰɢɨɧɢɪɨɜɚɧɢɟ
2-
ɫɬɭɩɟɧɱɚɬɨɝɨ ɪɟɝɭɥɢɪɨɜɨɱɧɨɝɨ
ɬɟɪɦɨɫɬɚɬɚ
.
Ɉɛɪɚɡɨɜɚɧɢɟ ɤɨɧɞɟɧɫɚɬɚ ɜ ɤɨɬɥɟ ɉɪɨɜɟɪɶɬɟ
,
ɧɟ ɪɚɛɨɬɚɟɬ ɥɢ ɤɨɬɟɥ ɩɪɢ ɫɥɢɲɤɨɦ ɧɢɡɤɨɣ ɬɟɦɩɟɪɚɬɭɪɟ
(
ɧɢɠɟ
50°C).
ɉɪɨɜɟɪɶɬɟ ɪɚɫɯɨɞ ɝɚɡɚ
.
ɉɪɨɜɟɪɶɬɟ ɫɨɫɬɨɹɧɢɟ ɞɵɦɨɯɨɞɚ
.
Ʉɨɬɟɥ ɜɵɤɥɸɱɚɟɬɫɹ ɛɟɡ ɹɜɧɨɣ
ɩɪɢɱɢɧɵ
ɋɪɚɛɚɬɵɜɚɧɢɟ ɩɪɟɞɨɯɪɚɧɢɬɟɥɶɧɨɝɨ ɬɟɪɦɨɫɬɚɬɚ ɜɫɥɟɞɫɬɜɢɟ ɩɨɜɵɲɟɧɧɨɣ
ɬɟɦɩɟɪɚɬɭɪɵ
.
ɋɪɚɛɚɬɵɜɚɧɢɟ ɬɟɪɦɨɫɬɚɬɚ ɞɵɦɨɜɵɯ ɝɚɡɨɜ
.
Ɍɢɩ ɢ ɦɨɞɟɥɶ
A
B
C
a1
Ɉɛɪɚɬɧɵɣ ɤɨɧɬɭɪ
ɫɢɫɬɟɦɵ ɨɬɨɩɥɟɧɢɹ
a2
ɉɨɞɚɸɳɢɣ ɤɨɧɬɭɪ
ɫɢɫɬɟɦɵ ɨɬɨɩɥɟɧɢɹ
a3
Ɍɨɱɤɚ
ɩɨɞɜɨɞɚ
ɝɚɡɚ
PEGASUS 67 2S
760
100
180
1” 1/4
1” 1/4
3/4”
PEGASUS 77 2S
850
110
200
1” 1/4
1” 1/4
3/4”
PEGASUS 87 2S
930
110
200
1” 1/4
1” 1/4
3/4”
PEGASUS 97 2S
1020
110
200
1” 1/4
1” 1/4
3/4”
PEGASUS 107 2S
1100
120
220
1” 1/4
1” 1/4
3/4”
C
42
32
182
492
592
A
970
760
B
12
13
14
1
2
3
15
P
PEGASUS
6
67
2
S
6
6
6
6
cod. 3541E521 - Rev. 00 - 05/2014

 
  
  
  
  
  
  
  
  
  
  
  
 