Котел Ferroli New Elite F24 - инструкция пользователя по применению, эксплуатации и установке на русском языке. Мы надеемся, она поможет вам решить возникшие у вас вопросы при эксплуатации техники.
Если остались вопросы, задайте их в комментариях после инструкции.
"Загружаем инструкцию", означает, что нужно подождать пока файл загрузится и можно будет его читать онлайн. Некоторые инструкции очень большие и время их появления зависит от вашей скорости интернета.

NEW ELITE F 24 E
33
4
ХАРАКТЕРИСТИКИ
И
ТЕХНИЧЕСКИЕ
ДАННЫЕ
4.1
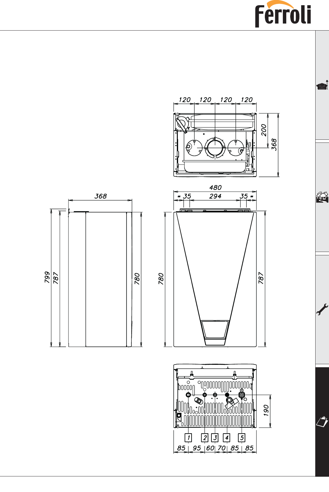
Габаритные
размеры
и
места
соединений
Рис
. 19
Вид
сверху
Вид
снизу
Условные
обозначения
1
Подача
горячей
воды
в
контур
системы
отопления
2
Подача
горячей
воды
в
контур
горячего
водоснабжения
3
Подача
газа
4
Вход
холодной
воды
для
контура
горячего
водоснабжения
5
Возврат
воды
из
контура
системы
отопления
Содержание
- 2 NEW ELITE F 24 E; Декларация
- 4 Введение
- 5 Панель
- 7 MENU
- 8 Регулирование; помощью; CO; Запуск
- 9 Номер
- 10 Закрыто
- 11 Техническое
- 12 Общие
- 13 Крепление
- 14 Гидравлические
- 16 NEW ELITE F 24; Подключение
- 17 Электрические
- 20 Подсоединение
- 21 Вертикальный; Для
- 26 ЭКСПЛУАТАЦИЯ; ОБСЛУЖИВАНИЕ
- 27 Метан; Параметр
- 28 Ввод
- 29 Отлючение; Сезонные
- 31 Устранение; Диагностика
- 33 Габаритные
- 34 Общий
- 35 Гидравлическая
- 37 Диаграммы
- 38 Электрическая