Котел Ferroli GN 2 N 12 - инструкция пользователя по применению, эксплуатации и установке на русском языке. Мы надеемся, она поможет вам решить возникшие у вас вопросы при эксплуатации техники.
Если остались вопросы, задайте их в комментариях после инструкции.
"Загружаем инструкцию", означает, что нужно подождать пока файл загрузится и можно будет его читать онлайн. Некоторые инструкции очень большие и время их появления зависит от вашей скорости интернета.

2.1
,
,
,
2
.
,
.
,
,
-
.
, ,
,
.
,
,
,
0,5
1
.
2.2
,
.
,
,
,
,
.
,
.
2.3
230 , 50
3
.
(
) –
4.
,
.
-
.
,
.
,
,
,
,
2.4
.
,
.
,
–
.
2.5
:
1.
, 4
,
,
,
.
.
.
2.
, 3
,
,
.
-
,
1
,
,
-
.
-
.
B
.
1,2,3 4
. .
1,2,3 4
5-8
.
.
. .
.
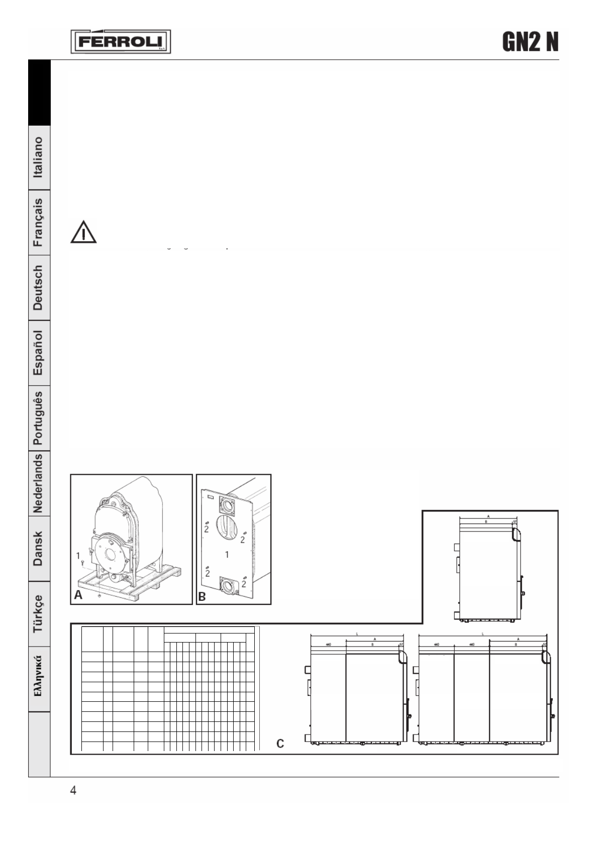
№
.
L
A
B
1 2 3 4 5 1 2 3 4 1 2 3 4
.
GN2 N
5
/
604 547 1 1 1
GN2 N
6
/
714 657 1 1 1
GN2 N
7
/
824 767 1
1 1
GN2 N
8
/
934 877 1 1 1
GN2 N
9 1044 604 547 1 1 1 1 2
GN2 N
10 1154 714 657 1 1 1 1 2
GN2 N
11 1264 824 767 1
1 1 1 2
GN2 N
12 1374 934 877 1
1 1 1 2
GN2 N
13 1484 604 547 1 2 1 1 4
GN2 N
14 1594 714 657 1 2 1 1 4
5
5
1,2,3 4
1,2,3 4
5
. .
1,2,3 4
. .
1,2,3 4
13-14
9-12
,
(
.
.)