Котел Ferroli GN 2 N 08 - инструкция пользователя по применению, эксплуатации и установке на русском языке. Мы надеемся, она поможет вам решить возникшие у вас вопросы при эксплуатации техники.
Если остались вопросы, задайте их в комментариях после инструкции.
"Загружаем инструкцию", означает, что нужно подождать пока файл загрузится и можно будет его читать онлайн. Некоторые инструкции очень большие и время их появления зависит от вашей скорости интернета.

4.
+ . .
№
.
-
∅
(
)
3
Δ
p
3
Δ
t 10
Δ
t 20
GN2 N 05
98,8 80 90
73 5
49
4
647
130
180
0,4 63 2,8 - 310
GN2 N 06
116,0 95 107
87 6
57
4
757
130
180
0,4 77 3,4 - 361
GN2 N 07
136,9 110 126
101 7
65
4
867
130
180
0,4
91 4,8
0,5 412
GN2 N 08
156,5 125 144
115 8
73
4
977
154
200
0,4 104 6,5
0,8 463
GN2 N 09
176,0 140 162
129 9
81
4 1087
154
200
0,4 118 8,5
1,8 514
GN2 N 10
195,6 155 180
143
10
89
4 1197
154
200
0,4 132 11 2,2 565
GN2 N 11
215,2 170 198
157
11
97
4 1307
154
200
0,4 146 13 2,6 616
GN2 N 12
234,7 185 216
171
12
105
4 1417
154
200
0,4 160 16 3,2 670
GN2 N 13
254,3 200 234
185
13
113
4 1527
154
200
0,4 174 19 4 725
GN2 N 14
273,9 215 252
199
14
121
4 1637
154
200
0,4 187 23 4,5 780
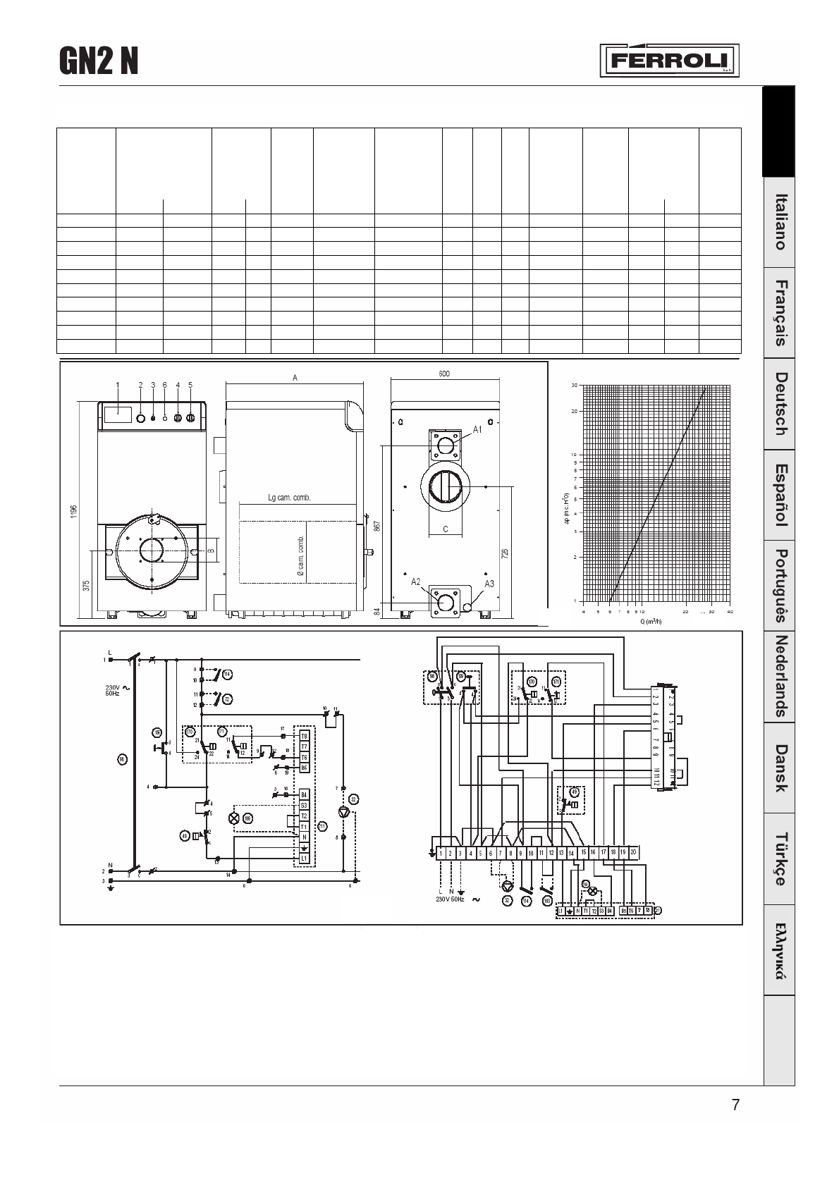
Рис
. 3
Рис
. 4
Рис
. 5
32
(
)
49
1
72
-
(
.)
2
98
3
114
4
159
2-
5
160
6
170
1-
a1
171
.
DN80-3”
2
a2
189
DN80-3”
(
.)
–
a3
211
3/4"