Ferroli Econcept Tech 35 C - Инструкция по эксплуатации - Страница 31

Котел Ferroli Econcept Tech 35 C - инструкция пользователя по применению, эксплуатации и установке на русском языке. Мы надеемся, она поможет вам решить возникшие у вас вопросы при эксплуатации техники.

Если остались вопросы, задайте их в комментариях после инструкции.

"Загружаем инструкцию", означает, что нужно подождать пока файл загрузится и можно будет его читать онлайн. Некоторые инструкции очень большие и время их появления зависит от вашей скорости интернета.
Страница:
/ 33
Загружаем инструкцию
background image

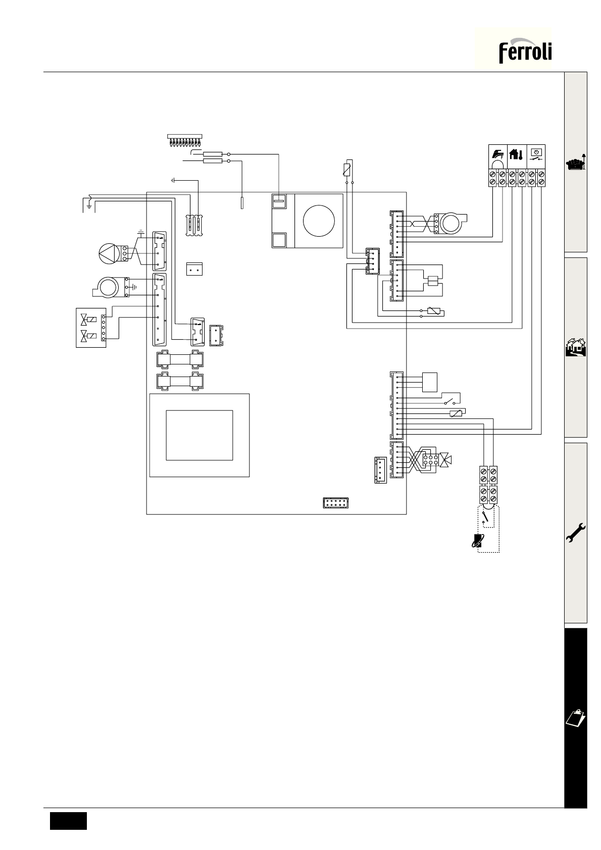
ECONCEPT TECH 35 C

115

RU

cod. 3540I411  -  03/2008  (Rev. 00)

4.6

Э

  

. 33 - 

Э

 

A

 

 > 

 

   

 

 

 

 

 

 

 

.

16

 

32

 

 

 

 

42

 

 

 

 

44

 

 

72

 

 

 

82

 

 

95

 

 

114

 

 

 

136
138

 

 

139

 

 

 

186

 

188

 

191

 

 

 

278

 

 (

  + 

)

A

 ON/OFF 

72

95

42

114

136

191

16

186

188

82


278

139

138

A

32

16

44

N

L

230V
50Hz

GND
OUT
+5V

1 2 3 4 5 6

DBM04A

Полезные видео

Характеристики

Оцените статью
tehnopanorama.ru
Остались вопросы?

Не нашли свой ответ в руководстве или возникли другие проблемы? Задайте свой вопрос в форме ниже с подробным описанием вашей ситуации, чтобы другие люди и специалисты смогли дать на него ответ. Если вы знаете как решить проблему другого человека, пожалуйста, подскажите ему :)

Задать вопрос

Часто задаваемые вопросы
Как посмотреть инструкцию к Ferroli Econcept Tech 35 C?
Необходимо подождать полной загрузки инструкции в сером окне на данной странице
Руководство на русском языке?
Все наши руководства представлены на русском языке или схематично, поэтому вы без труда сможете разобраться с вашей моделью
Как скопировать текст из PDF?
Чтобы скопировать текст со страницы инструкции воспользуйтесь вкладкой "HTML"