Котел Ferroli Econcept Tech 25C - инструкция пользователя по применению, эксплуатации и установке на русском языке. Мы надеемся, она поможет вам решить возникшие у вас вопросы при эксплуатации техники.
Если остались вопросы, задайте их в комментариях после инструкции.
"Загружаем инструкцию", означает, что нужно подождать пока файл загрузится и можно будет его читать онлайн. Некоторые инструкции очень большие и время их появления зависит от вашей скорости интернета.

ECONCEPT TECH 25 C
117
RU
cod. 3540I381 - 06/2008 (Rev. 00)
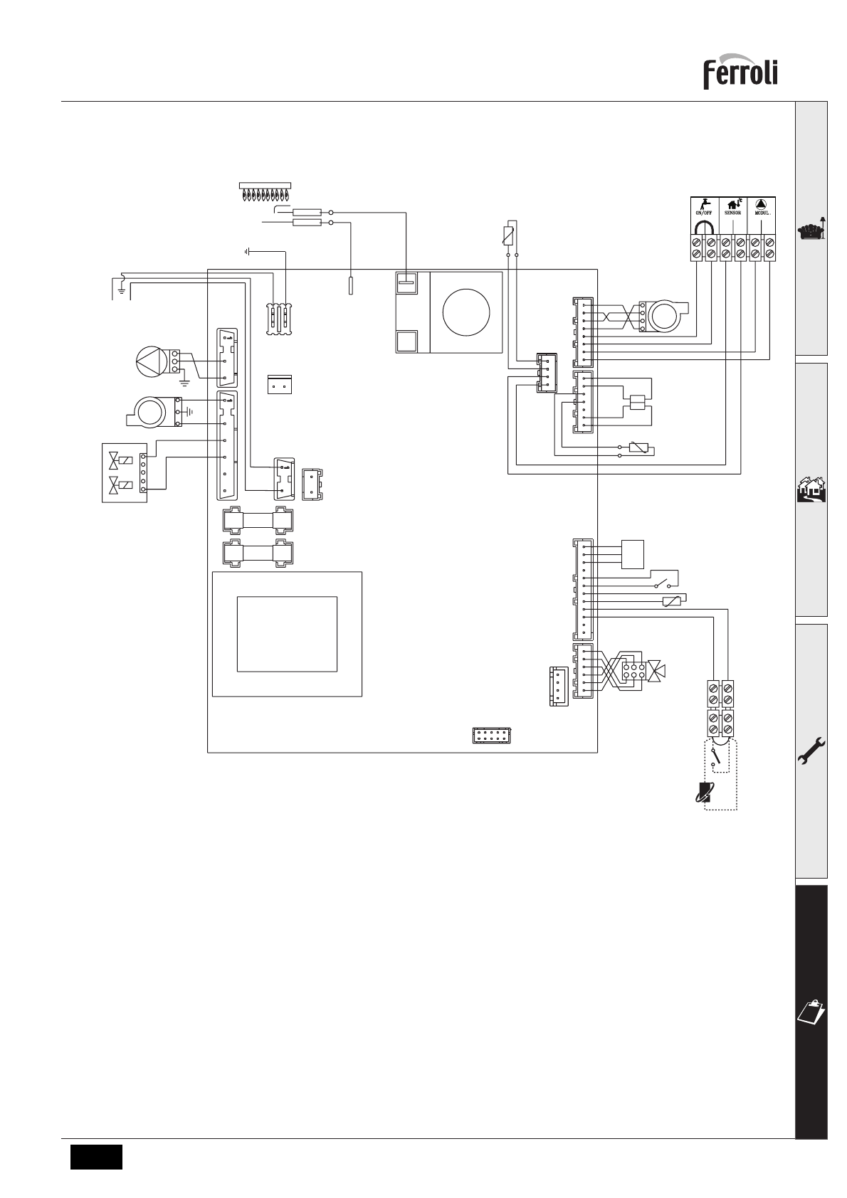
4.6
Электрическая
схема
рис
. 33 -
Электрическая
схема
A
Внимание
:
Перед
подключением
>
комнатного
термостата
или
устройства
ДУ
снимите
перемычку
на
доске
зажимов
.
16
Вентилятор
32
Циркуляционный
насос
системы
отопления
42
Датчик
температуры
воды
ГВС
44
Газовый
клапан
72
Комнатный
термостат
82
Следящий
электрод
95
Отводной
клапан
114
Реле
давления
воды
136
Расходомер
138
Датчик
наружной
температуры
139
Устройство
дистанционного
управления
с
таймером
186
Датчик
возврата
188
Электрод
розжига
191
Датчик
температуры
дымовых
газов
278
Сдвоенный
датчик
(
отопление
+
безопасность
)
A
Контакт
ON/OFF
раскходомера
72
95
42
114
136
191
16
186
188
82
T°
T°
278
139
138
A
32
16
44
N
L
230V
50Hz
GND
OUT
+5V
1 2 3 4 5 6
DBM04A
Характеристики
Остались вопросы?Не нашли свой ответ в руководстве или возникли другие проблемы? Задайте свой вопрос в форме ниже с подробным описанием вашей ситуации, чтобы другие люди и специалисты смогли дать на него ответ. Если вы знаете как решить проблему другого человека, пожалуйста, подскажите ему :)