Котел Ferroli Domitech F32 - инструкция пользователя по применению, эксплуатации и установке на русском языке. Мы надеемся, она поможет вам решить возникшие у вас вопросы при эксплуатации техники.
Если остались вопросы, задайте их в комментариях после инструкции.
"Загружаем инструкцию", означает, что нужно подождать пока файл загрузится и можно будет его читать онлайн. Некоторые инструкции очень большие и время их появления зависит от вашей скорости интернета.

DOMItech F 32
108
RU
cod. 3540L680 - 03/2008 (Rev. 01)
4.6 "
. 28 - "
A
$ "
: %*%) >!)=&;1%5$%<
"( "
$&$
;
+5$<$"% >%*%<?1=9 5( )!+=%
(X$<!#.
!
16
%5"$&-"!*
32
$*=9&-j$!55?[ 5(+!+ +$+"%<? !"!>&%5$-
38
(+`!)!<%*
42
("1$= "%<>%*("9*? #!)? # +$+"%<%
43
%&% )(#&%5$- #!)9`(
44
(!#?[ =&(>(5
47
%9&-"!* Modureg
72
!<5("5?[ "%*<!+"("
81
!)X$(;6$[/+&%)-6$[ ]&%="*!)
114
%&% )(#&%5$- #!)?
139
+"*![+"#! )$+"(5j$!55!! 9>*(#&%5$- +
"([<%*!< (OpenTherm)
278
#![5![ )("1$= (>*%)!`*(5$"%&'5?[ +
"%<>%*("9*? #!)? # +$+"%<% !"!>&%5$-)
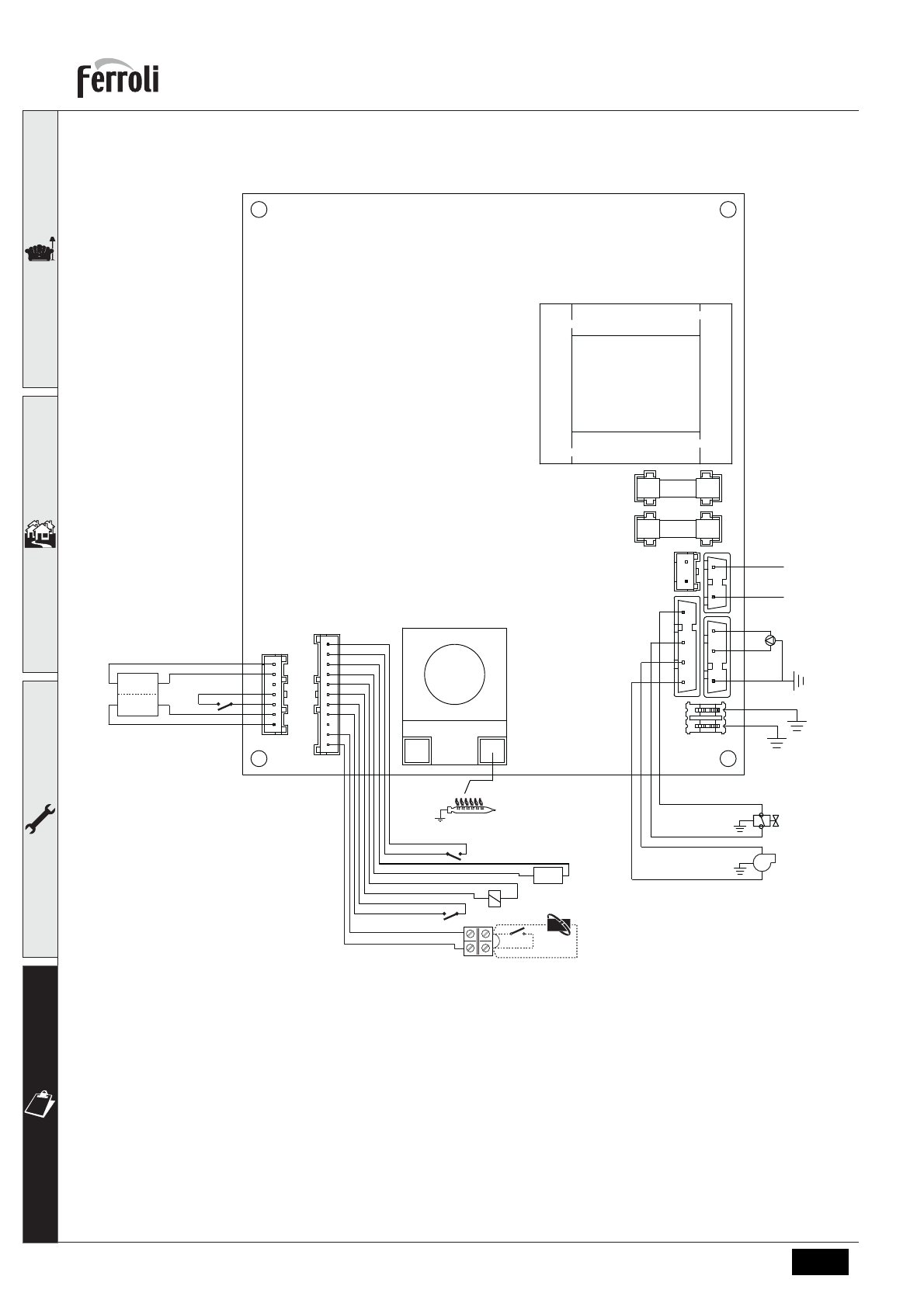
X4
1
2
3
4
5
6
7
43
278
11
10
9
8
7
6
5
4
3
2
1
X6
114
42
47
38
72
139
L
N
X1
X5
1
X3
3
2
X7
32
4
3
2
1
44
DBM02.1
81
230V
50 Hz
T .
T
T
16
Характеристики
Остались вопросы?Не нашли свой ответ в руководстве или возникли другие проблемы? Задайте свой вопрос в форме ниже с подробным описанием вашей ситуации, чтобы другие люди и специалисты смогли дать на него ответ. Если вы знаете как решить проблему другого человека, пожалуйста, подскажите ему :)