Котел Ferroli Domitech C24 - инструкция пользователя по применению, эксплуатации и установке на русском языке. Мы надеемся, она поможет вам решить возникшие у вас вопросы при эксплуатации техники.
Если остались вопросы, задайте их в комментариях после инструкции.
"Загружаем инструкцию", означает, что нужно подождать пока файл загрузится и можно будет его читать онлайн. Некоторые инструкции очень большие и время их появления зависит от вашей скорости интернета.

DOMItech C 24
85
RU
cod. 3540L170 - 10/2007 (Rev. 00)
4.6
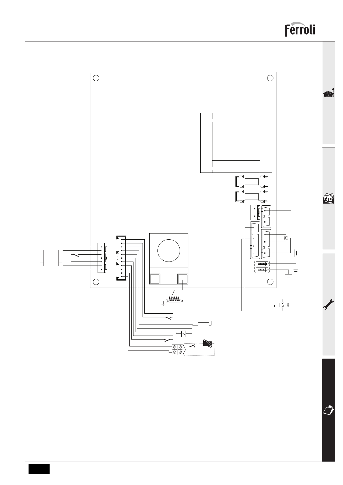
ɗɥɟɤɬɪɢɱɟɫɤɚɹ ɫɯɟɦɚ
ɪɢɫ
. 20 -
ɗɥɟɤɬɪɢɱɟɫɤɚɹ ɫɯɟɦɚ
A
ȼɧɢɦɚɧɢɟ
:
ɉɟɪɟɞ ɩɨɞɤɥɸɱɟɧɢɟɦ
ɤɨɦɧɚɬɧɨɝɨ ɬɟɪɦɨɫɬɚɬɚ
ɢɥɢ
ɭɫɬɪɨɣɫɬɜɚ Ⱦɍ
ɫɧɢɦɢɬɟ ɩɟɪɟɦɵɱɤɭ ɧɚ ɞɨɫɤɟ
ɡɚɠɢɦɨɜ
.
Ɉɛɨɡɧɚɱɟɧɢɹ
32
ɐɢɪɤɭɥɹɰɢɨɧɧɵɣ ɧɚɫɨɫ ɫɢɫɬɟɦɵ ɨɬɨɩɥɟɧɢɹ
38
Ɋɚɫɯɨɞɨɦɟɪ
42
Ⱦɚɬɱɢɤ ɬɟɦɩɟɪɚɬɭɪɵ ɜɨɞɵ ɜ ɫɢɫɬɟɦɟ Ƚȼɋ
44
Ƚɚɡɨɜɵɣ ɤɥɚɩɚɧ
47
Ɋɟɝɭɥɹɬɨɪ
Modureg
72
Ʉɨɦɧɚɬɧɵɣ ɬɟɪɦɨɫɬɚɬ
81
ɉɨɞɠɢɝɚɸɳɢɣ
/
ɫɥɟɞɹɳɢɣ ɷɥɟɤɬɪɨɞ
114
Ɋɟɥɟ ɞɚɜɥɟɧɢɹ ɜɨɞɵ
126
Ɍɟɪɦɨɫɬɚɬ ɬɟɦɩɟɪɚɬɭɪɵ ɞɵɦɨɜɵɯ ɝɚɡɨɜ
139
ɍɫɬɪɨɣɫɬɜɨ
ɞɢɫɬɚɧɰɢɨɧɧɨɝɨ
ɭɩɪɚɜɥɟɧɢɹ
ɫ
ɬɚɣɦɟɪɨɦ
(OpenTherm)
278
Ⱦɜɨɣɧɨɣ
ɞɚɬɱɢɤ
(
ɩɪɟɞɨɯɪɚɧɢɬɟɥɶɧɵɣ
+
ɬɟɦɩɟɪɚɬɭɪɵ ɜɨɞɵ ɜ ɫɢɫɬɟɦɟ ɨɬɨɩɥɟɧɢɹ
)
X4
1
2
3
4
5
6
7
126
278
11
10
9
8
7
6
5
4
3
2
1
X6
114
42
47
38
72
139
L
N
X1
X5
1
X3
3
2
X7
32
4
3
2
1
44
DBM02.1
81
230V
50 Hz
T .
T
T
Характеристики
Остались вопросы?Не нашли свой ответ в руководстве или возникли другие проблемы? Задайте свой вопрос в форме ниже с подробным описанием вашей ситуации, чтобы другие люди и специалисты смогли дать на него ответ. Если вы знаете как решить проблему другого человека, пожалуйста, подскажите ему :)