Котел Ferroli Domitech C 32 - инструкция пользователя по применению, эксплуатации и установке на русском языке. Мы надеемся, она поможет вам решить возникшие у вас вопросы при эксплуатации техники.
Если остались вопросы, задайте их в комментариях после инструкции.
"Загружаем инструкцию", означает, что нужно подождать пока файл загрузится и можно будет его читать онлайн. Некоторые инструкции очень большие и время их появления зависит от вашей скорости интернета.

DOMItech C 32
86
RU
cod. 3540L640 - 03/2008 (Rev. 00)
4.6 "
. 20 - "
A
$ "
: %*%) >!)=&;1%2$%< > "%*<!+"("( "%<>%*("9*? # >!<%5%2$$
9+"*![+"#(
"
"
)!+=% (X$<!#.
!
32
$*=9&-h$!22?[ 2(+!+ +$+"%<? !"!>&%2$-
38
(+`!)!<%*
42
("1$= "%<>%*("9*? #!)? # +$+"%<%
44
(!#?[ =&(>(2
47
%9&-"!* Modureg
72
!<2("2?[ "%*<!+"("
81
!)X$(;5$[/+&%)-5$[ ]&%="*!)
114
%&% )(#&%2$- #!)?
126
%*<!+"(" "%<>%*("9*? )?<!#?` (!#
139
9&'" )$+"(2h$!22!! 9>*(#&%2$- + "([<%*!<
(OpenTherm)
278
#![2![ )("1$= (>*%)!`*(2$"%&'2?[ +
"%<>%*("9*? #!)? # +$+"%<% !"!>&%2$-)
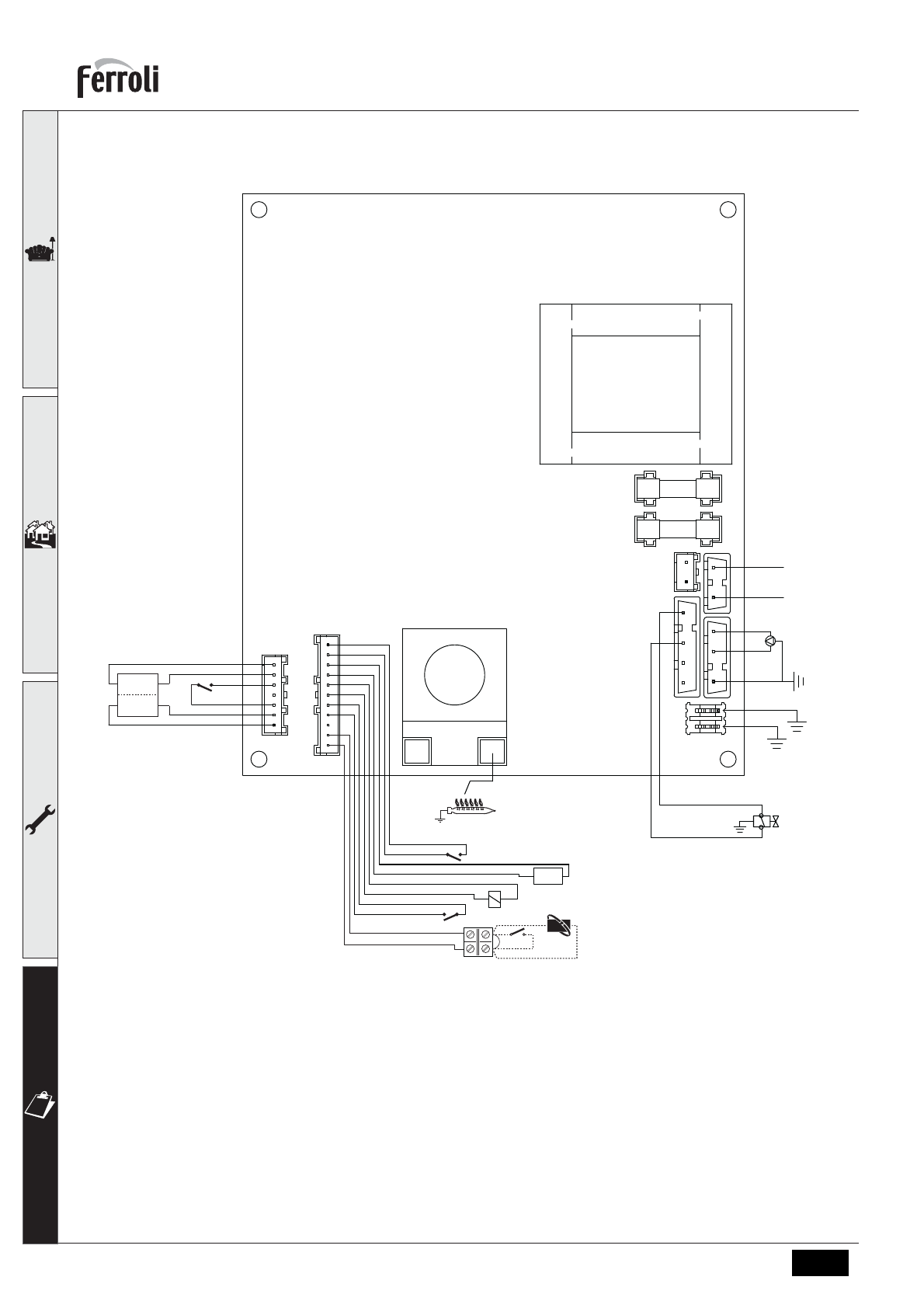
X4
1
2
3
4
5
6
7
126
278
11
10
9
8
7
6
5
4
3
2
1
X6
114
42
47
38
72
139
L
N
X1
X5
1
X3
3
2
X7
32
4
3
2
1
44
DBM02.1
81
230V
50 Hz
T .
T
T