Котел Ferroli Domitech C 24 - инструкция пользователя по применению, эксплуатации и установке на русском языке. Мы надеемся, она поможет вам решить возникшие у вас вопросы при эксплуатации техники.
Если остались вопросы, задайте их в комментариях после инструкции.
"Загружаем инструкцию", означает, что нужно подождать пока файл загрузится и можно будет его читать онлайн. Некоторые инструкции очень большие и время их появления зависит от вашей скорости интернета.

DOMItech C 24
80
RU
cod. 3540L170 - 10/2007 (Rev. 00)
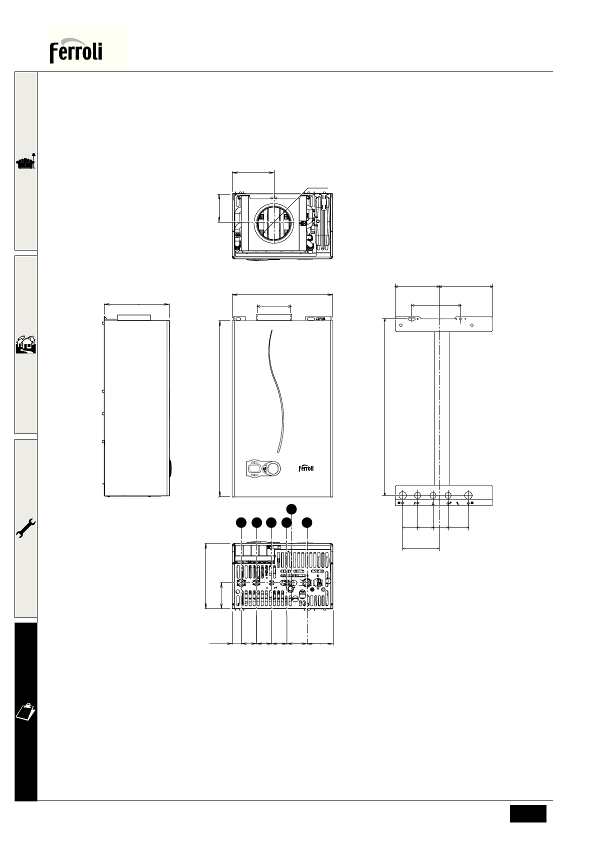
4.
ɏɚɪɚɤɬɟɪɢɫɬɢɤɢ ɢ ɬɟɯɧɢɱɟɫɤɢɟ ɞɚɧɧɵɟ
4.1
Ƚɚɛɚɪɢɬɧɵɟ ɪɚɡɦɟɪɵ ɢ ɩɪɢɫɨɟɞɢɧɟɧɢɹ
ɪɢɫ
. 17 -
Ƚɚɛɚɪɢɬɧɵɟ ɪɚɡɦɟɪɵ ɢ ɩɪɢɫɨɟɞɢɧɟɧɢɹ
1 =
ȼɵɯɨɞɧɨɣ ɲɬɭɰɟɪ ɫɢɫɬɟɦɵ ɨɬɨɩɥɟɧɢɹ
2 =
ȼɵɯɨɞɧɨɣ ɲɬɭɰɟɪ ɤɨɧɬɭɪɚ Ƚȼɋ
3 =
ɉɨɞɜɨɞ ɝɚɡɚ
4 =
ȼɯɨɞɧɨɣ ɲɬɭɰɟɪ ɤɨɧɬɭɪɚ Ƚȼɋ
5 =
Ɉɛɪɚɬɧɵɣ ɬɪɭɛɨɩɪɨɜɨɞ ɫɢɫɬɟɦɵ ɨɬɨɩɥɟɧɢɹ
6 =
ɋɥɢɜɧɨɟ ɨɬɜɟɪɫɬɢɟ ɩɪɟɞɨɯɪɚɧɢɬɟɥɶɧɨɝɨ ɤɥɚɩɚɧɚ
11
9
Øi 131
260
700
400
Øi 131
1
2
3
4
6
5
103
80,5
60
60
60
36,5
260
104
166
60
60
60
80,5
145
175
211
195
700