Котел Ferroli Domiproject F32 - инструкция пользователя по применению, эксплуатации и установке на русском языке. Мы надеемся, она поможет вам решить возникшие у вас вопросы при эксплуатации техники.
Если остались вопросы, задайте их в комментариях после инструкции.
"Загружаем инструкцию", означает, что нужно подождать пока файл загрузится и можно будет его читать онлайн. Некоторые инструкции очень большие и время их появления зависит от вашей скорости интернета.

DOMIproject F 32
93
RU
4.6
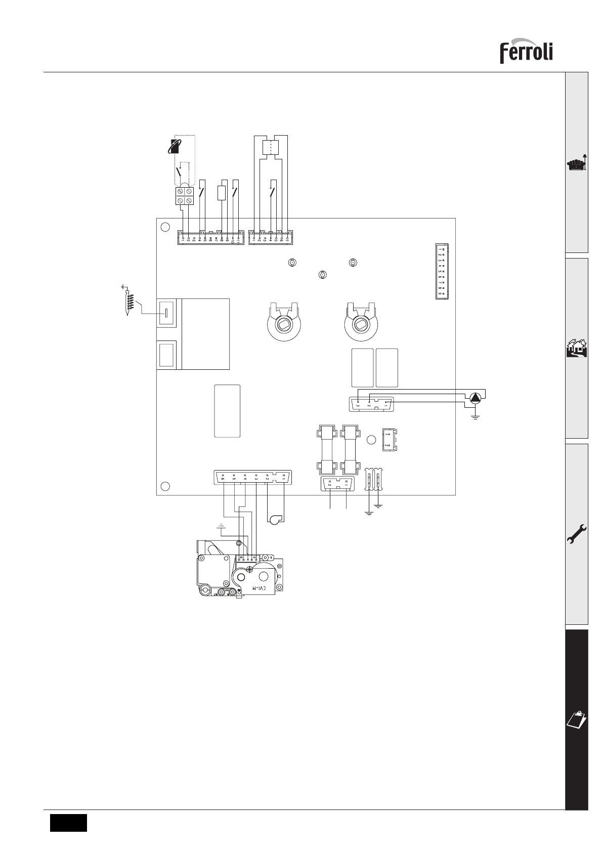
Электрическая
схема
рис
. 22 -
Электрическая
схема
A
Внимание
:
Перед
подключением
>
термостата
температуры
в
помещении
или
устройства
ДУ
снимите
перемычку
на
клеммнице
.
Обозначения
16
Вентилятор
32
Циркуляционный
насос
системы
отопления
38
Расходомер
42
Датчик
температуры
воды
ГВС
43
Реле
давления
воздуха
44
Газовый
клапан
72
Термостат
температуры
воздуха
в
помещении
81
Поджигающий
/
следящий
электрод
114
Реле
давления
воды
139
Устройство
дистанционного
управления
с
помощью
таймера
(Opentherm)
278
Двойной
датчик
(
предохранительный
+
температуры
воды
в
системе
отопления
)
32
N
L
230V / 50 Hz
16
44
°
T
114
43
278
X2
X1
X3
X4
X5
X6
X7
81
72
139
38
42
°
T
°
T
Содержание
- 2 Dante Ferroli; DOMIproject F 32
- 4 Указания; Предисловие; FERROLI; Панель
- 5 Включение
- 7 Монтаж
- 8 Газовые
- 9 Доступ; Диафрагмы
- 10 Подсоединение
- 14 Техническое; Регулировки; Задание
- 15 IN
- 16 Ввод
- 17 Анализ
- 18 Устранение; Диагностика; Таблица
- 19 Характеристики; Габаритные
- 20 Общий
- 21 Схема
- 23 Диаграммы
- 24 Электрическая; Обозначения