Котел Ferroli Domiproject C24 - инструкция пользователя по применению, эксплуатации и установке на русском языке. Мы надеемся, она поможет вам решить возникшие у вас вопросы при эксплуатации техники.
Если остались вопросы, задайте их в комментариях после инструкции.
"Загружаем инструкцию", означает, что нужно подождать пока файл загрузится и можно будет его читать онлайн. Некоторые инструкции очень большие и время их появления зависит от вашей скорости интернета.

DOMIproject C 24
73
RU
4.2
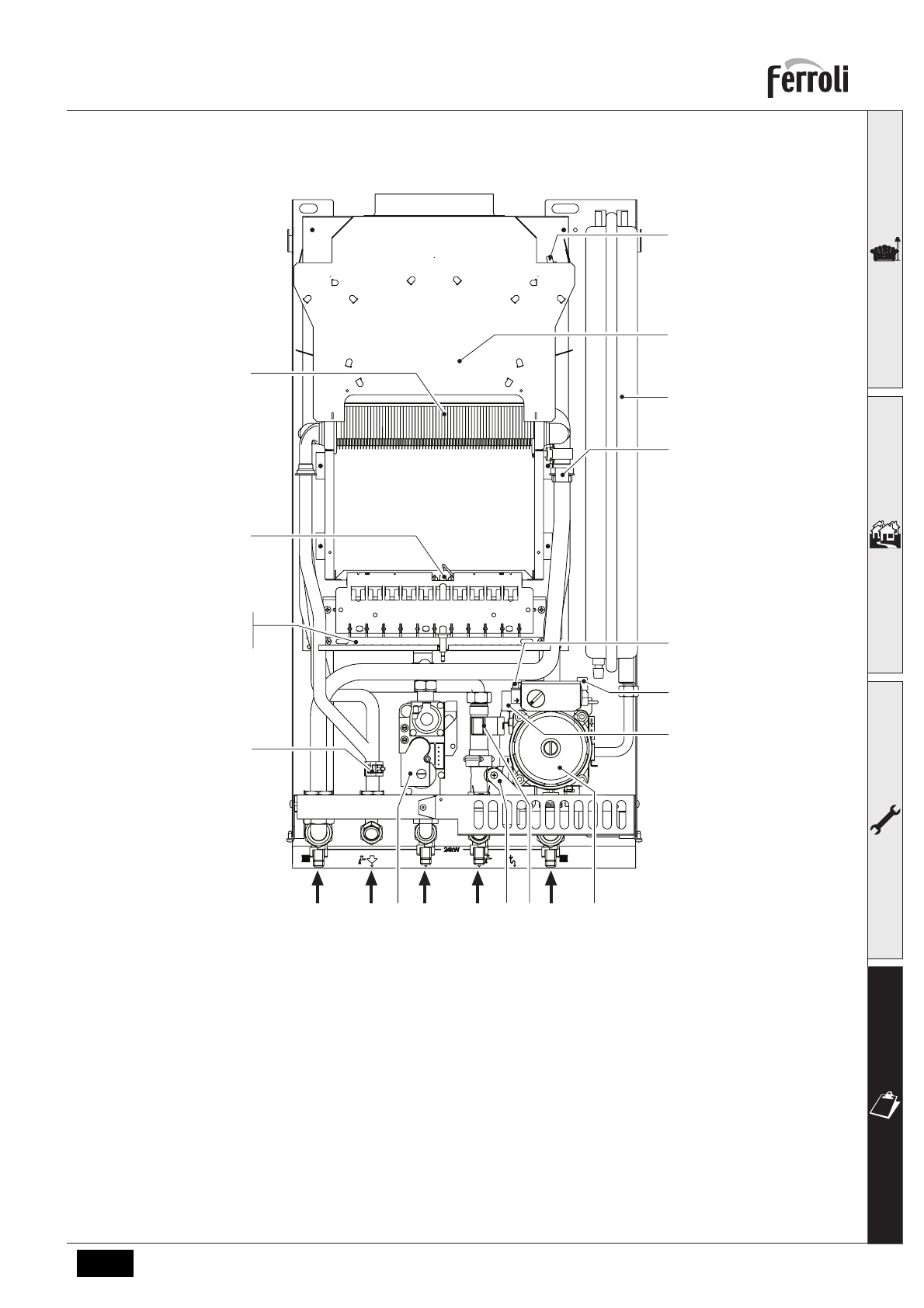
Общий
вид
и
основные
узлы
рис
. 13 -
Общий
вид
7
Подвод
газа
8
Выход
воды
ГВС
9
Подвод
воды
для
контура
ГВС
10
Подача
горячей
воды
в
систему
отопления
11
Возврат
из
системы
отопления
14
Предохранительный
клапан
20
Блок
горелок
21
Основная
форсунка
22
Горелка
27
Медный
теплообменник
для
систем
отопления
и
горячего
водоснабжения
32
Циркуляционный
насос
системы
отопления
36
Автоматический
клапан
для
спуска
воздуха
38
Расходомер
42
Датчик
температуры
воды
в
системе
ГВС
44
Газовый
клапан
56
Расширительный
бак
74
Кран
для
заливки
воды
в
систему
78
Прерыватель
тяги
81
Поджигающий
/
следящий
электрод
114
Реле
давления
воды
126
Термостат
температуры
продуктов
сгорания
278
Двойной
датчик
(
предохранительный
+
температуры
воды
в
системе
отопления
)
10
8
7
38
9
11
32
44
74
36
114
14
56
78
42
20
21
22
278
126
81
27