Котел Ferroli Domicompact B F24 - инструкция пользователя по применению, эксплуатации и установке на русском языке. Мы надеемся, она поможет вам решить возникшие у вас вопросы при эксплуатации техники.
Если остались вопросы, задайте их в комментариях после инструкции.
"Загружаем инструкцию", означает, что нужно подождать пока файл загрузится и можно будет его читать онлайн. Некоторые инструкции очень большие и время их появления зависит от вашей скорости интернета.

32
DOMIcompact F 24 B
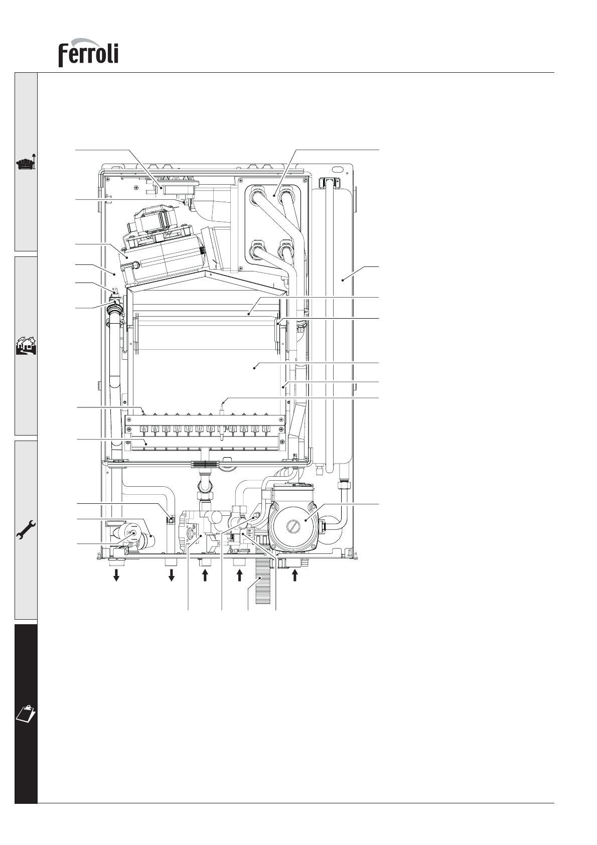
4.2 Общий вид и основные узлы
рис. 19
Обозначения
5 Герметичная камера сгорания
7 Подача газа
8 Разбор ГВС
9 Питающий трубопровод ГВС
10 Подающий трубопровод
системы отопления
11 Обратный трубопровод
системы отопления
14 Предохранительный клапан
16 Вентилятор
19 Камера сгорания
21 Газовая форсунка
22 Блок горелки
26 Термоизоляция камеры
сгорания
27 Медный теплообменник (
общий для отопления и ГВС)
32 Циркуляционный насос
системы отопления
34 Датчик протока воды
отопления
42 Датчик температуры ГВС
43 Датчик давления воздуха
44 Газовый клапан
49 Предохранительный
термостат
56 Расширительный бак
81 Электрод розжига
114 Датчик давления воды
126 Предохранительный
термостат дымовых газов
132 Дефлектор дымовых газов
136 Реле протока
154 Слив конденсата
193 Сифон для конденсата
277 Вторичный теплообменник
32
56
132
27
19
26
81
16
43
5
49
34
10
8
7
9
11
22
21
42
14
114
44
136
277
193
154
126
Содержание
- 5 Панель управления; Дисплей; Информация о текущем состоянии котла
- 6 защита от замерзания функционирует.; Котел выключен; Переключение в режимы Лето/Зима; Включение и выключение; Розжиг
- 7 Установка температуры отопления
- 8 Техническое обслуживание; Способ устранения
- 10 Шаблон для сверления отверстий в стене
- 11 Доливка воды
- 12 Водопроводные соединения котла
- 13 Водоподготовка; Cookson Electronics, Forsyth Road
- 14 Подключение к газопроводной системе; Подключение к электросети; Котел следует подключать к однофазной электросети 230 В, 50 Гц.
- 15 Доступ к клеммной коробке; Дымоходная система; Низкое напряжение
- 16 Диафрагма
- 17 Соединение с концентрическим дымоходом; Горизонтальная установка концентрического дымохода; Вывод в сторону; Вывод назад; Горизонтальная установка дымохода
- 18 Вертикальная установка дымохода
- 19 Подсоединение с помощью двух
- 20 Дымоходно&воздуховодные аксессуары; Фасонные элементы; Расположение выпускного оголовка
- 21 Противоположная стена
- 22 Минимально допустимые расстояния
- 23 Подключение слива конденсата; Если вы намерены подсоединить котел; к коллективному дымоходу или к
- 25 Уход и техническое обслуживание; Смена вида топлива
- 26 Регулировка давления на горелке
- 27 Регулировка максимальной мощности отопления; Ввод в эксплуатацию; Перед розжигом котла:
- 28 Проверка во время работы котла
- 29 Чистка котла и горелки; Анализ сгорания
- 30 Неисправность; Возможная; Устранение неисправностей; Диагностика
- 31 Технические данные и характеристики; присоединительные размеры
- 32 Общий вид и основные узлы
- 33 Схема гидравлических соединений
- 35 Потери напора циркуляционного насоса; = Производительность насоса
- 36 Ручное управление; когда котел включается и выключается.; Для установки времен включения и выключения:; Символ
- 37 Электрическая схема; Прежде, чем подключать обесточенный