Котел Ferroli Divatop HF 24 - инструкция пользователя по применению, эксплуатации и установке на русском языке. Мы надеемся, она поможет вам решить возникшие у вас вопросы при эксплуатации техники.
Если остались вопросы, задайте их в комментариях после инструкции.
"Загружаем инструкцию", означает, что нужно подождать пока файл загрузится и можно будет его читать онлайн. Некоторые инструкции очень большие и время их появления зависит от вашей скорости интернета.

DIVAtop HF 24
108
RU
cod. 3540L040 - 03/2008 (Rev. 00)
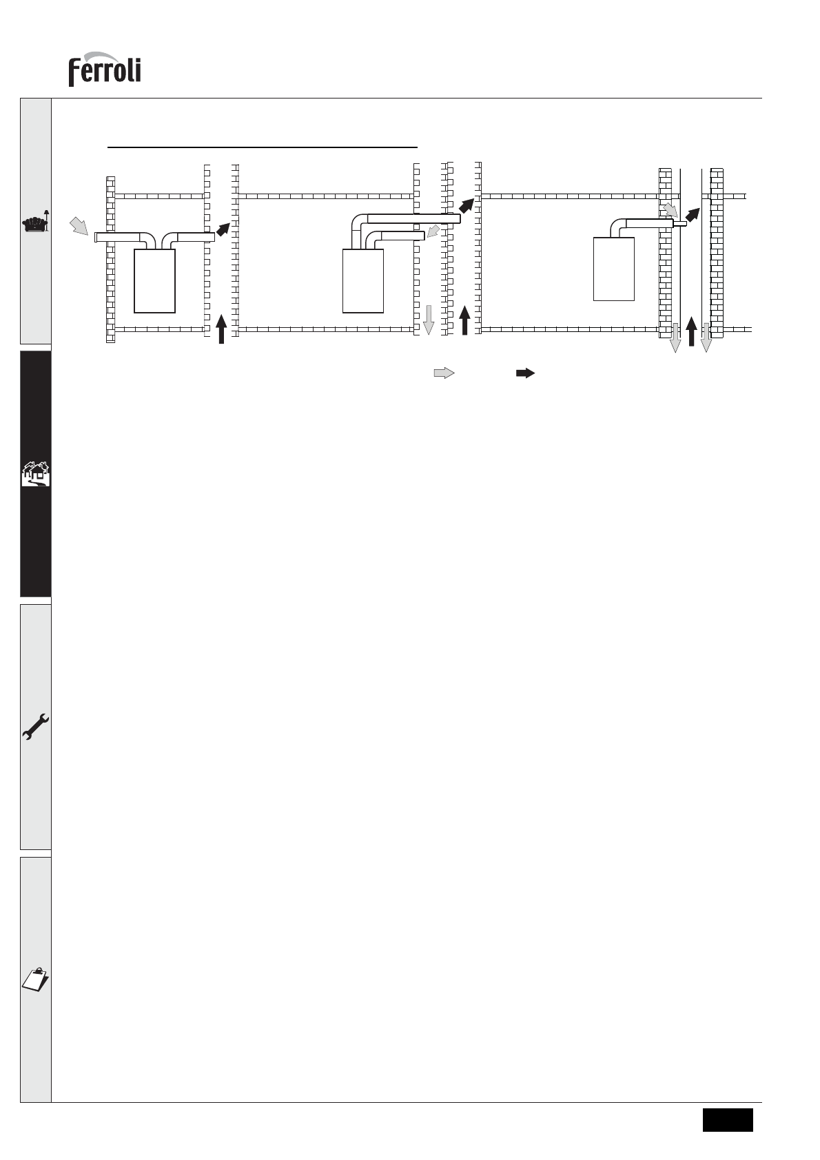
" ""
. 25 - " "" (
= $! /
= ' )
!]"!;6, %+&$ > `!"$"% =!)+!%)$2$"' <!"%&
DIVAtop HF 24
< <!&&%<"$#2!;6 )>;!`!)6 $&$ < !")%&'2!;6 )>;!`!)6 +
%+"%+"#%22![ "-![, 2%!?`!)$;>; 6+&!#$%; -#&-%"+-, 1"!?> ]"$ )>;!`!)> ?>&$ +=*!%<"$*!#(2> <#(&$m$j$*!#(22>;$
+=%j$(&$+"(;$ # +!!"#%"+"#$$ + )%[+"#695$;$ 2!*;(;$ $ =!)`!)$&$ )&- (*%("!# + (<*>"![ <(;%*![ +!*(2$-,
!?!*6)!#(22>` #%2"$&-"!*!;.
1(+"2!+"$, "(<$% )>;!`!)> )!&X2> $;%"' +&%)695$% `(*(<"%*$+"$<$:
•
;%"' *(;%*>, *(++1$"(22>% # +!!"#%"+"#$$ + )%[+"#695$;$ 2!*;(;$.
•
?%+=%1$#("' %*;%"$12!+"' $ !"+6"+"#$% 6"%1%< =*!)6<"!# +!*(2$-, ?>"' 6+"![1$#>;$ < #!)%[+"#$9 =*!)6<"!#
+!*(2$- $ "%;=%*("6*>, ?>"' 2%=*!2$j(%;>;$ )&- <!2)%2+("(.
•
;%"' <*6&!% $&$ <#()*("2!% +%1%2$%, ?>"' =*!&!X%22>; #%*"$<(&'2! $ 2% $;%"' 6!+"%[.
•
?%+=%1$#("' )!+"("!1269 )$+"(2j$9 !*-1$` =*!)6<"!# +!*(2$- !" !2%!=(+2>` ;("%*$(&!# $&$ $` $!&-j$9 !" 2$`.
•
>"' =!)+!%)$2%22>;$ 2% ?!&%%, 1%; < !)2!;6 (*%("6 2( <(X)!; ]"(X%.
•
>"' =!)+!%)$2%22>;$ < (*%("(; "!&'<! !)2!! "$=( (#+% !2$ )!&X2> ?>"' &$?! + =*$26)$"%&'2