Котел Ferroli Divatop F32 - инструкция пользователя по применению, эксплуатации и установке на русском языке. Мы надеемся, она поможет вам решить возникшие у вас вопросы при эксплуатации техники.
Если остались вопросы, задайте их в комментариях после инструкции.
"Загружаем инструкцию", означает, что нужно подождать пока файл загрузится и можно будет его читать онлайн. Некоторые инструкции очень большие и время их появления зависит от вашей скорости интернета.

DIVAtop F 32
112
RU
4.
ɏɚɪɚɤɬɟɪɢɫɬɢɤɢ ɢ ɬɟɯɧɢɱɟɫɤɢɟ ɞɚɧɧɵɟ
4.1
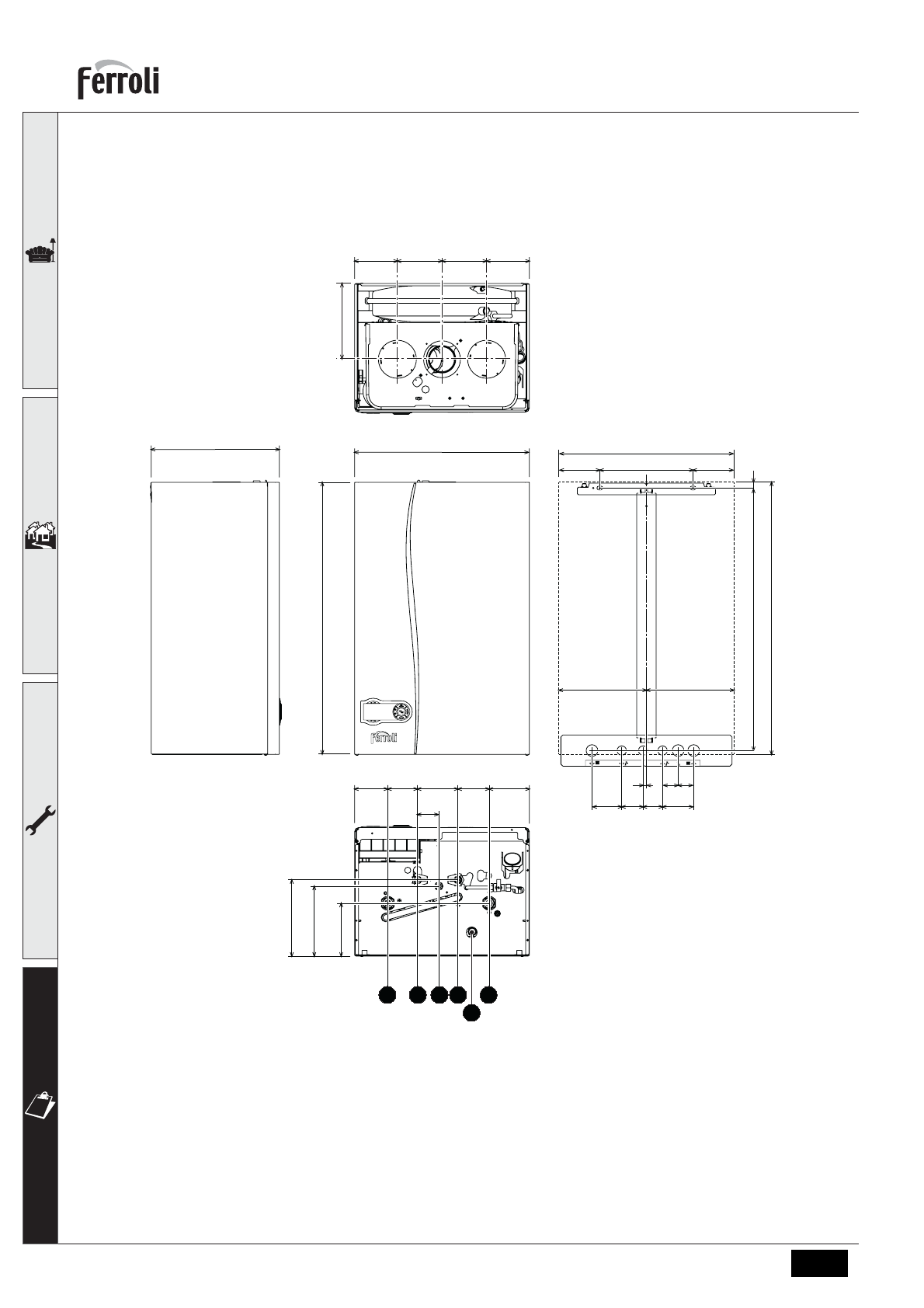
Ƚɚɛɚɪɢɬɧɵɟ ɪɚɡɦɟɪɵ ɢ ɩɨɞɤɥɸɱɟɧɢɹ
ɪɢɫ
. 30 -
Ƚɚɛɚɪɢɬɧɵɟ ɪɚɡɦɟɪɵ ɢ ɩɨɞɤɥɸɱɟɧɢɹ
1 =
ɉɨɞɚɱɚ ɜɨɞɵ ɜ ɫɢɫɬɟɦɭ ɨɬɨɩɥɟɧɢɹ
2 =
ȼɵɯɨɞ ɜɨɞɵ Ƚȼɋ
3 =
ɉɨɞɜɨɞ ɝɚɡɚ
4 =
ɉɨɞɜɨɞ ɜɨɞɵ ɞɥɹ ɤɨɧɬɭɪɚ Ƚȼɋ
5 =
ȼɨɡɜɪɚɬ ɢɡ ɫɢɫɬɟɦɵ ɨɬɨɩɥɟɧɢɹ
6 =
ɋɥɢɜ ɩɪɟɞɨɯɪɚɧɢɬɟɥɶɧɨɝɨ ɤɥɚɩɚɧɚ
450
196
450
240
=
=
700
675
=
=
110
115
115
110
330
85
76,5
104,5
80,5 103,5
55
196
180
136
15
195
1
2 3 4
5
6
76,5 55 50
80
40 40
8,5