Котел Ferroli Divatop C32 - инструкция пользователя по применению, эксплуатации и установке на русском языке. Мы надеемся, она поможет вам решить возникшие у вас вопросы при эксплуатации техники.
Если остались вопросы, задайте их в комментариях после инструкции.
"Загружаем инструкцию", означает, что нужно подождать пока файл загрузится и можно будет его читать онлайн. Некоторые инструкции очень большие и время их появления зависит от вашей скорости интернета.

DIVAtop C 32
92
RU
4.
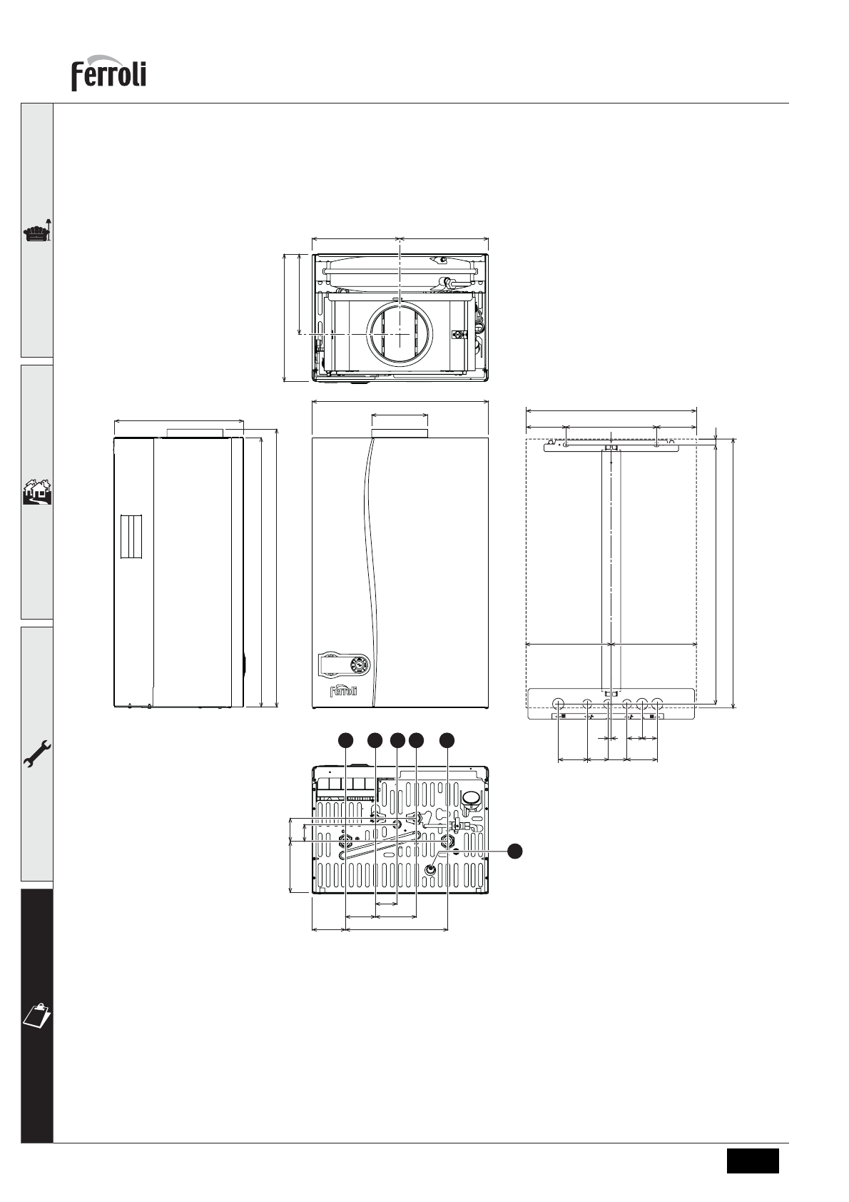
ɏɚɪɚɤɬɟɪɢɫɬɢɤɢ ɢ ɬɟɯɧɢɱɟɫɤɢɟ ɞɚɧɧɵɟ
4.1
Ƚɚɛɚɪɢɬɧɵɟ ɪɚɡɦɟɪɵ ɢ ɩɨɞɤɥɸɱɟɧɢɹ
ɪɢɫ
. 23 -
Ƚɚɛɚɪɢɬɧɵɟ ɪɚɡɦɟɪɵ ɢ ɩɨɞɤɥɸɱɟɧɢɹ
1 =
ɉɨɞɚɱɚ ɜɨɞɵ ɜ ɫɢɫɬɟɦɭ ɨɬɨɩɥɟɧɢɹ
2 =
ȼɵɯɨɞ ɜɨɞɵ Ƚȼɋ
3 =
ɉɨɞɜɨɞ ɝɚɡɚ
4 =
ɉɨɞɜɨɞ ɜɨɞɵ ɞɥɹ ɤɨɧɬɭɪɚ Ƚȼɋ
5 =
ȼɨɡɜɪɚɬ ɢɡ ɫɢɫɬɟɦɵ ɨɬɨɩɥɟɧɢɹ
6 =
ɋɥɢɜ ɩɪɟɞɨɯɪɚɧɢɬɟɥɶɧɨɝɨ ɤɥɚɩɚɧɚ
223,5
226,5
331,2
208
55
450
240
=
=
700
675
=
=
76,5
55 50
80
40 40
8,5
15
1
2 3 4
5
450
Øi 141
330
701
723
85
261,5
104,5
76,5
135
60
44
6