Котел Ferroli Divatop 60 F24 - инструкция пользователя по применению, эксплуатации и установке на русском языке. Мы надеемся, она поможет вам решить возникшие у вас вопросы при эксплуатации техники.
Если остались вопросы, задайте их в комментариях после инструкции.
"Загружаем инструкцию", означает, что нужно подождать пока файл загрузится и можно будет его читать онлайн. Некоторые инструкции очень большие и время их появления зависит от вашей скорости интернета.

%* 7"UPQ '
DPE. 3FW
oÅ»ÁÂÕμĿ¼ÁÁżÁÉ¿¹ÄÒûÒÃÅÌÅ»·Ã
ÉÁÊoÉÁžÉÔÈǽÃÄ×оÆÁ¸Ã½ÔÅÇÎǽ¹Å »ÇÀ½ÌνÔÅǻԾ¼¹ÀÔ
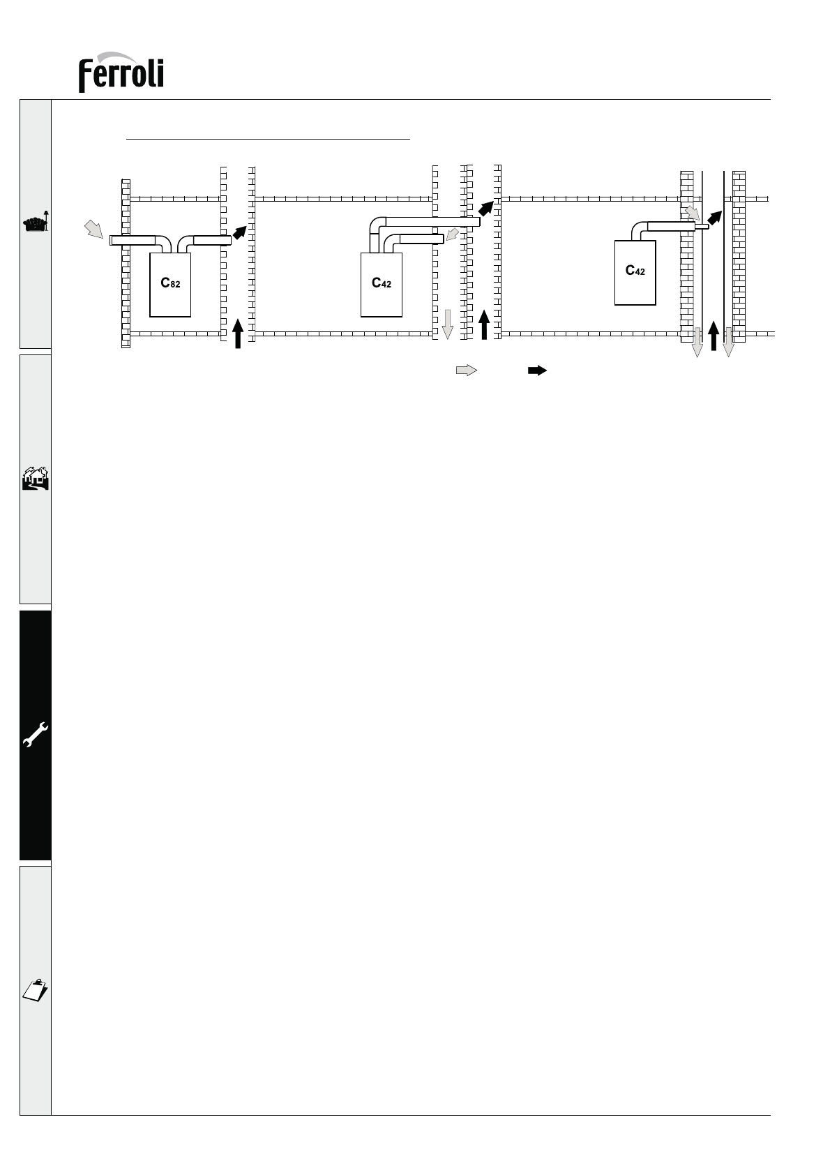
eÊÄÁÈɾ½ÈÇĹ¼¹¾ËʸÈǽÃÄ×йËÕÃÇ˾Ä
%*7"UPQ'
ÃÃÇÄľÃËÁ»ÆÇÅ̽ÔÅÇÎǽÌÁÄÁÃǽÁÆÇÐÆÇ½Ô
ÅÇ»ÇÂËÉ̺¾Ê¾Ê˾ÊË»¾ÆÆÇÂ˸¼Ç½ÔÅÇÎǽÁÄÁ½ÔÅÇ»¹¸ËÉ̺¹½ÇÄ¿ÆÔÈÉǾÃËÁÉÇ»¹ËÕʸû¹ÄÁÍÁÏÁÉÇ
»¹ÆÆÔÅÁÊȾÏÁ¹ÄÁÊ˹ÅÁÊÊǺÄ×½¾ÆÁ¾Å½¾ÂÊË»Ì×ÒÁÎÆÇÉŽĸÃÇËÄǻʼ¾ÉžËÁÐÆÇÂùžÉÇÂʼÇɹÆÁ¸
ÌÃÇÅÈľÃËÇ»¹ÆÆÔλ¾ÆËÁĸËÇÉÇÅ
bйÊËÆÇÊËÁÆÇÉÅÇÂÈɾ½ÌÊÅÇËɾÆÇÐËǽÔÅÇÎǽÔÁ½ÔÅǻԾËÉ̺ԽÇÄ¿ÆÔǺĹ½¹ËÕÊľ½Ì×ÒÁÅÁι
ɹÃ˾ÉÁÊËÁùÅÁ
hÎɹÀžÉÔ½ÇÄ¿ÆÔºÔËÕɹÊÊÐÁ˹ÆÔÈÇžËǽÁþÈÉÁ»¾½¾ÆÆÇ»½¾ÂÊË»Ì×ÒÁÎÆÇÉŹÎ
nÆÁ ½ÇÄ¿ÆÔ ºÔËÕ Æ¾ÈÉÇÆÁϹ¾ÅÔÅÁ ½Ä¸ ÈÉǽÌÃËÇ» ʼÇɹÆÁ¸ ÌÊËÇÂÐÁ»ÔÅÁ à »ÇÀ½¾ÂÊË»Á× ½ÔÅÇ»ÔÎ
¼¹ÀÇ»Á»ÔÊÇÃÁÎ˾ÅȾɹËÌÉÆ¾ÈÉÇÆÁϹ¾ÅÔÅÁ½Ä¸ÃÇÆ½¾ÆÊ¹Ë¹
dÔÅÇÎǽÁÄÁ½ÔÅÇ»¹¸ËÉ̺¹½ÇÄ¿ÆÔɹÊÈÇĹ¼¹ËÕʸÈÇ»¾ÉËÁùÄÁƾÁžËÕÌÀÃÁΞÊËʾоÆÁ¾ËÉ̺
½ÇÄ¿ÆÇºÔËÕÃÉ̼ÄÔÅÁÄÁû¹½É¹ËÆÔÅ
j¹Æ¹ÄÔ¼ÇɸÐÁνÔÅÇ»Ôμ¹ÀÇ»½ÇÄ¿ÆÔÈÉÇÎǽÁËÕÆ¹º¾ÀÇÈ¹ÊÆÇÅɹÊÊËǸÆÁÁÇ˼ÇÉ×ÐÁÎŹ˾ÉÁ¹ÄÇ»
ÁÄÁºÔËÕÁÀÇÄÁÉÇ»¹ÆÔ
nÆÁ½ÇÄ¿ÆÔºÔËÕÈǽÃÄ×оÆÔËÇÄÕÃÇÃǽÆÇÅÌÃÇËÄÌÆ¹Ö˹¿
nÆÁ ½ÇÄ¿ÆÔ ºÔËÕ ÈǽÃÄ×оÆÔ à ÃÇËÄǹ¼É¾¼¹Ë¹Å ǽÆÇ¼Ç ËÁȹ ÁÄÁ »Ê¾ ÃÇËÄÔ Ê ÈÉÁÆÌ½Á˾ÄÕÆÇ ˸¼ÇÂ
ÁÄÁ»Ê¾ÃÇËÄÔʾÊ˾ÊË»¾ÆÆÇÂ˸¼ÇÂ
bʼÁÊËɹÄÕÆÔÎùƹĹÎÀ¹Èɾҹ¾ËʸÁÊÈÇÄÕÀÇ»¹ÆÁ¾Å¾Î¹ÆÁоÊÃÁλʹÊÔ»¹×ÒÁÎÌÊËÉÇÂÊË»
oÉÁ ɹºÇ˾ » Ê˹ºÁÄÕÆÔÎ ÌÊÄÇ»Á¸Î ½ÔÅÇÎǽ ÁÄÁ ½ÔÅÇ»¹¸ ËÉ̺¹ ½ÇÄ¿ÆÔ ƹÎǽÁËʸ » ɹÀɾ¿¾ÆÁÁ ÈÇ
»Ê¾ÂʻǾ½ÄÁƾ
bÆÁÀ̽ÇĿƹÌÊËɹÁ»¹ËÕʸùžɹ½Ä¸ÊºÇɹ˻¾É½Ôλ¾Ò¾ÊË»ÁÄÁ»ÇÀÅÇ¿ÆÇ¼ÇÃÇÆ½¾ÆÊ¹Ë¹ÃÇËÇɹ¸
ǺÇÉ̽̾Ëʸž˹ÄÄÁоÊÃÁÅÄ×ÐÃÇÅʼ¾ÉžËÁÐÆÔÅÈÉÁľ¼¹ÆÁ¾Å

