Котел Ferroli Atlas D 87 - инструкция пользователя по применению, эксплуатации и установке на русском языке. Мы надеемся, она поможет вам решить возникшие у вас вопросы при эксплуатации техники.
Если остались вопросы, задайте их в комментариях после инструкции.
"Загружаем инструкцию", означает, что нужно подождать пока файл загрузится и можно будет его читать онлайн. Некоторые инструкции очень большие и время их появления зависит от вашей скорости интернета.

ATLAS D
103
RU
cod. 3540I250 - 06/2007 (Rev. 00)
4.4
Э
. 18 -
Э
32
ɐɢɪɤɭɥɹɰɢɨɧɧɵɣ
ɧɚɫɨɫ
(
ɨɩɰɢɹ
)
72
Ɍɟɪɦɨɫɬɚɬ
ɤɨɦɧɚɬɧɨɣ
ɬɟɦɩɟɪɚɬɭɪɵ
(
ɨɩɰɢɹ
)
ɇɚɩɪɹɠɟɧɢɟ
ɩɢɬɚɧɢɹ
ȼ
/
Ƚɰ
230/50
230/50
230/50
230/50
230/50
ɉɨɬɪɟɛɥɹɟɦɚɹ
ɷɥɟɤɬɪɢɱɟɫɤɚɹ
ɦɨɳɧɨɫɬɶ
ȼɬ
5
5
5
5
5
ȼɟɫ
ɩɨɪɨɠɧɟɝɨ
ɤɨɬɥɚ
ɤɝ
127
166
205
244
283
Ⱦɥɢɧɚ
ɤɚɦɟɪɵ
ɫɝɨɪɚɧɢɹ
ɦɦ
350
450
550
650
750
Ⱦɢɚɦɟɬɪ
ɤɚɦɟɪɵ
ɫɝɨɪɚɧɢɹ
ɦɦ
300
300
300
300
300
ɋɨɩɪɨɬɢɜɥɟɧɢɟ
ɞɵɦɨɨɬɜɨɞɹɳɟɝɨ
ɬɪɚɤɬɚ
ɦɛɚɪ
0.59
0.50
0.45
0.55
1
D 30
D 42
D 55
D 70
D 87
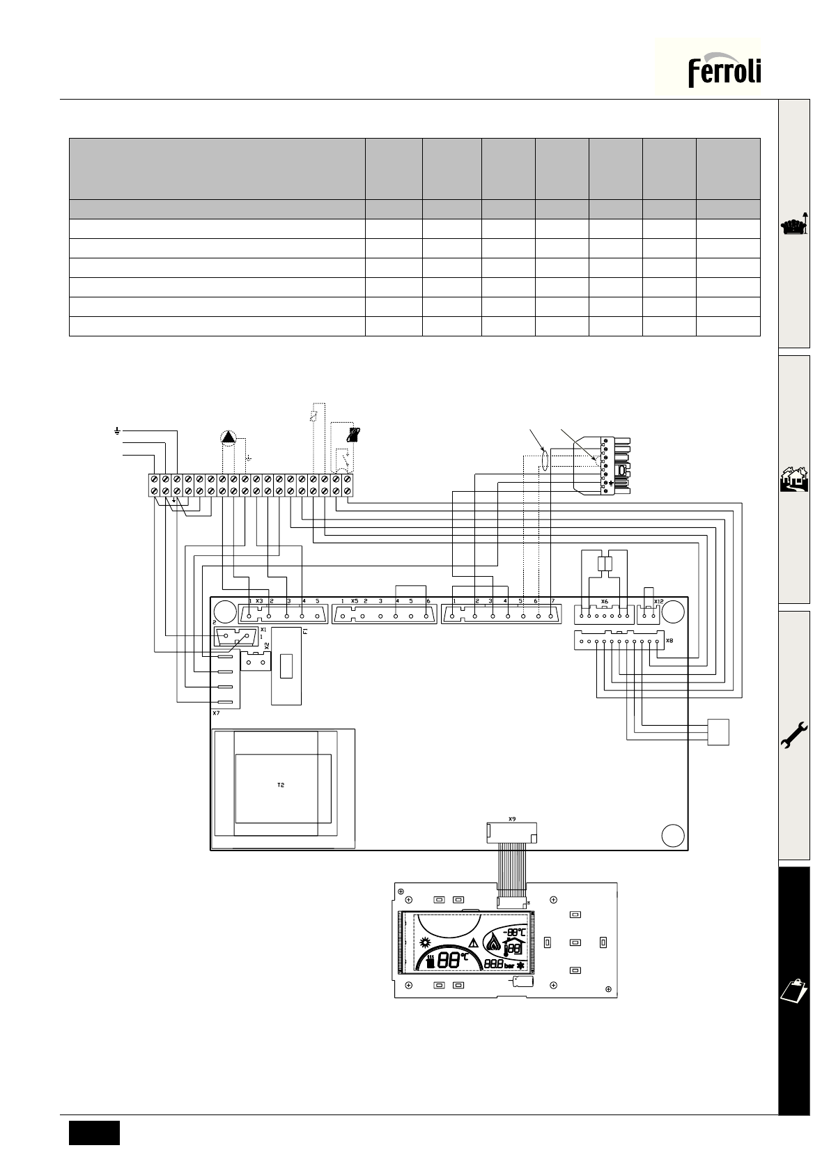
DBM06
T° T°
278
OUT
+5V
GND
246
L
N
4
5
6
7
8
9
10
11
12
13
14
15
16
17
18
DSP05
L
N
230V
50Hz
L1
N
T1
T2
S3
B4
211
A
B
32
138
139
72