Котел Ferroli Atlas 78 - инструкция пользователя по применению, эксплуатации и установке на русском языке. Мы надеемся, она поможет вам решить возникшие у вас вопросы при эксплуатации техники.
Если остались вопросы, задайте их в комментариях после инструкции.
"Загружаем инструкцию", означает, что нужно подождать пока файл загрузится и можно будет его читать онлайн. Некоторые инструкции очень большие и время их появления зависит от вашей скорости интернета.

ATLAS
36
RU
cod. 3540S123 - 07/2010 (Rev. 00)
5.4
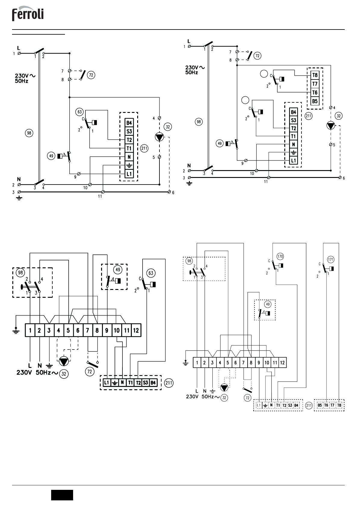
ɗɥɟɤɬɪɢɱɟɫɤɚɹ ɫɯɟɦɚ
ɉɪɢɧɰɢɩɢɚɥɶɧɚɹ ɷɥɟɤɬɪɢɱɟɫɤɚɹ ɫɯɟɦɚ
ATLAS 32-78
ɪɢɫ
. 7 -
ɉɪɢɧɰɢɩɢɚɥɶɧɚɹ ɷɥɟɤɬɪɢɱɟɫɤɚɹ ɫɯɟɦɚ
ATLAS 32-78
Ʌɟɝɟɧɞɚ ɪɢɫ
. 7
ɢ ɪɢɫ
. 8
32
ɐɢɪɤɭɥɹɰɢɨɧɧɵɣ ɧɚɫɨɫ
(
ɢɫɤɥɸɱɟɧ ɢɡ ɩɨɫɬɚɜɤɢ
)
49
ɉɪɟɞɨɯɪɚɧɢɬɟɥɶɧɵɣ ɬɟɪɦɨɫɬɚɬ
72
Ʉɨɦɧɚɬɧɵɣ ɬɟɪɦɨɫɬɚɬ
(
ɢɫɤɥɸɱɟɧ ɢɡ ɩɨɫɬɚɜɤɢ
)
63
Ɍɟɪɦɨɫɬɚɬ ɪɟɝɭɥɢɪɨɜɤɢ ɤɨɬɥɚ
98
ȼɵɤɥɸɱɚɬɟɥɶ
211
Ɋɚɡɴɟɦ ɝɨɪɟɥɤɢ
(
ɢɫɤɥɸɱɟɧ ɢɡ ɩɨɫɬɚɜɤɢ
)
ɋɯɟɦɚ ɷɥɟɤɬɪɢɱɟɫɤɢɯ ɫɨɟɞɢɧɟɧɢɣ
ATLAS 32-78
ɪɢɫ
. 8 -
ɋɯɟɦɚ ɷɥɟɤɬɪɢɱɟɫɤɢɯ ɫɨɟɞɢɧɟɧɢɣ
ATLAS 32-78
ɉɪɢɧɰɢɩɢɚɥɶɧɚɹ ɷɥɟɤɬɪɢɱɟɫɤɚɹ ɫɯɟɦɚ
ATLAS 95
ɪɢɫ
. 9 -
ɉɪɢɧɰɢɩɢɚɥɶɧɚɹ ɷɥɟɤɬɪɢɱɟɫɤɚɹ ɫɯɟɦɚ
ATLAS 95
Ʌɟɝɟɧɞɚ ɪɢɫ
. 9
ɢ ɪɢɫ
. 10
32
ɐɢɪɤɭɥɹɰɢɨɧɧɵɣ ɧɚɫɨɫ
(
ɢɫɤɥɸɱɟɧ ɢɡ ɩɨɫɬɚɜɤɢ
)
49
ɉɪɟɞɨɯɪɚɧɢɬɟɥɶɧɵɣ ɬɟɪɦɨɫɬɚɬ
72
Ʉɨɦɧɚɬɧɵɣ ɬɟɪɦɨɫɬɚɬ
(
ɢɫɤɥɸɱɟɧ ɢɡ ɩɨɫɬɚɜɤɢ
)
98
ȼɵɤɥɸɱɚɬɟɥɶ
170
Ɍɟɪɦɨɫɬɚɬ ɪɟɝɭɥɢɪɨɜɤɢ ɬɟɦɩɟɪɚɬɭɪɵ
1-
ɨɣ ɫɬɭɩɟɧɢ ɤɨɬɥɚ
171
Ɍɟɪɦɨɫɬɚɬ ɪɟɝɭɥɢɪɨɜɤɢ ɬɟɦɩɟɪɚɬɭɪɵ
2-
ɨɣ ɫɬɭɩɟɧɢ ɤɨɬɥɚ
211
Ɋɚɡɴɟɦ ɝɨɪɟɥɤɢ
(
ɢɫɤɥɸɱɟɧ ɢɡ ɩɨɫɬɚɜɤɢ
)
ɋɯɟɦɚ ɷɥɟɤɬɪɢɱɟɫɤɢɯ ɫɨɟɞɢɧɟɧɢɣ
ATLAS 95
ɪɢɫ
. 10 -
ɋɯɟɦɚ ɷɥɟɤɬɪɢɱɟɫɤɢɯ ɫɨɟɞɢɧɟɧɢɣ
ATLAS 95
1
c
1
c
170
171
1
c
1
c