Котел Эван Warmos-IV-5 - инструкция пользователя по применению, эксплуатации и установке на русском языке. Мы надеемся, она поможет вам решить возникшие у вас вопросы при эксплуатации техники.
Если остались вопросы, задайте их в комментариях после инструкции.
"Загружаем инструкцию", означает, что нужно подождать пока файл загрузится и можно будет его читать онлайн. Некоторые инструкции очень большие и время их появления зависит от вашей скорости интернета.

- 6 -
- без автоматического выключателя;
- во взрыво- и пожароопасных зонах;
- при отсутствии в расширительной емкости теплоносителя!
5.8
Запрещается эксплуатация прибора в помещениях с повышенной
опасностью, характеризующихся наличием в них:
- особой сырости (наличие конденсата на потолоке, стенах);
- токопроводящей пыли;
- химически активной среды (помещения, в которых постоянно или
длительно содержатся или образуются отложения, действующие разрушающе
на изоляцию и токоведущие части электрооборудования).
5.9
Внимание!
При эксплуатации прибора запрещается полностью
или частично перекрывать шаровые вентили на входе и выходе из котла
(см. рисунок
4
).
5.10 Не допускайте скапливания пыли или грязи на приборе и
попадание на него воды.
На время чистки прибора его необходимо отключить от
электрической
сети автоматическим выключателем, воду (грязь) собрать мягкой
салфеткой, увлажненной поверхности дать высохнуть.
5.11 В процессе эксплуатации прибора необходимо следить за
наличием теплоносителя в расширительной емкости отопительной системы
(при открытой системе отопления)
.
5.12
Внимание! При наличии признаков ухудшения качества зануления
(пощипывание при касании к металлическим частям прибора, трубам
системы отопления), появлении искр, открытого пламени и дыма из
прибора, если прибор сильно гудит (дребезжит), других неисправностей или
отклонений от нормальной работы, необходимо:
а
)
н ем ед л е н н о о т к л юч и т ь п р и бо р о т
сет и
эл е кт р и ч ес ко й
автоматическим выключателем;
б
)
е
с л и п р и э т ом с у щ е с т в у е т в о з м о ж н о с т ь з а м е р з а н и я
теплоносителя в системе отопления, то его необходимо слить
.
в)
вызвать специалиста из сервисного центра
,
или организации
зарегистрированной в соответствующих органах, имеющей право на
производство данных работ и договор с изготовителем.
6
Подготовка
к
работе
6
.1
Монтаж
и
подключение
6.1.1 Подключение к сети осуществляется в установленном порядке.
6.1.2 Монтаж и подключение прибора осуществляется исключительно
организацией (организациями), имеющей
право
на производство данных видов
работ, зарегистрированн
ой
в
соответствующих
органах.
6.1.3 Организации (организация), выполняющие монтаж и подключение,
делают соответствующую запись и отметку в разделе “Отметка о проведенных
работах”.
6.1.4 Пуско-наладочные работы предусматривают:
- подключение электроотопительного котла к системе отопления;
- подключение электроотопительного котла к электрической сети;
- 15-
Прибор не включает-ся.
П р и р а б о т е п р и б о р а
с и л ь н о г у д и т ( д р е -
б е з ж и т ) м а г н и т н а я
с и с т е м а п у с к а т е л я
(для
W-7,5-30).
Н е р а б о т а е т ц и р -
к у л я ц и о н н ы й н а с о с
п о д к л ю ч е н н ы й к з а -
жимам прибора.
Светодиоды
индикации
н а г р е в а
д л и т е л ь н о е
время не выключа
ю
тся,
при этом слышен звук
с р а б а т ы в а н и я м а г -
н и т н о г о к о н т а к т о р а
или реле.
На цифровом индика-
т о р е в ы с в еч и в а е т с я
ошибка
На цифровом индика-
т о р е в ы с в еч и в а е т с я
ошибка
На цифровом индика-
т о р е в ы с в еч и в а е т с я
предупреждение
На цифровом индика-
т о р е в ы с в еч и в а е т с я
предупреждение
Н е п р а в и л ь н о е п о д к л юч е н и е
п р и б о р а к э л е к т р и ч е с к о й
сети.
Н а р у ш е н и е ц е л о с т н о с т и
п о д в о д я щ е й э л е к т -
ропроводки.
О т с у т с т в и е э л е к т р и -
ческого контакта в местах
с о е д и н е н и я п о д в о д я щ е й
э л е к т р о - п р о в о д к и с
зажимами прибора.
Напряжение в электрической
с е т и н и ж е у к а з а н н о г о в
таблице 1.
Сгорел предохранитель цепи
подключения насоса
П е р е х о д и з д е л и я в а в а -
р и й н ы й р е ж и м р а б о т ы ,
в с л е д с т в и е з а л и п а н и я
контактора (реле).
О б р ы в
д а т ч и к а
т е м п е р а т у р ы
теплоносителя
К о р о т к о е з а м ы к а н и е
д а т ч и к а т е м п е р а т у р ы
теплоносителя
Температура теплоносителя
выше
85ºС, но ниже 90ºС
Температура теплоносителя
выше 90ºС
П р о в е р и т ь п р а в и л ь н о с т ь
п о д к л юч е н и я п р и б о р а в с о о т -
ветствии с рисунками 5,6
,7,8,9
.
Обратить особое внимание на
п р а в и л ь н о с т ь п о д к л ю ч е н и я
з а щ и т н о г о п р о во д н и к а ( Р Е ) и
нулевого рабочего проводника (N).
П р о в е р и т ь ц ел о с т н о с т ь п о д -
водящей электропроводки.
П р о в е р и т ь к а ч е с т в о п р и с о -
е д и н е н и я п о д в о д я щ е й э л е к -
тропроводки к зажимам прибора.
При н еобходимости зачистить
места контакта.
Обратится в энергоснабжающую
о р г а н и з а ц и ю , к
эл е к т р и ч е с к и м
с е т я м к о т о р о й п р о и з в е д е н о
подключение.
Заменить предохранитель.
Н е м е д л е н н о о б р а т и т ь с я в
б л и ж а й ш и й с е р в и с - ц е н т р д л я
у с т р а н е н и я в о з н и к ш е й н е -
и с п р а в н о с т и . П о возм ож н о с т и ,
отключить прибор.
Н е м е д л е н н о о б р а т и т ь с я в
б л и ж а й ш и й с е р в и с - ц е н т р д л я
у с т р а н е н и я в о з н и к ш е й н е -
и с п р а в н о с т и . П о возм ож н о с т и ,
отключить прибор.
Н е м е д л е н н о о б р а т и т ь с я в
б л и ж а й ш и й с е р в и с - ц е н т р д л я
у с т р а н е н и я в о з н и к ш е й н е -
и с п р а в н о с т и . П о возм ож н о с т и ,
отключить прибор.
Отключить прибор на некоторое
в р е м я , е с л и п р е д у п р е ж д е н и е
п о в т о р я е т с я - о б р а т и т ь с я в
с е р в и с - ц е н т р д л я у с т р а н е н и я
неисправности.
Проверить наличие теплоноси-
теля в котле. Если предупрежде-
ние повторяется - обратиться в
с е р в и с - ц е н т р д л я у с т р а н е н и я
возникшей неисправности.
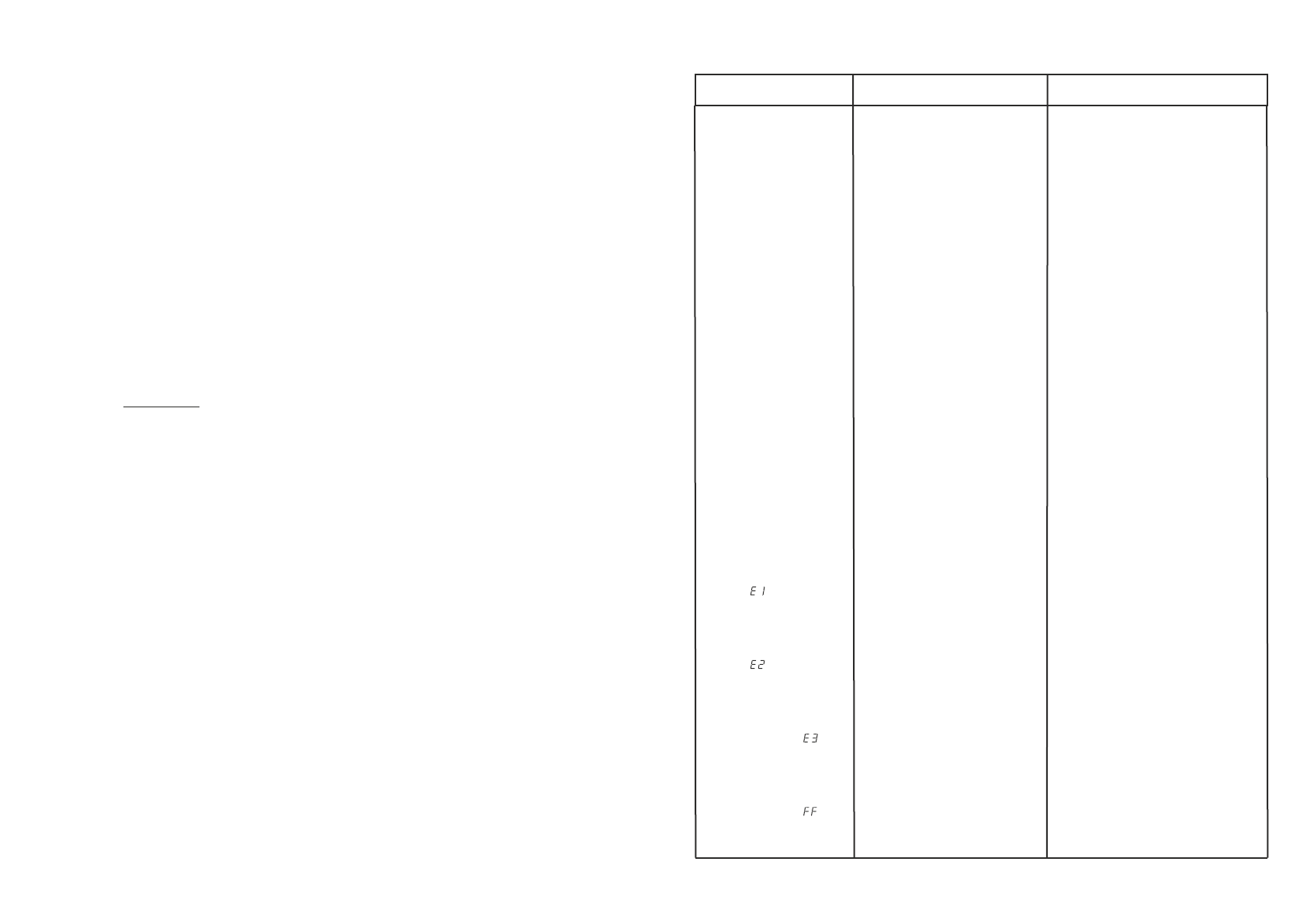
1
0 Возможные неисправности
,
методы их устранения
, коды
ошибок и предупреждений
Возможная
неисправность
Вероятная причина
Метод устранения
Содержание
- 2 Основные технические данные прибора приведены в таблице 1.; Таблица 1; В комплект поставки входят:; Наименование; IV
- 4 защитного проводника; РЕ; Для уплотнения ввода питающего кабеля прибор имеет; Рисунок 3
- 5 , указанное в таблице 2; Название; Таблица 2; 1 Гарантии изготовителя; прибора
- 6 электрической; эл е кт р и ч ес ко й; право; ошибок и предупреждений; Возможная
- 7 Рисунок 4 - Примерная схема открытой системы отопления; ГБ; Так как при срабатывании предохранительного клапана возможен; Правила хранения и транспортирования
- 8 соответствующую требованиям; Таблица 3; Работа регулятора температуры; Техническое обслуживание и ремонтные работы производить при
- 9 КОТЁЛ; БЛОК УПРАВЛЕНИЯ; следует помнить, что при замыкании контакта
- 10 Рисунок 7 - Электрическая схема подключения; Рисунок 8 - Электрическая схема подключения; II; Рисунок 9 - Электрическая схема подключения; II; Порядок; Все элементы управления расположены на лицевой стороне