Котел Эван NOVATOR-28 - инструкция пользователя по применению, эксплуатации и установке на русском языке. Мы надеемся, она поможет вам решить возникшие у вас вопросы при эксплуатации техники.
Если остались вопросы, задайте их в комментариях после инструкции.
"Загружаем инструкцию", означает, что нужно подождать пока файл загрузится и можно будет его читать онлайн. Некоторые инструкции очень большие и время их появления зависит от вашей скорости интернета.

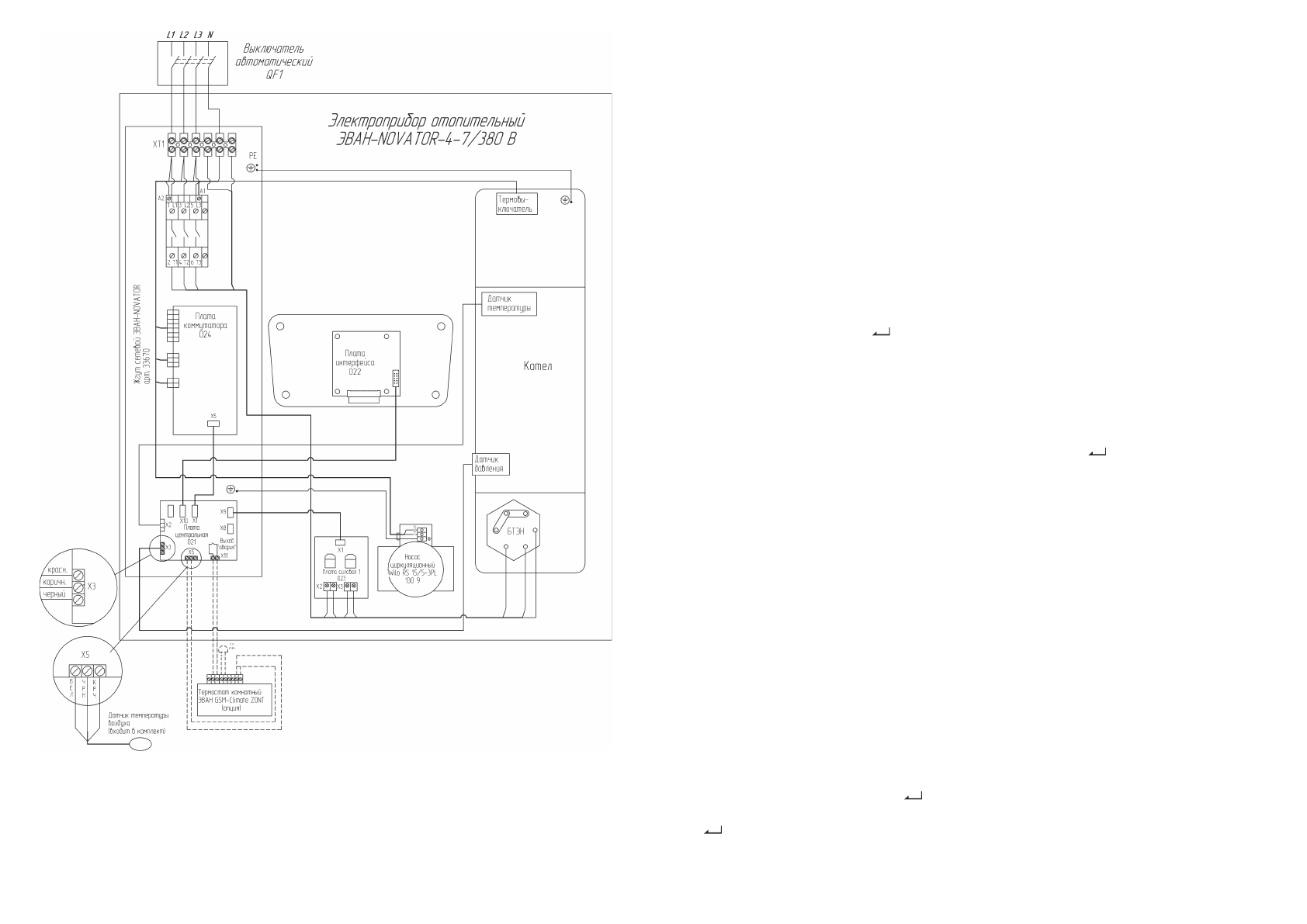
Рисунок7 Схема подключения ЭВАН NOVATOR -4-7/ 380 В
- 12 -
7.4
Работа прибора при подключении термостата или ведущего котла.
Если вместо штатного датчика температуры будет подключен комнатный термостат
типа реле, (например, GSM или WiFi модуль ЭВАН-ZONT, или ведущий котел ЭВАН
EXPERT, для которого наш прибор служит ведомым и используется при необходимости
увеличить общую теплопроизводительность отопительной системы, то при замыкании
контактов 1 и 2, разъёма X5 "Температура помещения" платы центральной, нагрев будет
запрещен. На цифровом индикаторе появятся символы «НЕ». При размыкании контактов
(или при отсутствии подключенных к ним устройств) прибор будет работать в режиме
обогрева — поддерживать заданную температуру подачи теплоносителя. При этом цифро-
вой индикатор будет высвечивать символы «--» в течение нескольких секунд, а затем пере-
ключится в основной режим — режим индикации текущей температуры теплоносителя.
7.5
Изменение потребляемой мощности прибора.
Если при работе прибора в основном режиме индикации нажать кнопку
«—»
, произой-
дет переход в режим индикации и контроля мощности. При этом будет светиться индикатор
«мощность»
, а семисимвольный индикатор будет указывать текущую среднюю потребляе-
мую мощность, в процентах от номинальной, рассчитанную с целью минимизировать
отклонения текущей температуры от заданной. Её значение определяется и поддерживается с
точностью до 1%. Кнопкой
« »
производится переход в режим ограничения максимальной
мгновенной мощности, при этом высветятся мигающие значения ограничения мощности.
Кнопками
«+»/«—»
установите желаемое значение ограничения по мощности. Ступеней
ограничения мощности, в зависимости от модели и вида подключения, в соответствии с
таблицей 2, может быть две или три. При трех ступенях можно выбрать значения 33%, 66%
или 99% от номинальной мощности прибора, при двух - только 50% или 99% (значение 99%
означает использование полной номинальной мощности прибора). Для его фиксации
необходимо ещё раз нажать кнопку подтверждения выбора
« »
, показания индикатора
перестанут мигать. На индикаторе отобразится текущее значение потребляемой мощности.
Подобное ограничение оказывается необходимым, если прибор приобретен «на
вырост» - в случае предполагаемого увеличения лимитов потребляемой хозяйством
мощности, а также при временном росте потребления электрической мощности другими
устройствами хозяйства. Ограничение мощности полностью препятствует включению
некоторого количества ТЭНов. Остальные ТЭНы в режиме нагрева периодически
включаются и выключаются таким образом, чтобы поддерживать температуру подачи
теплоносителя (в режиме «отопление») на заданном уровне, или (в режиме «комнатный»)
на уровне, оптимальном для поддержания заданной температуры воздуха.
При этом в
основном режиме индикации
уровень ограничения мощности
отображается числом индикаторов (7) (рис. 3) — максимум — три, а текущая средняя
потребляемая мощность с округлением вверх — числом индикаторов (6) (рис. 3).
7.6
По умолчанию установлен режим
«отопление»
, при котором за счет измене-
ния потребляемой мощности температура подачи теплоносителя поддерживается в соотве-
тствии с уставкой. Для выбора режима
«комнатный»
, а также при подключении прибора
мощностью до 7 кВт к трёхфазной сети 380В необходимо перейти в Сервисное меню.
7.7
Для входа в сервисное меню необходимо одновременно нажать на кнопки
«+»
и
«—»
панели управления и удерживать их в течение 5 секунд. На 7-ми сегментном
индикаторе высветится «С0». Нажимая кнопки
«+»/«—»
выбрать настройку, требую-
щую корректировки. Кнопкой
« »
можно перейти в режим изменения соответствую-
щей настройки, после её коррекции кнопками
«+»/«—»
следует снова нажать кнопку
«
»
. Перечень функций сервисного меню смотри в Таблице 4. После завершения
коррекций через несколько секунд прибор перейдет в
основной режим индикации
.
- 17 -