Котел Эван EXPERT -7,5 - инструкция пользователя по применению, эксплуатации и установке на русском языке. Мы надеемся, она поможет вам решить возникшие у вас вопросы при эксплуатации техники.
Если остались вопросы, задайте их в комментариях после инструкции.
"Загружаем инструкцию", означает, что нужно подождать пока файл загрузится и можно будет его читать онлайн. Некоторые инструкции очень большие и время их появления зависит от вашей скорости интернета.

15
6.1.14
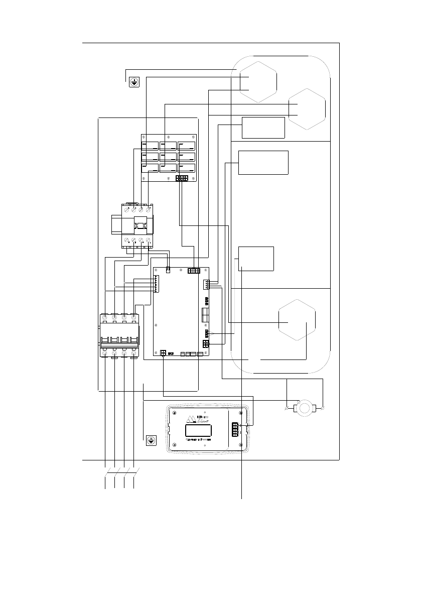
Схема подключения прибора изображена на рис. 12.
Датчик
давления
L1 L2 L3 N
Датчик
температуры
Котел
Стенка
дна
котла
Термо-
выключатель
БТЭН 1
БТЭН 2
БТЭН 3
K1
K2
K3
K4
K5
K6
K7
K8
K9
Плата
функциональная
Плата
силовая
Панель
смонтированная
Выключатель
автоматический
Стенка
верхняя
котла
QF1
KM1
A2
A1
M1
PE
ЭВАН EXPERT
QF2
Датчик
давления
L1 L2 L3 N
Датчик
температуры
Котел
Стенка
дна
котла
Термо-
выключатель
БТЭН 1
БТЭН 2
БТЭН 3
K1
K2
K3
K4
K5
K6
K7
K8
K9
Плата
функциональная
Плата
силовая
Панель
смонтированная
Выключатель
автоматический
Стенка
верхняя
котла
QF1
KM1
A2
A1
M1
PE
ЭВАН EXPERT
QF2
Рис. 12
Схема подключения ЭВАН EXPERT.













