Котел Эван EXPERT -27 - инструкция пользователя по применению, эксплуатации и установке на русском языке. Мы надеемся, она поможет вам решить возникшие у вас вопросы при эксплуатации техники.
Если остались вопросы, задайте их в комментариях после инструкции.
"Загружаем инструкцию", означает, что нужно подождать пока файл загрузится и можно будет его читать онлайн. Некоторые инструкции очень большие и время их появления зависит от вашей скорости интернета.

15
6.1.14
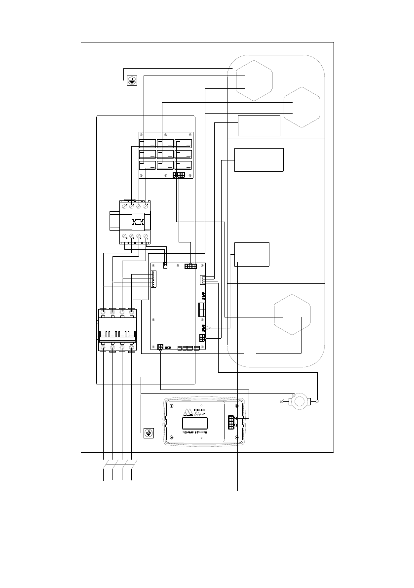
Схема подключения прибора изображена на рис. 12.
Датчик
давления
L1 L2 L3 N
Датчик
температуры
Котел
Стенка
дна
котла
Термо-
выключатель
БТЭН 1
БТЭН 2
БТЭН 3
K1
K2
K3
K4
K5
K6
K7
K8
K9
Плата
функциональная
Плата
силовая
Панель
смонтированная
Выключатель
автоматический
Стенка
верхняя
котла
QF1
KM1
A2
A1
M1
PE
ЭВАН EXPERT
QF2
Датчик
давления
L1 L2 L3 N
Датчик
температуры
Котел
Стенка
дна
котла
Термо-
выключатель
БТЭН 1
БТЭН 2
БТЭН 3
K1
K2
K3
K4
K5
K6
K7
K8
K9
Плата
функциональная
Плата
силовая
Панель
смонтированная
Выключатель
автоматический
Стенка
верхняя
котла
QF1
KM1
A2
A1
M1
PE
ЭВАН EXPERT
QF2
Рис. 12
Схема подключения ЭВАН EXPERT.
Содержание
- 4 Технические данные; Прибор относится к низкотемпературным котлам с максимальной; Номинальная мощность; По степени защиты от поражения электрическим током прибор со-
- 7 Внешний вид прибора представлен на рис. 1.; Внешний вид прибора.; Для подключения прибора и ремонтно-профилактических работ не-; Рисунок 2
- 8 Вид прибора со снятым кожухом показан на рисунке 3.; Рисунок 3; Прибор состоит из: задней панели (18) с установленным на ней зажимом
- 9 Расположение на плате управления разъѐмов для подключения; Плата управления содержит винтовые зажимы для подключения как
- 11 На рис. 5 отражены основные элементы блока управления:; Рисунок 5; Дисплей может находиться в одном из трех информационных режи-
- 13 Окна временных графиков показаны на рис. 9, 10; Графики динамики уличной и комнатной температур воздуха.; Требования безопасности; щей отметкой в разделе ―Отметка о проведенных работах‖.
- 14 Подготовка к работе; Монтаж и подключение
- 16 Закладная деталь для крепления прибора.; Подключение прибора к электрической сети производится в соот-
- 17 Схема подключения прибора изображена на рис. 12.; ЭВАН EXPERT; ЭВАН EXPERT; Схема подключения ЭВАН EXPERT.
- 18 согласно ПУЭ и ППБ; Заполнение отопительной системы.; Порядок работы; Характеристика режимов работы:
- 20 Структура и содержание меню установок.
- 22 «Т0С погоды» - температурный параметр определяющий кривую; Установка температурных параметров
- 27 Окончание работы; Техническое обслуживание; Техническое обслуживание и ремонтные работы производить при от-
- 28 Схема обслуживания насоса.; Срок службы прибора, установленный изготовителем, 5 лет от даты; Правила хранения и транспортирования; Хранить прибор необходимо в помещениях с естественной вентиля-
- 29 Гарантийный срок эксплуатации прибора - 24 месяца от даты под-
- 33 Цена