Котел Эван ЭПО-192 - инструкция пользователя по применению, эксплуатации и установке на русском языке. Мы надеемся, она поможет вам решить возникшие у вас вопросы при эксплуатации техники.
Если остались вопросы, задайте их в комментариях после инструкции.
"Загружаем инструкцию", означает, что нужно подождать пока файл загрузится и можно будет его читать онлайн. Некоторые инструкции очень большие и время их появления зависит от вашей скорости интернета.

-
ñå÷åíèå
ìåäíîé
òîêîïðîâîäÿùåé
æèëû êàáåëÿ èëè ïðîâîäîâ, ïðèìåíÿåìûõ
äëÿ ïîäêëþ÷åíèÿ - 10ìì ;
-
ïðè
ïîäòÿãèâàíèè
êîíòàêòîâ
íà
ÒÝÍàõ
íå
äîïóñêàåò ñÿ
ïðîâåðòûâàíèå
êîíòàêòíûõ ñòåðæíåé â êîðïóñå ÒÝÍîâ;
-
ðàáî÷èé
äàò÷èê
îñòîðîæíî,
áåç
áîëüøèõ óñèëèé, âñòàâëÿåòñÿ â ãèëüçó êîòëà
(5) äî óïîðà;
-
êîíòàêòû
ïðîâîäà
äëÿ
òåìïåðà-
òóðíîãî
ðåëå
îñòîðîæíî
âñòàâëÿþòñÿ
â
ãíåçäà çàæèìîâ ñàìîãî ðåëå äî óïîðà (ïðè
ýòîì
êîíòàêòû
ïðîâîäà
íàäåâàþòñÿ
íà
êîíòàêòû ðåëå è íå äîëæíû âûñòóïàòü èç
ãíåçä).
6.2.1.  êà÷åñòâå òåïëîíîñèòåëÿ ðàçðåøàåòñÿ èñïîëüçîâàòü âîäó ñî-
èëè íèçêîòåìïåðàòóð-
íóþ (íåçàìåðçàþùóþ) æèäêîñòü, èìåþùóþ òåìïåðàòóðó êèïåíèÿ íå íèæå
100
Ñ, áåç ìåõàíè÷åñêèõ ïðèìåñåé è ñåðòèôèöèðîâàííóþ â êà÷åñòâå
òåïëîíîñèòåëÿ äëÿ äàííîãî ïðèáîðà.
6.2.2. Ïðè çàïîëíåíèè ñèñòåìû îòîïëåíèÿ íåîáõîäèìî îáåñïå÷èòü îò-
ñóòñòâèå â íåé íåçàïîëíåííûõ ïóñòîò.
2
0
6.2.
Çàïîëíåíèå
îòîïèòåëüíîé
ñèñòåìû
îòâåòñòâóþùóþ òðåáîâàíèÿì ÑàíÏèÍ 2.1.4.559-96
à)
á)
å
.
â)
íåìåäëåííî îòêëþ÷èòü ïðèáîð îò
ñåòè àï-
ïàðàòîì çàùèòû;
ñëè
ïðè
ýòîì
ñóùåñòâóåò
âîçìîæíîñòü
çàìåðçàíèÿ
òåïëîíîñèòåëÿ â ñèñòåìå îòîïëåíèÿ, òî åãî íåîáõîäèìî ñëèòü
âûçâàòü
ñïåöèàëèñòà
èç
ãàðàíòèéíîé
ìàñòåðñêîé
îðãàíèçàöèè, èìåþùåé çàðåãåñòðèðîâàíîîå â ãîñóäàðñòâåííûõ îðãàíàõ
ð à ç ð å ø å í è å
í à
ï ð î è ç âîä ñ ò âî
ä à í í û õ
ð à áî ò
è
ä î ã î âî ð
ñ
èçãîòîâèòåëåì.
6.
Ïîäãîòîâêà
ê
ðàáîòå
6.1. Ìîíòàæ è ïîäêëþ÷åíèå
6.1.1. Ïîäêëþ÷åíèå ê ñåòè îñóùåñòâëÿåòñÿ â óñòàíîâëåííîì ïîðÿäêå.
6.1.2. Ìîíòàæ è ïîäêëþ÷åíèå ïðèáîðà îñóùåñòâëÿåòñÿ èñêëþ÷èòåëüíî
îðãàíèçàöèåé
(îðãàíèçàöèÿìè),
èìåþùåé
ðàçðåøåíèå
íà
ïðîèçâîäñòâî
äàííûõ ðàáîò, çàðåãåñòðèðîâàíîîå â ãîñóäàðñòâåííûõ îðãàíàõ.
6.1.3. Îðãàíèçàöèè (îðãàíèçàöèÿ), âûïîëíÿþùèå ìîíòàæ è ïîäêëþ-
÷åíèå, äåëàþò ñîîòâåòñòâóþùóþ çàïèñü â ðàçäåëå “Îòìåòêà î ïðîâåäåííûõ
ðàáîòàõ”.
6.1.4. Ïóñêî-íàëàäî÷íûå ðàáîòû ïðåäóñìàòðèâàþò:
- ïîäêëþ÷åíèå ýëåêòðîîòîïèòåëüíîãî êîòëà ê ñèñòåìå îòîïëåíèÿ;
- ïîäêëþ÷åíèå ýëåêòðîîòîïèòåëüíîãî êîòëà ê ýëåêòðè÷åñêîé ñåòè;
- çàïîëíåíèå ñèñòåìû òåïëîíîñèòåëåì;
- óäàëåíèå âîçäóõà èç ñèñòåìû îòîïëåíèÿ;
- äîâåäåíèå äàâëåíèÿ äî íîðìû ñîãëàñíî òðåáîâàíèÿì íàñòîÿùåãî ðóêî-
âîäñòâà ïî ýêñïëóàòàöèè (ïðè èñïîëüçîâàíèè ýêñïàíçîìàòà);
- ïðîáíûé ïóñê;
- ðåãóëèðîâêó ñèñòåìû è çàïîðíîé àðìàòóðû;
- èíñòðóêòàæ ïîòðåáèòåëÿ ïî ïðàâèëàì ýêñïëóàòàöèè ñ îòìåòêîé â ðàçäåëå
“Îòìåòêà î ïðîâåäåííûõ ðàáîòàõ”.
6.1.5.
Ïåðåä
ìîíòàæîì
êîòëà
ïðîâåðüòå
ïðàâèëüíîñòü
è
êà÷åñòâî
ìîíòàæà ñèñòåìû îòîïëåíèÿ.
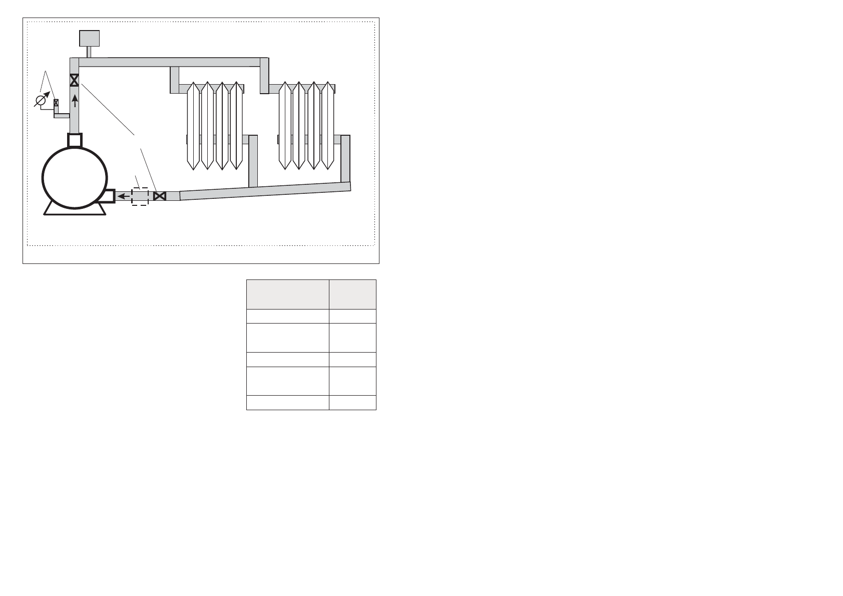
Òðóáû ñèñòåìû îòîïëåíèÿ â ñîîòâåòñòâèè ñ ðèñóíêîì 3 äîëæíû áûòü
ðàñïîëîæåíû
òàê,
÷òîáû
ñïîñîáñòâîâàòü
åñòåñòâåííîé
öèðêóëÿöèè
òåïëîíîñèòåëÿ. Ïðè ýòîì ìàêñèìàëüíûé óðîâåíü òåïëîíîñèòåëÿ íå äîëæåí
ïðåâûøàòü 20 ìåòðîâ îò óðîâíÿ êîòëà (ðàáî÷åå äàâëåíèå â êîòëå íå âûøå
0,2 ÌÏà).
 ñèñòåìå îòîïëåíèÿ íåîáõîäèìî èñïîëüçîâàòü öèðêóëÿöèîííûé íàñîñ,
óñòàíîâëåííûé â ñîîòâåòñòâèè ñ ðèñóíêîì 3.
Ñèñòåìà îòîïëåíèÿ äîëæíà îáÿçàòåëüíî èìåòü ðàñøèðèòåëüíóþ åì-
êîñòü, ñîîáùàþùóþñÿ ñ àòìîñôåðîé. Ïðè èñïîëüçîâàíèè ðàñøèðèòåëüíîé
åìêîñòè ìåìáðàííîãî òèïà (ýêñïàíçîìàòà) íà âûõîäå èç ïðèáîðà ïåðåä
øàðîâûì
âåíòèëåì
äîëæåíà
óñòàíàâëèâàòüñÿ
ãðóïïà
áåçîïàñíîñòè,
âêëþ÷àþùàÿ âñåáÿ ïðåäîõðàíèòåëüíûé êëàïàí, ðàññ÷èòàííûé íà äàâëåíèå
íå áîëåå 0,3 ÌÏà, ìàíîìåòð è àâòîìàòè÷åñêèé âîçäóõîîòâîä÷èê.
ýëåêòðè÷åñêîé
èëè
Ðèñóíîê 3- Ïðèìåðíàÿ ñõåìà ñèñòåìû îòîïëåíèÿ
Ê - êîò¸ë; ÃÁ - ãðóïïà áåçîïàñíîñòè; ÐÅ - ðàñøèðèòåëüíàÿ
åìêîñòü; ØÂ - øàðîâûé âåíòèëü G2; ÍÖ - íàñîñ öèðêóëÿöèîííûé
ØÂ
ÍÖ
ÐÅ
Ê
Íàçâàíèå
ïðèáîðà
Ñå÷åíèå
æèëû,
êâ. ìì
Òàáëèöà 3
ÝÏÎ-240
ÝÏÎ-180;-192
ÝÏÎ-204;-216;
-228
ÝÏÎ-144;-156;
-168
ÝÏÎ-132
95
120
150
185
240
- 7 -
- 10 -
ÃÁ