Котел Electrolux Quantum 32Fi - инструкция пользователя по применению, эксплуатации и установке на русском языке. Мы надеемся, она поможет вам решить возникшие у вас вопросы при эксплуатации техники.
Если остались вопросы, задайте их в комментариях после инструкции.
"Загружаем инструкцию", означает, что нужно подождать пока файл загрузится и можно будет его читать онлайн. Некоторые инструкции очень большие и время их появления зависит от вашей скорости интернета.

18
electrolux
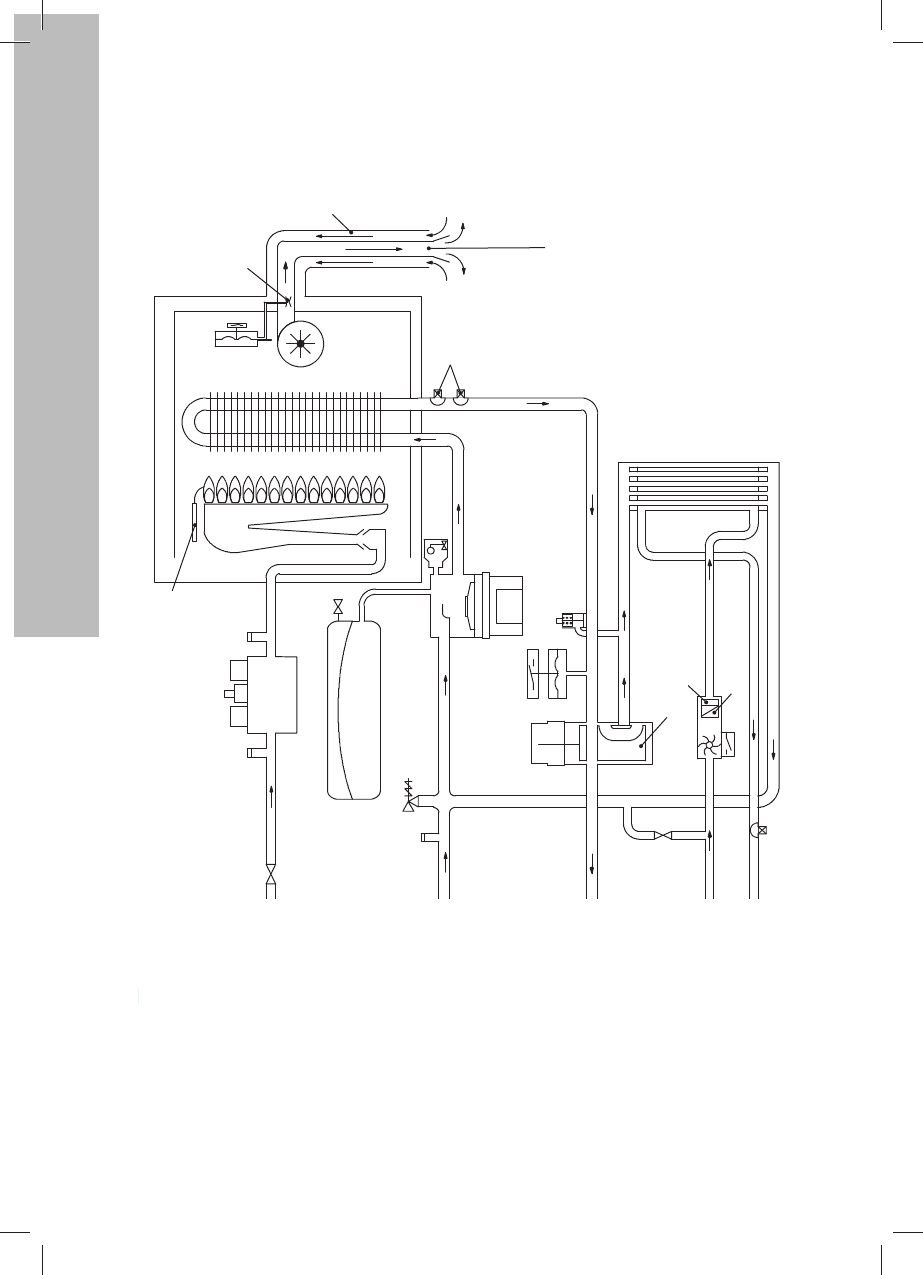
4. 2 Принципиальная схема
9 Труба нагнетания системы отопления
10
Труба выхода системы горячего водоснаб-
жения
11 Газовый кран
12 Труба входа системы горячего водоснаб-
жения
13 Труба возврата системы отопления
14 Кран наполнения контура системы отопле-
ния
15 Прессостат
16
Отводы замера перепада давления, созда-
ваемого трубкой Вентури
17 Вентилятор
18 Датчик NTC в системе горячего водоснаб-
43
44
18
39
31
21
32
22
28
27
36
30
24
11 12
13 9
10
14
17
37
34
35
25
26
45
15
23
33
42
40
41
19
Рисунок 4.2
Содержание
- 9 ИНСТРУКЦИИ ПО ЭКСПЛУАТАЦИИ
- 12 Регулировка
- 14 Требования к воде, используемой в качестве; Наполнение контура отопления; Кран наполнения; Давление между; Защита от замерзания
- 15 Периодическое техобслуживание; Для очистки используйте ткань, смоченную; Отклонения от нормы в работе
- 16 Шумы воздушных пузырьков
- 18 Принципиальная схема
- 20 Электрическая схема; переменный
- 21 Технические характеристики GCB 24 Quantum Fi
- 24 УСТАНОВКА
- 34 К ВЫНОСНОЙ; Клеммная; К двухполюсному
- 35 него датчика к котлу; него датчика; Внешняя температура °C
- 38 • Включите электропитание котла: на дисплее; Минуты
- 39 чения; Когда котел работает в системе отопления в ре-
- 40 кунд). Это значение можно установить на максимум 255
- 41 ПОДГОТОВКА К ЭКСПЛУАТАЦИИ; Перед выполнением описанных далее дей-; Последовательность действий; Подача газа
- 44 Проверка минимального давления в горелке
- 45 Важно! Измерив давление газа, необходимо; Регулировка розжига горелки
- 48 Для приспособления котла к типу газа необхо-; Операции и настройка газа; Винты
- 49 НАСТРОЙКИ регулятора; ГАЗ; МЕТАН; Тип газа; раться поочередно с цифрой 04.
- 50 Настройка типа газа второго уровня; В следующей таблице показана связь между; Природный газ; В следующей таблице показано, как соотно-
- 51 фастоне модулирующего устройства.
- 52 Описанные в данной главе действия долж-; Снятие внешних панелей; Передняя панель; Опорожнение контура системы; • Закройте отсечной клапан на входе систе-
- 53 Кран для опорожнения системы
- 60 ТАЛОН НА ГАРАНТИЙНОЕ ОБСЛУЖИВАНИЕ/












