Котел Electrolux GWH 265 ERN NanoPlus - инструкция пользователя по применению, эксплуатации и установке на русском языке. Мы надеемся, она поможет вам решить возникшие у вас вопросы при эксплуатации техники.
Если остались вопросы, задайте их в комментариях после инструкции.
"Загружаем инструкцию", означает, что нужно подождать пока файл загрузится и можно будет его читать онлайн. Некоторые инструкции очень большие и время их появления зависит от вашей скорости интернета.

8
electrolux
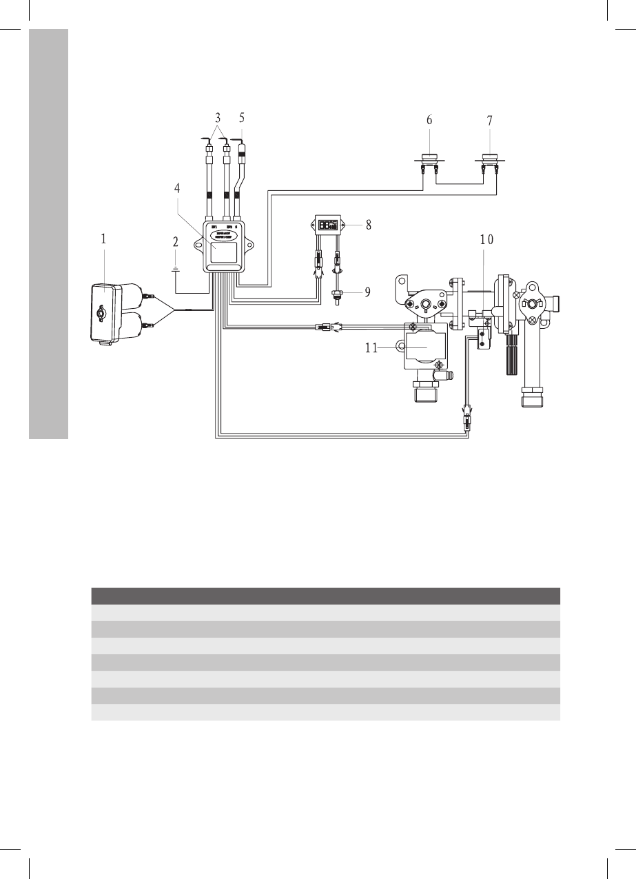
Электрическая схема
1.
Отсек для батареек.
2.
Клемма для подключения заземления.
3.
Электроды розжига.
4.
Модуль управления.
5.
Электрод ионизации.
6.
Датчик защиты от перегрева отводя-
щих газов.
7.
Датчик защиты от перегрева воды в
теплообменнике.
8.
Дисплей.
9.
Датчик температуры горячей воды.
10.
Микропереключатель.
11.
Сервоклапан газового узла.
Размер соединения
В аппарате
Внешние
Трубопровод
Природный газ
1/2"
1/2"
Холодная вода (вход)
1/2"
1/2"
Горячая вода (выход)
1/2"
1/2"
Дымоход
Диаметр дымохода
110 мм (внутренний)
113 мм (внешний)
Характеристики
Остались вопросы?Не нашли свой ответ в руководстве или возникли другие проблемы? Задайте свой вопрос в форме ниже с подробным описанием вашей ситуации, чтобы другие люди и специалисты смогли дать на него ответ. Если вы знаете как решить проблему другого человека, пожалуйста, подскажите ему :)












