Котел Electrolux FSB 115 iN - инструкция пользователя по применению, эксплуатации и установке на русском языке. Мы надеемся, она поможет вам решить возникшие у вас вопросы при эксплуатации техники.
Если остались вопросы, задайте их в комментариях после инструкции.
"Загружаем инструкцию", означает, что нужно подождать пока файл загрузится и можно будет его читать онлайн. Некоторые инструкции очень большие и время их появления зависит от вашей скорости интернета.

14
electrolux
газовые котлы
15
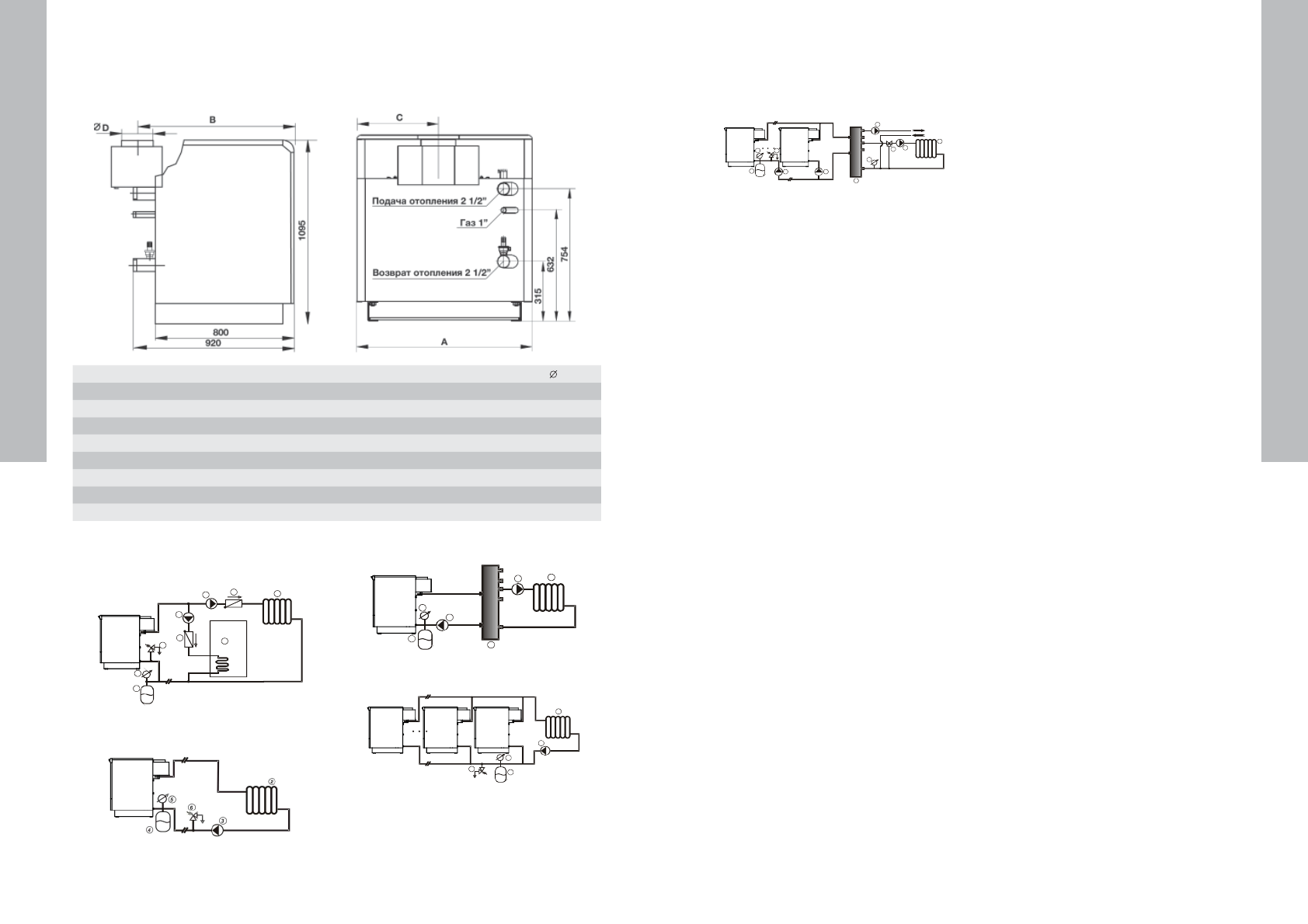
Габаритные и присоединительные
размеры котлов Electrolux
Принципиальные схемы работы
Система отопления с радиаторами.
Отопительная система с радиаторами и
бойлерами косвенного нагрева.
4
5
6
3
7
8
7
3
2
Работа через гидрострелку.
Каскадное подключение котлов.
9
4
5
3
3
2
4
5
6
3
2
Несколько котлов в каскаде, гидравлической
стрелкой, включаемой и отключаемой
потребителем.
1
Котёл
2
Радиаторы
3
Циркуляционный
насос
4
Расширительный бак (экспанзиомат)
5
Манометр
6
Предохранительно-сбросной
клапан
7
Обратный
клапан
8
Бойлер косвенного нагрева
9
Гидроразделитель
(гидрострелка)
10
3-ходовой смеситель
Подключение бойлера
Подключение водяного контура бойлера-котла
требует внимания и выполнения специальных
работ. Монтаж может производить только
специалист, знающий действующие стандарты,
нормы, предписаниями и т.д.
Перед соединением бойлера и котла,
необходимо тщательно промыть отопительную
систему, так как возможные загрязнения могут
быть причиной сбоя в работе бойлера.
Описание и монтаж электрооборудования
к котлам
Управление газовым котлом для бойлера
косвенного нагрева спроектировано
и выполнено так, чтобы обеспечить
использование всех преимуществ котлов типа
ELECTROLUX дополнительно к возможности
подключения бойлера косвенного нагрева.
• Котел работает от сети однофазного тока
230В/50Гц.
• Бойлер не имеет отдельного сетевого
соединения, он работает при 230В/50Гц от
блока управления котлом.
Измерение температуры, в котлах данных
моделей, осуществляется с помощью датчиков
типа NTC. Установка: разместите датчик NTC
в измерительное гнездо бойлера и соедините
провода с соответствующими клеммами на
панели управления согласно обозначений. Если
провод датчика короткий, его можно удлинить
кабелем ПВС 2х0,75 мм
2
или кабелем подобного
типа, с учетом электротехнических стандартов,
винтовым соединением, изоляцией и пр.
• Соединить датчик NTC с серийной клеммой
согласно надписей.
• Соединить насос ГВС (подогрева бойлера)
кабелем ПВС 3х0,75 мм
2
или максимум
ПВС 3х1 мм2 с серийной клеммой в
соответствующем месте.
Установить перемычку на ножки JP3 на
электронной плате управления.
Подключение комнатного термостата
Провод комнатного термостата необходимо
подключить к серийной клемме с
соответствующей надписью, находящейся на
плате управления. Соединение – низковольтное,
для него нужны клеммы с зажимом.
Рекомендуемое сечение провода 2х0.75 мм
2
.
4
5
5
6
9
10
3
3
3
3
2
FSB ___iN
A
В
С
D
FSB 65 iN
789
1008
320
200
FSB 80 iN
939
1008
386
200
FSB 100 iN
939
1008
386
225
FSB 115 iN
1164
1008
487
225
FSB 130 iN
1164
1008
487
250
FSB 150 iN
1389
1008
588
250
FSB 165 iN
1389
998
588
300
FSB 180 iN
1464
998
649
300
Содержание
- 3 Технические характеристики; Панель управления
- 4 2 защитных функций; Требования к воде, используемой в качестве; Заполнение системы отопления; Включение котла и его работа; Проверка котла перед первым включением
- 5 Включение котла
- 6 Режим приготовления ГВС:; Выключение котла; Выключение котла на долгое время; Техническое обслуживание; Сигналы и сообщения сбоя
- 7 Монтаж котла; Распаковка
- 8 Принципиальные схемы работы; Подключение бойлера
- 9 Подсоединение к дымоходу
- 11 Га ран тий ный та лон; ТАЛОН НА ГАРАНТИЙНОЕ ОБСЛУЖИВАНИЕ/












