Котел De Dietrich DTG X 36 N - инструкция пользователя по применению, эксплуатации и установке на русском языке. Мы надеемся, она поможет вам решить возникшие у вас вопросы при эксплуатации техники.
Если остались вопросы, задайте их в комментариях после инструкции.
"Загружаем инструкцию", означает, что нужно подождать пока файл загрузится и можно будет его читать онлайн. Некоторые инструкции очень большие и время их появления зависит от вашей скорости интернета.

2
МОДЕЛЬНЫЙ РЯД КОТЛОВ
О
снОвные
размеры
(
в
мм
и
дюймах
)
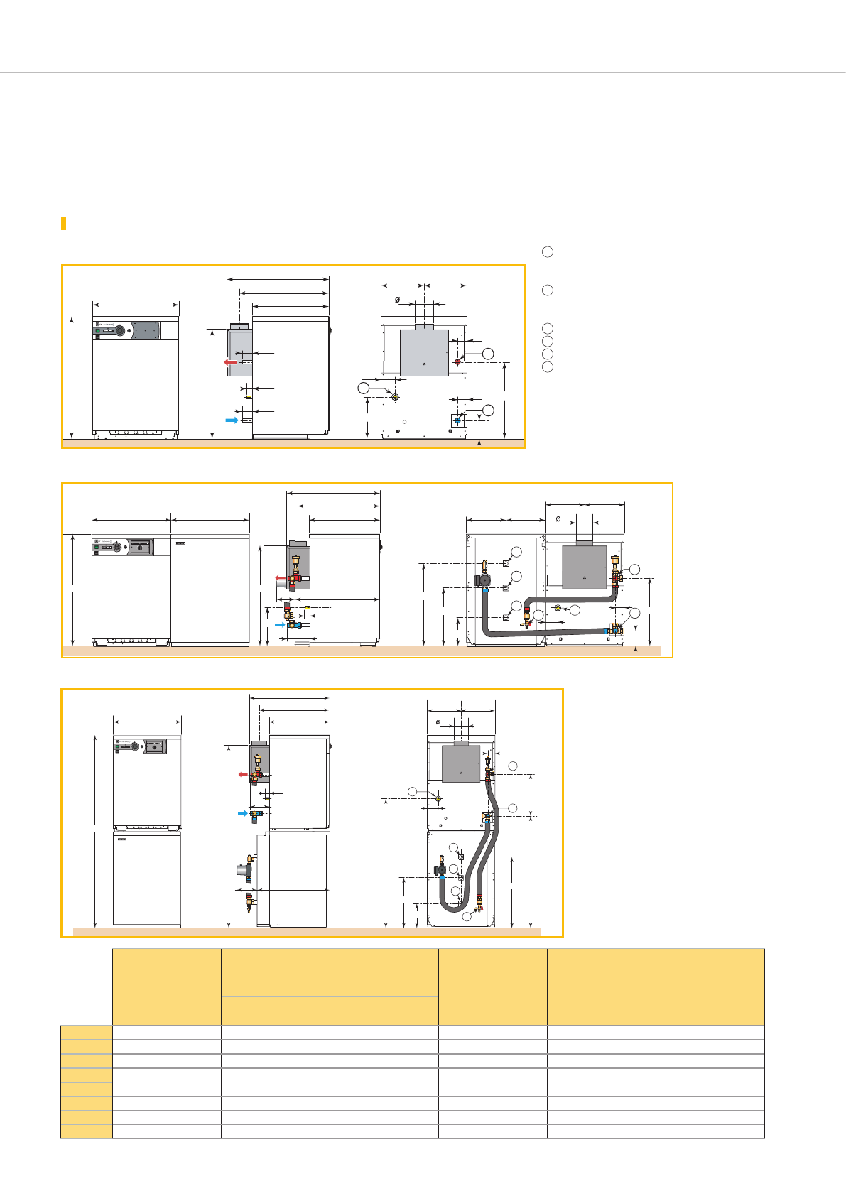
При добавлении дополнительного оборудования — емкостного водонагревателя GMT 130, соединительных трубопроводов
котел/водонагреватель с загрузочным насосом и модуля приоритета и регулирования температуры горячей воды MB2 (ед. по
ставки AD 128) — котлы DTG X предоставляют хорошее решение для горячего водоснабжения с высоким уровнем комфорта.
Водонагреватель GMT 130 может быть установлен рядом с котлом (все модели) и под котлом (только модели 30 N и 36 N).
Соединительные трубопроводы котёл/водонагреватель (ед. поставки ЕА 30) используются для подключения водонагревателя,
установленного справа или слева от котла, а также под котлом.
1
Подающая труба системы отопления
R1 (1’’) только для котла
G1 (1’’) только для котла с водонагревателем
2
Обратная труба системы отопления
R1 (1’’) только для котла
G1 (1’’) только для котла с водонагревателем
3
Подвод газа
Ø
Н
4
Выход горячей воды R 3/4 (3/4’’)
5
Циркуляция R 3/4 (3/4’’)
6
Вход холодной воды R 3/4 (3/4’’)
R:
Наружная резьба
G:
Наружная цилиндрическая резьба
(герметичная при использовании плоской
прокладки)
Для большей наглядности рисунка набор для
подсоединения водонагревателя не показан на
центральном рисунке.
DTGX_F0001
6
7
8
9
3
4
5
STB
20
°
C
40
0
I
w
x
TEST
STB
4
A
M
P
850
D
520
147
95
95
40
E
E
292
G
1
A
760
B
F
F
C
DTG X .. N
532
3
2
DTGX_F0001
DTG X..N
DTG X..N + GMT 130 (рядом с котлом)
DTG X..N + GMT 130 (под с котлом)
DTG X 23 N
DTG X 30 N
DTG X 36 N
DTG X 42 N
DTG X 48 N
DTG X 54 N
DTG X 23 N + GMT 130
(рядом с котлом)
DTG X 30 N + GMT 130
(рядом с котлом)
DTG X 36 N + GMT 130
(рядом с котлом)
DTG X 42 N + GMT 130
(рядом с котлом)
DTG X 48 N + GMT 130
(рядом с котлом)
DTG X 54 N + GMT 130
(рядом с котлом)
DTG X 30 N + GMT 130
(под котлом)
DTG X 36 N + GMT 130
(под котлом)
A
452
596
596
740
740
884
B
707
707
707
737
737
737
C
622
622
622
637
637
637
Ø
D
130
150
150
180
180
180
E
49
85
49
85
49
85
F
226
298
298
370
370
442
G
60
96
64
96
64
96
Ø
H
R 1/2
R 1/2
R 1/2
R 3/4
R 3/4
R 3/4
6
7
8
9
3
4
5
STB
20
°C
40
0
I
w
x
TEST
STB
4
A
M
P
=
=
D
DTGX_F0002
A
B
F
F
596
532
E
G
642
40
167
185
850
760
629
444
292
224
520
147
1
5
4
6
3
2
C
7
DTG X .. N + GMT 130 Juxtaposé
DTGX_F0002
6
7
8
9
3
4
5
STB
20
° C
40
0
I
w
x
TEST
STB
4
A
M
P
DTGX_F0003
150
298
298
1700
40
185
596
532
707
622
1610
1143
444
224
629
977
455
642
167
G
E
1
3
4
5
6
7
2
DTG X .. N + GMT 130 Superposé
DTGX_F0003