Котел Chaffoteaux Talia 30 CF - инструкция пользователя по применению, эксплуатации и установке на русском языке. Мы надеемся, она поможет вам решить возникшие у вас вопросы при эксплуатации техники.
Если остались вопросы, задайте их в комментариях после инструкции.
"Загружаем инструкцию", означает, что нужно подождать пока файл загрузится и можно будет его читать онлайн. Некоторые инструкции очень большие и время их появления зависит от вашей скорости интернета.

8
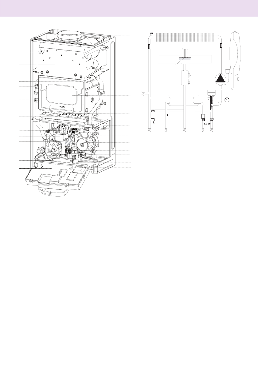
Описание котла
A. Патрубок подающей линии контура
отопления.
B. Патрубок подачи в контур ГВС
C. Вход газа
D. Патрубок подвода холодной воды
контура ГВС
E. Патрубок обратной линии контура
отопления
Гидравлическая схема
Размеры
Обозначения
1. Патрубок выхода продуктов сгорания
2.
Термостат продуктов сгорания
3.
Вытяжка продуктов сгорания
4. Первичный теплообменник
5. Термостат перегрева
6. Датчик температуры в подающей линии
7. Горелка
8. Трансформатор зажигания
9. Газовый клапан
10. Генератор зажигания
11. Датчик температуры контура ГВС
12. Предохранительный клапан контура
отопления,
13. Вторичный теплообменник
14.
Панель
управления
15. Сливной клапан
16. Электромагнитный клапан подпитки
17. Фильтр контура отопления
18. Датчик расхода в контуре ГВС
19. Циркуляционный насос с автоматическим
скоростей и воздухоотводчиком
20. Привод трехходового клапана
22. Датчик температуры в обратной линии
23. Электрод контроля пламени
24. Камера сгорания
25. Расширительный бак
1
2
3
4
5
6
7
8
9
10
10
12
14
13
25
24
23
20
22
19
18
17
16
15
A
B
C
D E
Характеристики
Остались вопросы?Не нашли свой ответ в руководстве или возникли другие проблемы? Задайте свой вопрос в форме ниже с подробным описанием вашей ситуации, чтобы другие люди и специалисты смогли дать на него ответ. Если вы знаете как решить проблему другого человека, пожалуйста, подскажите ему :)