Котел Chaffoteaux Pigma 25 CF - инструкция пользователя по применению, эксплуатации и установке на русском языке. Мы надеемся, она поможет вам решить возникшие у вас вопросы при эксплуатации техники.
Если остались вопросы, задайте их в комментариях после инструкции.
"Загружаем инструкцию", означает, что нужно подождать пока файл загрузится и можно будет его читать онлайн. Некоторые инструкции очень большие и время их появления зависит от вашей скорости интернета.

16
Монтаж
5
1
LN
FLOW
1
1
23
4
1
2
3
4
56
6
1
1
2
3
4
8
1
CN04
CN07
CN22
12
11
10
9
8
7
6
5
4
3
2
1
11
10
9
8
7
6
5
4
3
2
1
2
1
8
7
6
5
43
21
CN17
5
1
6
1
CN04
11
10
9
8
7
6
5
4
3
2
1
12
11
10
9
8
7
6
5
4
3
2
1
CN22
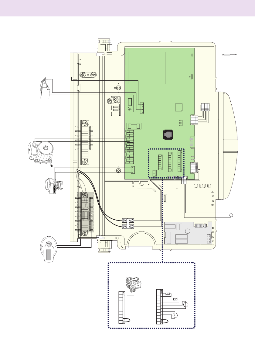
Д
а
тчик пламени
Термос
та
т
перегрева
Термос
та
т
про
д
у
к
тов сг
орания
TA1
Мод
ули управ
ления
(дополните
льный аксе
ссу
ар)
Ко
мна
тный т
ермос
та
т
Мо
д
у
ля
тор
га
зовог
о
к
л
апана
Д
а
тчик т
емпера
ту
ры
по
д
ающей линии
к
о
нт
ура о
топления
Д
а
тчик т
емпера
ту
ры
обра
тной линии
к
о
нт
ура о
топления
Д
а
тчик рас
хо
д
а
к
о
нт
ура ГВС
Дисплей
Дисплей
Га
зовый к
лапан
Тр
анс
форма
тор
зажиг
ания
Вен
тилят
ор
Зон
а 1
Ск
орос
ть
нас
ос
а
Предохранит
ель 2А
Т
Генера
тор розжиг
а
Приво
д тре
хх
одовог
о
кл
апана
Нас
ос
Д
атчик т
емпера
ту
ры
солнечног
о к
оллек
то
ра
Заземление
Пламя
Электрическая схема