Котел Buderus Logano S111-2 27 - инструкция пользователя по применению, эксплуатации и установке на русском языке. Мы надеемся, она поможет вам решить возникшие у вас вопросы при эксплуатации техники.
Если остались вопросы, задайте их в комментариях после инструкции.
"Загружаем инструкцию", означает, что нужно подождать пока файл загрузится и можно будет его читать онлайн. Некоторые инструкции очень большие и время их появления зависит от вашей скорости интернета.

2
Информация о котле
Logano S111-2 – 6 720 802 329 (2012/02)
6
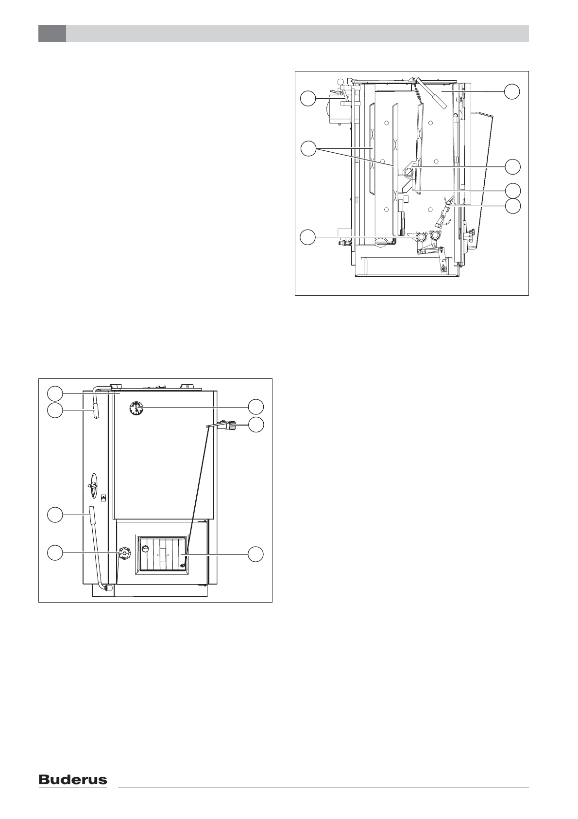
2.5
Описание оборудования
Основные части котла:
•
Регулятор горения
•
Заслонка первичного воздуха
•
Зольная дверца
•
Рычаг встряхивания колосниковой решётки
•
Рычаг загрузочной заслонки
•
Термоманометр
С помощью регулятора горения задаётся
требуемая температура котловой воды и этим
ограничивается её максимальное значение.
Заслонка первичного воздуха (связанная с
регулятором горения) регулирует подачу воздуха.
За зольной дверцей находится зольный ящик.
Благодаря перемещениям рычага встряхивания
колосниковой решётки зола падает в зольный
ящик.
Через загрузочную заслонку подается топливо. В
холодном состоянии через неё можно чистить
котёл.
Термоманометр показывает температуру в
отопительном котле и давление воды.
Рис. 1 Logano S111-2 (WT)
1
Котёл с заслонкой
2
Рычаг загрузочной заслонки
3
Рычаг встряхивания колосниковой решётки
4
Зольная дверца
5
Заслонка первичного воздуха
6
Регулятор горения
7
Термоманометр
На рис. 2 показаны основные детали и зоны внутри
котла.
Рис. 2 Котёл в разрезе, здесь тип 24
1
Растопочная заслонка
2
Поверхности нагрева
3
Встряхивающая колосниковая решётка
4
Загрузочная камера
5
Шамотные кирпичи
6
Топочная камера
7
Вертикальная решётка
Предохранительный теплообменник
Kотёл можно приобрести с предохранительным
теплообменником (обозначение "WT"). При
опасности перегрева срабатывает
термостатический клапан, и через
предохранительный теплообменник подаётся
охлаждающая вода. Из-за этого снижается
температура котловой воды.
6 720 648 407-05.1T
1
2
3
4
5
6
7
6 720 648 407-06.1T
1
2
3
4
5
6
7
Содержание
- 2 Твёрдотопливный
- 3 Содержание; Расстояния до горючих материалов . 13; Охрана окружающей среды/утилизация 33
- 4 Указания по безопасности
- 5 Осторожно открывайте двери котла.; Воздух для горения / воздух в помещении; Никогда не перекрывайте отопительный контур.
- 6 Информация о котле; Применение по назначению
- 7 Описание оборудования; Предохранительный теплообменник
- 8 Применяемое топливо; Применение других видов; Кроме; Воспламеняемость строительных материалов
- 9 Рис. 3 Комплект поставки; Дополнительное оборудование; Комплект поставки
- 10 Размеры и технические характеристики; Рис. 4 Размеры и подключения; Размеры; Типоразмер котла
- 11 Технические данные
- 13 Монтаж; Условия установки оборудования
- 14 Рис. 6 Расстояния от стен в помещении; Монтаж регулятора горения; Все типы котлов кроме 32D:; Прикрепите винтом цепь к воздушной заслонке.; угроза пожара из-за наличия
- 15 Зафиксируйте конус винтом M5.; Зафиксируйте рычаг шплинтом.; Подсоединение отвода дымовых газов; возможно
- 16 Рис. 10 Подключение к отводу дымовых газов
- 17 Рис. 11 Выполнение гидравлических; Кран для заполнения и слива; VK
- 18 Подключение предохранительного; Рис. 12 Подключение предохранительного
- 19 Демонтаж откидной решётки и; Установите вертикальную решётку в опору.
- 20 Установите верхние шамотные кирпичи.
- 23 Заполнение отопительной
- 24 Ввод в эксплуатацию; Перед пуском в эксплуатацию
- 25 Проверьте термическую защиту (; Настройка регулятора горения; Рис. 20 Регулировка натяжения цепи
- 26 Наклейка заводской таблички; Рис. 21 Наклейка заводской таблички; Работы при пуске в эксплуатацию; Протокол пуска в эксплуатацию
- 27 Регулятор горения настроен на
- 28 Прекращение эксплуатации; Очистите загрузочную и зольную камеры.
- 29 Техническое обслуживание и чистка; Чистка отопительной установки; Рис. 22 Удаление крышки отверстия для чистки
- 30 Рис. 24 Чистка откидной решётки; Работы по чистке котла; Удалите предметы, блокирующие решётку
- 31 Рис. 25 Термоманометр; Проверка термической защиты
- 33 Установлено правильное значение
- 34 Охрана окружающей среды/утилизация; Упаковка
- 35 Устранение неисправностей; Рис. 26 Котёл в разрезе
- 36 Таб. 11 Устранение неисправностей
- 37 Пример установки; PP; VH; RH
- 38 Алфавитный указатель

