Котел Buderus Logano S111-2 16 - инструкция пользователя по применению, эксплуатации и установке на русском языке. Мы надеемся, она поможет вам решить возникшие у вас вопросы при эксплуатации техники.
Если остались вопросы, задайте их в комментариях после инструкции.
"Загружаем инструкцию", означает, что нужно подождать пока файл загрузится и можно будет его читать онлайн. Некоторые инструкции очень большие и время их появления зависит от вашей скорости интернета.

3
Монтаж
Logano S111-2 – 6 720 802 329 (2012/02)
20
Тип 32D
B
Поднимите вертикальную решётку вверх из
опоры и выньте её из котла через загрузочную
заслонку или через зольную дверцу.
B
Уложите шамотные кирпичи как показано на
рисунке.
B
Установите вертикальную решётку в опору.
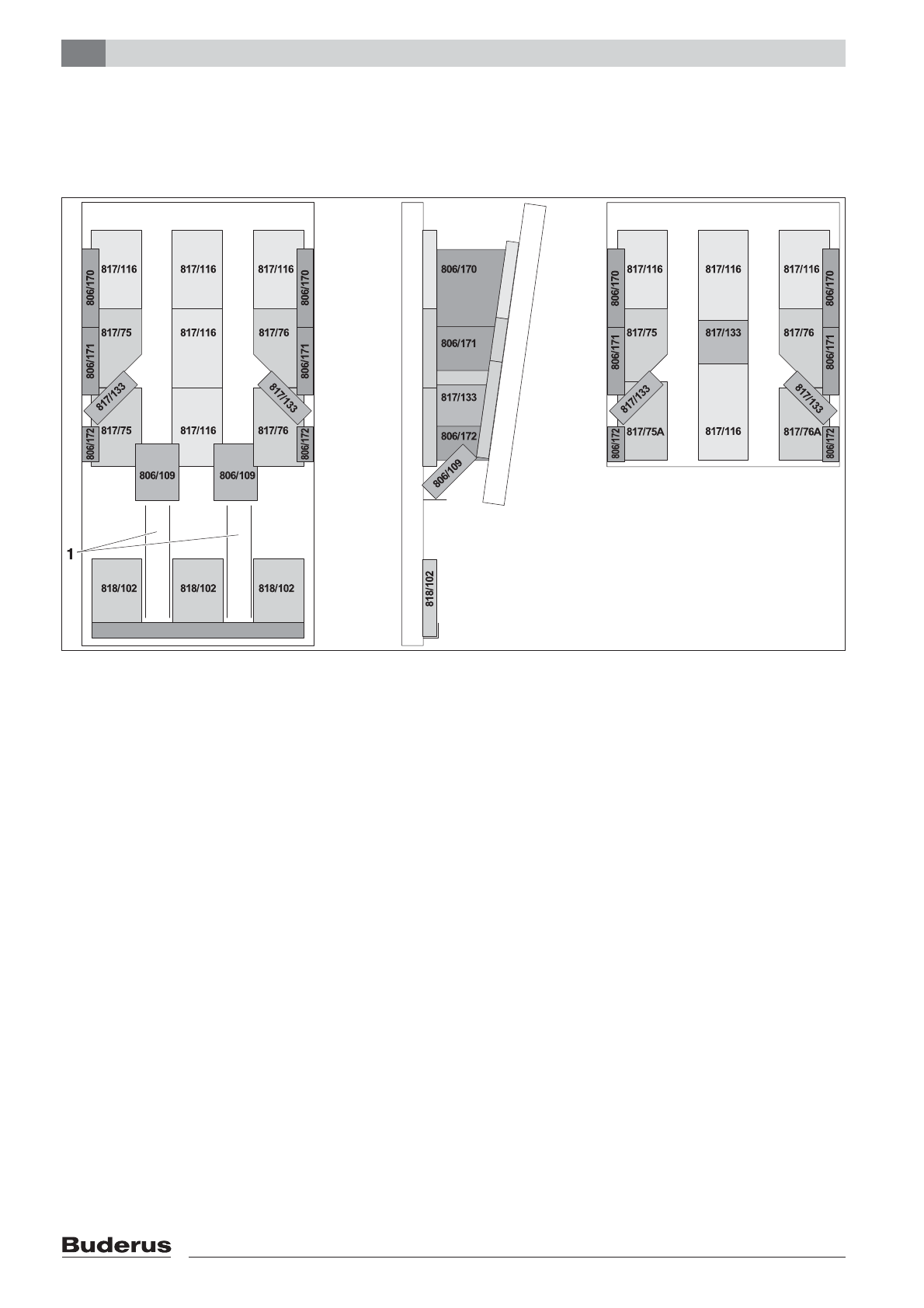
Рис. 16 Укладка шамотных кирпичей для типа 32D
1
Канал вторичного воздуха
Содержание
- 2 Твёрдотопливный
- 3 Содержание; Расстояния до горючих материалов . 13; Охрана окружающей среды/утилизация 33
- 4 Указания по безопасности
- 5 Осторожно открывайте двери котла.; Воздух для горения / воздух в помещении; Никогда не перекрывайте отопительный контур.
- 6 Информация о котле; Применение по назначению
- 7 Описание оборудования; Предохранительный теплообменник
- 8 Применяемое топливо; Применение других видов; Кроме; Воспламеняемость строительных материалов
- 9 Рис. 3 Комплект поставки; Дополнительное оборудование; Комплект поставки
- 10 Размеры и технические характеристики; Рис. 4 Размеры и подключения; Размеры; Типоразмер котла
- 11 Технические данные
- 13 Монтаж; Условия установки оборудования
- 14 Рис. 6 Расстояния от стен в помещении; Монтаж регулятора горения; Все типы котлов кроме 32D:; Прикрепите винтом цепь к воздушной заслонке.; угроза пожара из-за наличия
- 15 Зафиксируйте конус винтом M5.; Зафиксируйте рычаг шплинтом.; Подсоединение отвода дымовых газов; возможно
- 16 Рис. 10 Подключение к отводу дымовых газов
- 17 Рис. 11 Выполнение гидравлических; Кран для заполнения и слива; VK
- 18 Подключение предохранительного; Рис. 12 Подключение предохранительного
- 19 Демонтаж откидной решётки и; Установите вертикальную решётку в опору.
- 20 Установите верхние шамотные кирпичи.
- 23 Заполнение отопительной
- 24 Ввод в эксплуатацию; Перед пуском в эксплуатацию
- 25 Проверьте термическую защиту (; Настройка регулятора горения; Рис. 20 Регулировка натяжения цепи
- 26 Наклейка заводской таблички; Рис. 21 Наклейка заводской таблички; Работы при пуске в эксплуатацию; Протокол пуска в эксплуатацию
- 27 Регулятор горения настроен на
- 28 Прекращение эксплуатации; Очистите загрузочную и зольную камеры.
- 29 Техническое обслуживание и чистка; Чистка отопительной установки; Рис. 22 Удаление крышки отверстия для чистки
- 30 Рис. 24 Чистка откидной решётки; Работы по чистке котла; Удалите предметы, блокирующие решётку
- 31 Рис. 25 Термоманометр; Проверка термической защиты
- 33 Установлено правильное значение
- 34 Охрана окружающей среды/утилизация; Упаковка
- 35 Устранение неисправностей; Рис. 26 Котёл в разрезе
- 36 Таб. 11 Устранение неисправностей
- 37 Пример установки; PP; VH; RH
- 38 Алфавитный указатель